Plechová střecha s hromosvodem
-
Radar
- Příspěvky: 667
- Registrován: pon lis 15, 2021 11:05 am
- Reputace: 44
Re: Plechová střecha s hromosvodem
poloostrov v módu AC IGNORE
VICTRON system 3F, 3x3000VA + 1F GTI GWL 2000W posila na AC OUT.
6kWp pole 8° západní pultová střecha + MPPT 150/100
3kWP pole 75° jižní fasáda + MPPT 150/45
Baterie LIFEPO4 16S, EEL V4 DIY BOX 280Ah (JK INVERTER BMS)
VICTRON system 3F, 3x3000VA + 1F GTI GWL 2000W posila na AC OUT.
6kWp pole 8° západní pultová střecha + MPPT 150/100
3kWP pole 75° jižní fasáda + MPPT 150/45
Baterie LIFEPO4 16S, EEL V4 DIY BOX 280Ah (JK INVERTER BMS)
-
Matess
- Příspěvky: 2027
- Registrován: pon zář 09, 2013 5:16 pm
- Reputace: 204
- Lokalita: Šumperk
- Bydliště: Šumperk
Re: Plechová střecha s hromosvodem
Protože poloměr koule 30m a koule se nesmí nikdy dotknout něčeho na domě a musí se první dotknout jímací soustavy.
- JirkaE
- Příspěvky: 1746
- Registrován: pát dub 21, 2023 7:17 pm
- Reputace: 242
- Lokalita: Kousek od Rozvadova
- Systémové napětí: 48V
- Výkon panelů [Wp]: 7350
- Kapacita baterie [kWh]: 38
- Chci prodávat energii: NE
- Chci/Mám dotaci: NE
Re: Plechová střecha s hromosvodem
Je to čistokrevná předpisová šikana - posvěcená státem - nic víc.
Radar má barák vytuněný hromosvody asi tak 100x lip, než 80% všech baráku v Česku a musí to předělat ?
Na fotce vidím 3 baráky vyšší než Radarův dům - střecha jak kdyby vysílal signály do kosmu = buzerace, v životě tam žádný blesk nebude a pokud jo a dostane přímý zásah - nic to na výsledku nezmění.
Radar má barák vytuněný hromosvody asi tak 100x lip, než 80% všech baráku v Česku a musí to předělat ?
Na fotce vidím 3 baráky vyšší než Radarův dům - střecha jak kdyby vysílal signály do kosmu = buzerace, v životě tam žádný blesk nebude a pokud jo a dostane přímý zásah - nic to na výsledku nezmění.
Výkon jednotlivých stringů on-line : Victron MPPT-1 / Victron MPPT-2 / Victron MPPT-3 / Victron MPPT-4
Porovnání všech již 4 stringů a teploty vody bojlerů 1-3 : POROVNÁNÍ
Porovnání všech již 4 stringů a teploty vody bojlerů 1-3 : POROVNÁNÍ
-
Radar
- Příspěvky: 667
- Registrován: pon lis 15, 2021 11:05 am
- Reputace: 44
Re: Plechová střecha s hromosvodem
Já nezpochybňuji hromosvod na objektu s FVE na střeše. Jen mi není jasné co je v normě od 2025 jiného pro FVE na plechové střeše, když tato norma pouze odkazuje na již existující EN 62305. Tak proč bych měl něco zásadně předělávat, když v podstatě platí letos to co platilo již vloni a řadu let předtím ....
poloostrov v módu AC IGNORE
VICTRON system 3F, 3x3000VA + 1F GTI GWL 2000W posila na AC OUT.
6kWp pole 8° západní pultová střecha + MPPT 150/100
3kWP pole 75° jižní fasáda + MPPT 150/45
Baterie LIFEPO4 16S, EEL V4 DIY BOX 280Ah (JK INVERTER BMS)
VICTRON system 3F, 3x3000VA + 1F GTI GWL 2000W posila na AC OUT.
6kWp pole 8° západní pultová střecha + MPPT 150/100
3kWP pole 75° jižní fasáda + MPPT 150/45
Baterie LIFEPO4 16S, EEL V4 DIY BOX 280Ah (JK INVERTER BMS)
- ZbynekRyzner
- Příspěvky: 4
- Registrován: ned říj 26, 2025 3:28 pm
- Reputace: 8
- Lokalita: Mikulovice
- Výkon panelů [Wp]: 9,66
- Kapacita baterie [kWh]: 11,6
- Chci prodávat energii: NE
- Chci/Mám dotaci: ANO
- Bydliště: Mikulovice
Re: Plechová střecha s hromosvodem
V ČSN EN 62 305 není nového vůbec nic. To jen hromada nekompetentních “odborníkú” od realizačních firem po revizáky, lítá v naší legislativě ode zdi ke zdi. Tak pak jsou poprděný ze spojení plechová střecha + hromosvod+ FVE. Pokud máte novostavbu a hromosvod zhotovený a revidovaný dle zmíněné normy, nemusíte měnit vůbec nic. Vodivé plechové střechy a budovy s železobetonovým armováním tato ČSN zná jako případ kdy nelze dodržet vzdálenost “S”. Doporučuji změnit revizáka. Také je dobré chtít od toho kdo ty bláboly tvrdí doložit konkrétní normu a článek kde se tento požadavek uvádí. Ono totiž podlehnout tvrzení “na školení to říkali” je o ničem když to papouškuje někdo, kdo nezná souvislosti. Na školení tak mohli maximálně říct že od 1.7.2024 dle vyhl. O požadavcích na výstavbu 146/2024 Sb par. 26 mám cituji:
Při návrhu a provedení ochrany před bleskem je nezbytné posoudit a dodržet dostatečnou vzdálenost nebo bezpečný odstup. Jenomže tato vyhláška se týká všech staveb které vyžadují stavební povolení. Aktuàlně tedy od 100kWp výše. Od 1.1. 2025 vyšla akorát v platnost nová ČSN 33 2130 ed.4 která však není normou na hromosvody. Tato norma se týká cituji: Tato norma platí pro navrhování, provádění a rekonstrukce vnitřních silových a sdělovacích elektrických rozvodů ve stavbách bytové a občanské výstavby a ve stavbách s obdobným provozem, například administrativního charakteru. Zde je však nový odstavec, který byl špatně pochopen a způsobil současné nesrovnalosti a bláboly o HVI vodičích. Píše se tam totiž cituji: U staveb musí být před instalací OZE provedeno posouzení rizik v souladu s požadavky souboru ČSN EN 62 305.
Toto posouzení rizik musí být součástí dokumentace pro instalaci OZE. Výsledky a závěry které plynou z posouzení a vyhodnocení rizik musí být odpovídajícím způsobem zohledněny v dokumentaci pro výstavbu OZE. Zejména je potřeba zakreslení instalace OZE v ochranném prostoru jímací soustavy. Dále je nutné uvést výpočet dostatečných vzdáleností a OZE instalovat tak aby nedocházelo k přeskoku bleskového proudu na OZE.
Celé jádro nepochopení je v poslední větě “Dále je nutné uvést výpočet dostatečných vzdáleností a OZE instalovat tak aby nedocházelo k přeskoku bleskového proudu na OZE”
Kdy může dojít k přeskoku? Když nemám dostatečnou vzdálenost “S”. Může k přeskoku docházet i v připadě plechové střechy a vodivého spojení s konstrukcí FVE? Nemůže, co by kam přeskakovalo, když je vše vodivě vzájemně spojeno. Navíc dle ČSN EN 62 305 která je závaznou a jedinou normou na hromosvody nemusím na plechových střechách dodržet “S”.
Tyhle úpravy norem bohužel vznikají předevšim proto, že se kašle na dodržování odstupu “S” i v případech kde je krytina PVC nebo betonová taška a vzálenost “S” šlo mnohdy celkem snadno dodržet a mnohdy stačilo jen vodivé propojení zrušit. Že si také rádi školitelé z firem prodávající HVI vodiče přihřejou polívčičku, stejně jako normu ČSN nemá smysl rozmazávat. Důležité je číst a chápat legislativu a né bláboly co kde kdo vypustí z klávesnice na monitor.
Při návrhu a provedení ochrany před bleskem je nezbytné posoudit a dodržet dostatečnou vzdálenost nebo bezpečný odstup. Jenomže tato vyhláška se týká všech staveb které vyžadují stavební povolení. Aktuàlně tedy od 100kWp výše. Od 1.1. 2025 vyšla akorát v platnost nová ČSN 33 2130 ed.4 která však není normou na hromosvody. Tato norma se týká cituji: Tato norma platí pro navrhování, provádění a rekonstrukce vnitřních silových a sdělovacích elektrických rozvodů ve stavbách bytové a občanské výstavby a ve stavbách s obdobným provozem, například administrativního charakteru. Zde je však nový odstavec, který byl špatně pochopen a způsobil současné nesrovnalosti a bláboly o HVI vodičích. Píše se tam totiž cituji: U staveb musí být před instalací OZE provedeno posouzení rizik v souladu s požadavky souboru ČSN EN 62 305.
Toto posouzení rizik musí být součástí dokumentace pro instalaci OZE. Výsledky a závěry které plynou z posouzení a vyhodnocení rizik musí být odpovídajícím způsobem zohledněny v dokumentaci pro výstavbu OZE. Zejména je potřeba zakreslení instalace OZE v ochranném prostoru jímací soustavy. Dále je nutné uvést výpočet dostatečných vzdáleností a OZE instalovat tak aby nedocházelo k přeskoku bleskového proudu na OZE.
Celé jádro nepochopení je v poslední větě “Dále je nutné uvést výpočet dostatečných vzdáleností a OZE instalovat tak aby nedocházelo k přeskoku bleskového proudu na OZE”
Kdy může dojít k přeskoku? Když nemám dostatečnou vzdálenost “S”. Může k přeskoku docházet i v připadě plechové střechy a vodivého spojení s konstrukcí FVE? Nemůže, co by kam přeskakovalo, když je vše vodivě vzájemně spojeno. Navíc dle ČSN EN 62 305 která je závaznou a jedinou normou na hromosvody nemusím na plechových střechách dodržet “S”.
Tyhle úpravy norem bohužel vznikají předevšim proto, že se kašle na dodržování odstupu “S” i v případech kde je krytina PVC nebo betonová taška a vzálenost “S” šlo mnohdy celkem snadno dodržet a mnohdy stačilo jen vodivé propojení zrušit. Že si také rádi školitelé z firem prodávající HVI vodiče přihřejou polívčičku, stejně jako normu ČSN nemá smysl rozmazávat. Důležité je číst a chápat legislativu a né bláboly co kde kdo vypustí z klávesnice na monitor.
Naposledy upravil(a) ZbynekRyzner dne úte říj 28, 2025 8:34 pm, celkem upraveno 2 x.
-
unicast
- Příspěvky: 2099
- Registrován: sob bře 30, 2019 10:27 am
- Reputace: 373
- Lokalita: JV od pekla :)
- Systémové napětí: 48V
- Výkon panelů [Wp]: 5100
- Kapacita baterie [kWh]: 33
- Chci/Mám dotaci: NE
Re: Plechová střecha s hromosvodem
Ještě k těm HVI vodičům namísto dodržení odstupové vzdálenosti... Před přímým přeskokem blesku ta izolace sice možná ochránit dokáže, ale s indukcí narozdíl od té odstupové vzdálenosti nenadělá vůbec nic.
- ZbynekRyzner
- Příspěvky: 4
- Registrován: ned říj 26, 2025 3:28 pm
- Reputace: 8
- Lokalita: Mikulovice
- Výkon panelů [Wp]: 9,66
- Kapacita baterie [kWh]: 11,6
- Chci prodávat energii: NE
- Chci/Mám dotaci: ANO
- Bydliště: Mikulovice
Re: Plechová střecha s hromosvodem
Proto máme ochranu vnější (LPS) a ochranu vnitřní (přepěťovky). Přepěťovky indukci požerou. Hlavně nespoléhat na ty co jsou ve střídači. Protože tam platí ČSN 33 2000-7-712 ed.2 – 712.534.102. SPD Instalovaná na DC straně
musí splňovat EN 50539-11. Pokud měnič obsahuje SPD na DC straně, je to možné považovat za
splnění funkce ochrany před přepětím pouze tehdy, pokud výrobce měniče specifikuje jeho použití na
DC straně PV instalace. V opačném případě musí být opatřen externím SPD. Varistory montované
v měniči nejsou považovány za SPD!
1) specifikace SPD není jen TYP II jak se uvádí v datalistech, ale také např. výbojový proud 20kA a vlna (8/20 µs)
2) všichni tam montují varistory ( jedinou výjimkou co jsem zatím viděl jsou střídače Fronius TAURO kde jsou normální přepěťovky na din liště)
musí splňovat EN 50539-11. Pokud měnič obsahuje SPD na DC straně, je to možné považovat za
splnění funkce ochrany před přepětím pouze tehdy, pokud výrobce měniče specifikuje jeho použití na
DC straně PV instalace. V opačném případě musí být opatřen externím SPD. Varistory montované
v měniči nejsou považovány za SPD!
1) specifikace SPD není jen TYP II jak se uvádí v datalistech, ale také např. výbojový proud 20kA a vlna (8/20 µs)
2) všichni tam montují varistory ( jedinou výjimkou co jsem zatím viděl jsou střídače Fronius TAURO kde jsou normální přepěťovky na din liště)
-
Radar
- Příspěvky: 667
- Registrován: pon lis 15, 2021 11:05 am
- Reputace: 44
Re: Plechová střecha s hromosvodem
Chtěl bych tady panu Ryznarovi poděkovat. Dnes jsme se spojili telefonicky a probrali dost zeširoka a v souvislostech moji situaci. Je znát, že je to odborník s opravdovým rozhledem v legislativě a normách, dokáže věc posoudit a i pro laika srozumitelně odůvodnit a vysvětlit...
Nakonec jsem věc předal projektantovi co mi projektoval v daném objektu elektroinstalaci a hromosvod a ten v rámci požadavku nové normy znovu posoudí LPS, zpracuje novou analýzu rizik s OZE na plechové střeše a případně zapracujeme dílčí úpravy na instalaci...
A to vše dle původní a stále platné normy pro ochranu bleskem ČSN EN 62305
I když to nepopírá fakt, že oddálený hromosvod (izolovaný LPS) je pro instalaci FVE na plechové střeše asi nejlepší,
výsledek snad bude hodně daleko od původní situace a tvrzení, že jinak (až skoro bez HVI) to nepůjde...
díky
Nakonec jsem věc předal projektantovi co mi projektoval v daném objektu elektroinstalaci a hromosvod a ten v rámci požadavku nové normy znovu posoudí LPS, zpracuje novou analýzu rizik s OZE na plechové střeše a případně zapracujeme dílčí úpravy na instalaci...
A to vše dle původní a stále platné normy pro ochranu bleskem ČSN EN 62305
I když to nepopírá fakt, že oddálený hromosvod (izolovaný LPS) je pro instalaci FVE na plechové střeše asi nejlepší,
výsledek snad bude hodně daleko od původní situace a tvrzení, že jinak (až skoro bez HVI) to nepůjde...
díky
poloostrov v módu AC IGNORE
VICTRON system 3F, 3x3000VA + 1F GTI GWL 2000W posila na AC OUT.
6kWp pole 8° západní pultová střecha + MPPT 150/100
3kWP pole 75° jižní fasáda + MPPT 150/45
Baterie LIFEPO4 16S, EEL V4 DIY BOX 280Ah (JK INVERTER BMS)
VICTRON system 3F, 3x3000VA + 1F GTI GWL 2000W posila na AC OUT.
6kWp pole 8° západní pultová střecha + MPPT 150/100
3kWP pole 75° jižní fasáda + MPPT 150/45
Baterie LIFEPO4 16S, EEL V4 DIY BOX 280Ah (JK INVERTER BMS)
-
tafx
- Příspěvky: 49
- Registrován: ned lis 17, 2019 9:50 am
- Reputace: 9
Re: Plechová střecha s hromosvodem
To je zajímavý. Poprosil bych pak o informaci, jaký bude výsledný řešení bez oddálení LPS. Taky to musíme řešit.
-
eman
- Příspěvky: 2579
- Registrován: pát srp 31, 2012 9:20 pm
- Reputace: 274
- Lokalita: Praha
- Systémové napětí: 48V
- Chci prodávat energii: NE
- Chci/Mám dotaci: NE
Re: Plechová střecha s hromosvodem
Mě to taky potěšilo.
Konečně někdo řekl, že se na plechové střeše žádný zázrak vymyslet nedá.
10kWp JJZ, 3x SmartSolar 150/85, 3xVictron MP II 5kVA v paralelním režimu, Smartshunt, Cerbo GX, 16x400Ah LiFePO4 s JK BMS B2A24S20P + JK BMS Invertor
-
cipis
- Moderátor
- Příspěvky: 6342
- Registrován: pon srp 16, 2021 9:31 pm
- Reputace: 857
- Lokalita: blízko Brna
- Systémové napětí: 24V
- Výkon panelů [Wp]: 13+ kWp
- Kapacita baterie [kWh]: 40+15
- Chci prodávat energii: NE
- Chci/Mám dotaci: NE
- Bydliště: blízko Brna
Re: Plechová střecha s hromosvodem
Jj, je to tak. Čeká mě příští rok reko střechy přístavby, no a plech tam vychází ekonomicky i prakticky nejlépe, a samozřejmě 12 panelů, no tak jsem strašně zvědav na další poznatky.
13,38 kWp: 9850 Wp Jih, 2040 Wp Východ, 1490 Wp Západ
Regulátory Epever a Victron
Phoenix 5 kVA + MP 24/5000 (můj byt + wifi/kamery/atd. + máti byt)
MP2 24/5000 vytěžování do akumulačních kamen
Epever 3kW vytěžování do bojlerů + žebříky
1 kW "nabíječka" 24 V
40 680 Wh staré olovo 15 258 Wh Li-Ion
záloha čerpadla ve sklepě MP12/3000/120-16 + 100Ah 12V monbat
Modře píši jako moderátor, černě jako člen.
Regulátory Epever a Victron
Phoenix 5 kVA + MP 24/5000 (můj byt + wifi/kamery/atd. + máti byt)
MP2 24/5000 vytěžování do akumulačních kamen
Epever 3kW vytěžování do bojlerů + žebříky
1 kW "nabíječka" 24 V
40 680 Wh staré olovo 15 258 Wh Li-Ion
záloha čerpadla ve sklepě MP12/3000/120-16 + 100Ah 12V monbat
Modře píši jako moderátor, černě jako člen.
-
ChlapeczDediny
- Příspěvky: 516
- Registrován: sob říj 16, 2021 10:55 am
- Reputace: 128
- Lokalita: Juh BBSK
- Systémové napětí: 48V
- Výkon panelů [Wp]: 3100
- Kapacita baterie [kWh]: 30
- Chci prodávat energii: NE
- Chci/Mám dotaci: NE
Re: Plechová střecha s hromosvodem
Zajímavá diskuse. Mám dva domy, oba s plechovou střechou, ale než tam dám panely, chci udělat bleskozvod, i když pro oba domy společný (a drenáž v polovině délky) to představuje cca 80 m výkopů. Za jedním mají sousedé statný ořešák, u druhého roste jeden nám, ale zřejmě dostane přednost kousek vedle jablonka. Nemyslím si, že uzemnit konstrukci panelů na plechové střeše bez bleskozvodu je dobrý nápad.
V ulici má bleskozvod jediný dům, je vyšší, než náš, asi 15 m daleko, ale sám majitel ví, že je po těch letech spíš na ozdobu. Bouřky tady v létě jsou, naokolo lesy, kostel 500 m daleko, deset let sem do ničeho nepraštilo, ale ty panely s uzemněním, IMHO si to o ránu říká. Proto chci nejprve bleskozvod, pak panely.
Mám se na koho obrátit, aby to nebylo jen na parádu, hodně se dokážu naučit, ale už teď si myslím, že to bude jen obyčejný bleskozvod a propojený s konstrukcí. Baráky nejsou a nebudou pojištěný, tak mi do toho nebude nikdo kecat. Ani revizák.
V ulici má bleskozvod jediný dům, je vyšší, než náš, asi 15 m daleko, ale sám majitel ví, že je po těch letech spíš na ozdobu. Bouřky tady v létě jsou, naokolo lesy, kostel 500 m daleko, deset let sem do ničeho nepraštilo, ale ty panely s uzemněním, IMHO si to o ránu říká. Proto chci nejprve bleskozvod, pak panely.
Mám se na koho obrátit, aby to nebylo jen na parádu, hodně se dokážu naučit, ale už teď si myslím, že to bude jen obyčejný bleskozvod a propojený s konstrukcí. Baráky nejsou a nebudou pojištěný, tak mi do toho nebude nikdo kecat. Ani revizák.
Modulárna rozšíriteľná FVE pod kopcom: 3s2p Amerisolar 285 = 1,7 kWp JJV + 3s2p 240 = 1,4 kWp ZJZ, Epever 5420AN, Epever 6420AN, 12 kWh 14s100p LiIon 18650 + JK BMS 200A, 18 kWh CATL 14s3p LiIon 115Ah +JBD BMS 60A, Epever iPower 5 kW
Naša dôchodková reforma, naša sbestačnosť
Naša dôchodková reforma, naša sbestačnosť
-
Franta2776
- Příspěvky: 4829
- Registrován: pon úno 01, 2021 4:00 pm
- Reputace: 411
Re: Plechová střecha s hromosvodem
Vylez na oříšek a natáhni po nĕm hromosvosvý vodiĉ dolů. On ten mokrý strom se svým kořenovým systémem je výborný zemnič. Budeš mít krásný oddálený hromosvod.
18190Wp=13500Wp jihovýchod 27x500Wp, 4690Wpjihozápad Leapton 14x335Wp, cca 8000W 90ks vakuové trubice jihozápad, Lifepo4 17Sx260Ah, trakční gel 800Ah), Axpert Max 7200VA, Easun Isolar 5500VA,Multiplus 2 48/5000,MPPT 150/85
Pojízdná FV 200Wp=2x100Wp flexibilní+4x280Ah lifepo4+měnič 1500W
Pojízdná FV 200Wp=2x100Wp flexibilní+4x280Ah lifepo4+měnič 1500W
-
eman
- Příspěvky: 2579
- Registrován: pát srp 31, 2012 9:20 pm
- Reputace: 274
- Lokalita: Praha
- Systémové napětí: 48V
- Chci prodávat energii: NE
- Chci/Mám dotaci: NE
Re: Plechová střecha s hromosvodem
Já mám těsně u domu Ořešák, Smrk, Modřín a Jedli. Zejména ty 3 poslední značně převyšují dům. Taky naně při bouřce trochu spoléhám. 
Akorát je blízko cesta a místní naplaveniny mě nutí, abych je pokácel, protože jak známo, stromy zabíjejí děti.
Akorát je blízko cesta a místní naplaveniny mě nutí, abych je pokácel, protože jak známo, stromy zabíjejí děti.
10kWp JJZ, 3x SmartSolar 150/85, 3xVictron MP II 5kVA v paralelním režimu, Smartshunt, Cerbo GX, 16x400Ah LiFePO4 s JK BMS B2A24S20P + JK BMS Invertor
-
Franta2776
- Příspěvky: 4829
- Registrován: pon úno 01, 2021 4:00 pm
- Reputace: 411
Re: Plechová střecha s hromosvodem
Já mám ořešák a třešeň.To co radím není podle ČSN, ale zas tě nemůže prudit pojišťovna , že nemáš revizi. Hřát tě může, že jsi nezaplatil výpalné českému cechu hromosvodářů:)))Podle statistik jsou ty jejich hromosvody podle ČSN na RD úspěšné jako prodej svíček hromnic
.A to mám jenom dvě elektrotechnický školy.
Naposledy upravil(a) Franta2776 dne čtv říj 30, 2025 7:12 am, celkem upraveno 1 x.
18190Wp=13500Wp jihovýchod 27x500Wp, 4690Wpjihozápad Leapton 14x335Wp, cca 8000W 90ks vakuové trubice jihozápad, Lifepo4 17Sx260Ah, trakční gel 800Ah), Axpert Max 7200VA, Easun Isolar 5500VA,Multiplus 2 48/5000,MPPT 150/85
Pojízdná FV 200Wp=2x100Wp flexibilní+4x280Ah lifepo4+měnič 1500W
Pojízdná FV 200Wp=2x100Wp flexibilní+4x280Ah lifepo4+měnič 1500W
-
Radar
- Příspěvky: 667
- Registrován: pon lis 15, 2021 11:05 am
- Reputace: 44
Re: Plechová střecha s hromosvodem
Pánové, to byste museli postupovat opačně
, neotálet a napřed zasadit ten strom a až budete v důchodu, tak postavit ten barák a na něm FVE bez hromosvodu ... takže já vyčkám na výsledek posouzení a uvidím. Třeba se se svou zkušeností mezitím přidají další
poloostrov v módu AC IGNORE
VICTRON system 3F, 3x3000VA + 1F GTI GWL 2000W posila na AC OUT.
6kWp pole 8° západní pultová střecha + MPPT 150/100
3kWP pole 75° jižní fasáda + MPPT 150/45
Baterie LIFEPO4 16S, EEL V4 DIY BOX 280Ah (JK INVERTER BMS)
VICTRON system 3F, 3x3000VA + 1F GTI GWL 2000W posila na AC OUT.
6kWp pole 8° západní pultová střecha + MPPT 150/100
3kWP pole 75° jižní fasáda + MPPT 150/45
Baterie LIFEPO4 16S, EEL V4 DIY BOX 280Ah (JK INVERTER BMS)
-
eman
- Příspěvky: 2579
- Registrován: pát srp 31, 2012 9:20 pm
- Reputace: 274
- Lokalita: Praha
- Systémové napětí: 48V
- Chci prodávat energii: NE
- Chci/Mám dotaci: NE
Re: Plechová střecha s hromosvodem
Vzpomněl jsem si na ty zaplétané vrby, jak prodávají v zahradnictví. Tak by někdo mohl začít prodávat Vrbku bleskosvodku, se zapleteným AlMgSi a za 40let by byl přírodní hromosvod s velkým pokrytím.
A samozřejmě drát na nastavení délky prodávat jako příslušenství za 500Kč/m. 
10kWp JJZ, 3x SmartSolar 150/85, 3xVictron MP II 5kVA v paralelním režimu, Smartshunt, Cerbo GX, 16x400Ah LiFePO4 s JK BMS B2A24S20P + JK BMS Invertor
-
Radar
- Příspěvky: 667
- Registrován: pon lis 15, 2021 11:05 am
- Reputace: 44
Re: Plechová střecha s hromosvodem
Ta plechová střecha má ještě jedno úskalí. Připouští pro ocelový plech tl. min 0,5mm ,ale s rizikem propálení ...
Nevím, kdy se z ní při neoddáleném LSP stává a kdy nestává (nebo zda vždycky stává?) náhodný jímač... možná to zde někdo kvalifikovaný vysvětlí..
V každém případě FVE má být v chráněném prostoru LSP.
Konstrukce FVE má být s neizolovaným LSP pospojena.
Norma z pohledu ocelové konstrukce za spoj pokládá šroubování, nýtování, falcování, pájení... do tl povrchové úpravy 0,5mm nebere jako izolaci
Nevím, kdy se z ní při neoddáleném LSP stává a kdy nestává (nebo zda vždycky stává?) náhodný jímač... možná to zde někdo kvalifikovaný vysvětlí..
V každém případě FVE má být v chráněném prostoru LSP.
Konstrukce FVE má být s neizolovaným LSP pospojena.
Norma z pohledu ocelové konstrukce za spoj pokládá šroubování, nýtování, falcování, pájení... do tl povrchové úpravy 0,5mm nebere jako izolaci
poloostrov v módu AC IGNORE
VICTRON system 3F, 3x3000VA + 1F GTI GWL 2000W posila na AC OUT.
6kWp pole 8° západní pultová střecha + MPPT 150/100
3kWP pole 75° jižní fasáda + MPPT 150/45
Baterie LIFEPO4 16S, EEL V4 DIY BOX 280Ah (JK INVERTER BMS)
VICTRON system 3F, 3x3000VA + 1F GTI GWL 2000W posila na AC OUT.
6kWp pole 8° západní pultová střecha + MPPT 150/100
3kWP pole 75° jižní fasáda + MPPT 150/45
Baterie LIFEPO4 16S, EEL V4 DIY BOX 280Ah (JK INVERTER BMS)
- ZbynekRyzner
- Příspěvky: 4
- Registrován: ned říj 26, 2025 3:28 pm
- Reputace: 8
- Lokalita: Mikulovice
- Výkon panelů [Wp]: 9,66
- Kapacita baterie [kWh]: 11,6
- Chci prodávat energii: NE
- Chci/Mám dotaci: ANO
- Bydliště: Mikulovice
Re: Plechová střecha s hromosvodem
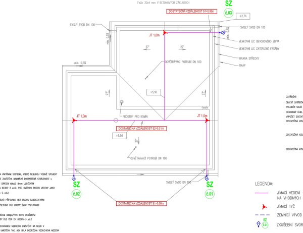
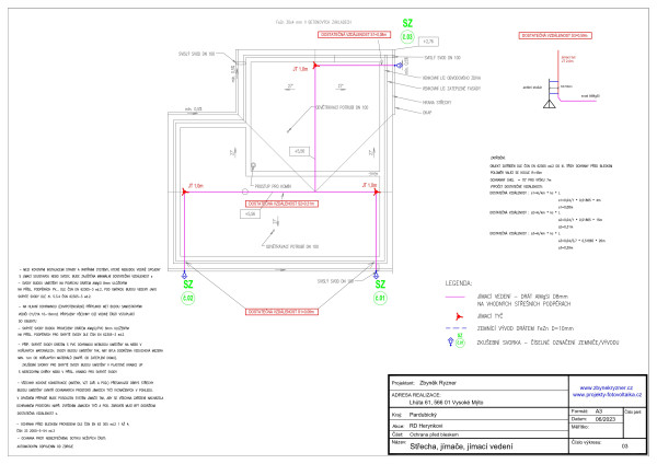
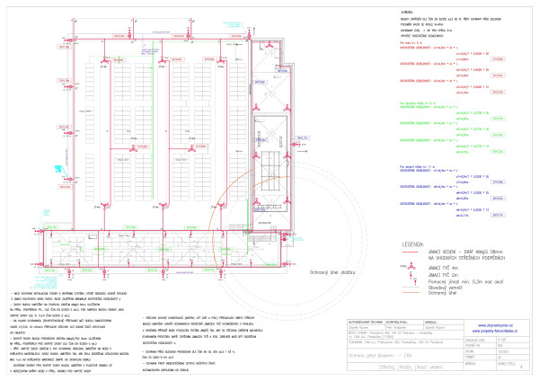
Jen pro představu sem dávám nějaké hotové řešení ochrany před bleskem co jsem projektoval. Je zde RD ale také budova s 30m vysokým stožárem a rozměry půdorysu cca 65x65m.
Jedná se o názorné ukázky, jak vypadá zakreslení valivé koule (vše co je pod ní směrem k zemi je chráněno, někde chybí valivá koule z boku budovy s tím jsem se už nemazal) jak vypadá nakreslený ochranný úhel a jaký prostor zhruba dokáže pokrýt při své výšce 30m stožár (pozor se vzrůstající výškou se úhel zmenšuje a naopak).
Také jsou zde pro oba případy výkresy které jasně znázorňují, že v každém místě instalace jsou vypočtené vzdálenosti "S" jiné. Vždy se jednalo o případ, kdy šlo dodržet vzdálenost "S" . RD má jako krytinu betonovou tašku, a hala má PVC a nebo asfaltový pás. Takže nyní si jen stačí představit zakreslenou FVE a tak nějak by to měly instalační firmy dle ČSN EN 62 305 a ČSN 33 2130 dodávat zakreslené v ochranném prostoru jímací soustavy v rámci dokumentace.
Jedná se o názorné ukázky, jak vypadá zakreslení valivé koule (vše co je pod ní směrem k zemi je chráněno, někde chybí valivá koule z boku budovy s tím jsem se už nemazal) jak vypadá nakreslený ochranný úhel a jaký prostor zhruba dokáže pokrýt při své výšce 30m stožár (pozor se vzrůstající výškou se úhel zmenšuje a naopak).
Také jsou zde pro oba případy výkresy které jasně znázorňují, že v každém místě instalace jsou vypočtené vzdálenosti "S" jiné. Vždy se jednalo o případ, kdy šlo dodržet vzdálenost "S" . RD má jako krytinu betonovou tašku, a hala má PVC a nebo asfaltový pás. Takže nyní si jen stačí představit zakreslenou FVE a tak nějak by to měly instalační firmy dle ČSN EN 62 305 a ČSN 33 2130 dodávat zakreslené v ochranném prostoru jímací soustavy v rámci dokumentace.
- gupa
- Příspěvky: 3451
- Registrován: sob pro 29, 2012 10:22 pm
- Reputace: 157
- Lokalita: pod Brnem
- Systémové napětí: 24V
Re: Plechová střecha s hromosvodem
Blesky mne fascinují. Mám i pro zajímavost aktuálně atmosférického skřítka v profilové fotce.
Mám dvě poznámky, ke stromům, už jste někdo viděl strom který dostal zásah bleskem? V podstatě jsem jednou dojel na mý včelí stanoviště a první bylo že jsem na zemi viděl asi půlmetrové třísky. Potom jsem šel dál a zahlédl nahlý strom, který vypadal jakoby vybuchl zevnitř. Pří pozorném pohledu ta rána do stromu udělala ze stromu dumdum střelu a střepiny byly dohledatelné asi 25m od kmenu.
Další je pohled na plánek a potom na realitu. Otázka je, co je asi špatně.
Mám dvě poznámky, ke stromům, už jste někdo viděl strom který dostal zásah bleskem? V podstatě jsem jednou dojel na mý včelí stanoviště a první bylo že jsem na zemi viděl asi půlmetrové třísky. Potom jsem šel dál a zahlédl nahlý strom, který vypadal jakoby vybuchl zevnitř. Pří pozorném pohledu ta rána do stromu udělala ze stromu dumdum střelu a střepiny byly dohledatelné asi 25m od kmenu.
Další je pohled na plánek a potom na realitu. Otázka je, co je asi špatně.
3x2000VA-VMP-par, NiCd 24V, 22x210-320Wp, 2x85A-VMPPT, ABC-&-XYZ mypower.cz Ať ti to běží jako hodinky na baterku s čerstvou expirací! Zdejší slova: To by bylo, abychom na tom šetření nevydělali!
Kdo je online
Uživatelé prohlížející si toto fórum: Amazon [Bot], Claudebot [Bot], Keraj a 1 host