napětí mezi nulou a zemí.
-
- Příspěvky: 24
- Registrován: ned lis 19, 2023 5:22 pm
- Reputace: 0
- Lokalita: Kutná Hora
- Systémové napětí: 48V
- Výkon panelů [Wp]: 12000
- Kapacita baterie [kWh]: 20
- Chci prodávat energii: NE
- Chci/Mám dotaci: NE
Re: napětí mezi nulou a zemí.
Ok, díky moc.
-
- Příspěvky: 4397
- Registrován: pon úno 07, 2022 10:11 pm
- Reputace: 289
- Lokalita: Zlaté Hory / Olomouc
- Systémové napětí: 24V
- Výkon panelů [Wp]: 3600
- Kapacita baterie [kWh]: 16
- Chci prodávat energii: NE
- Chci/Mám dotaci: NE
- Bydliště: Zlaté Hory
Re: napětí mezi nulou a zemí.
Špatně......
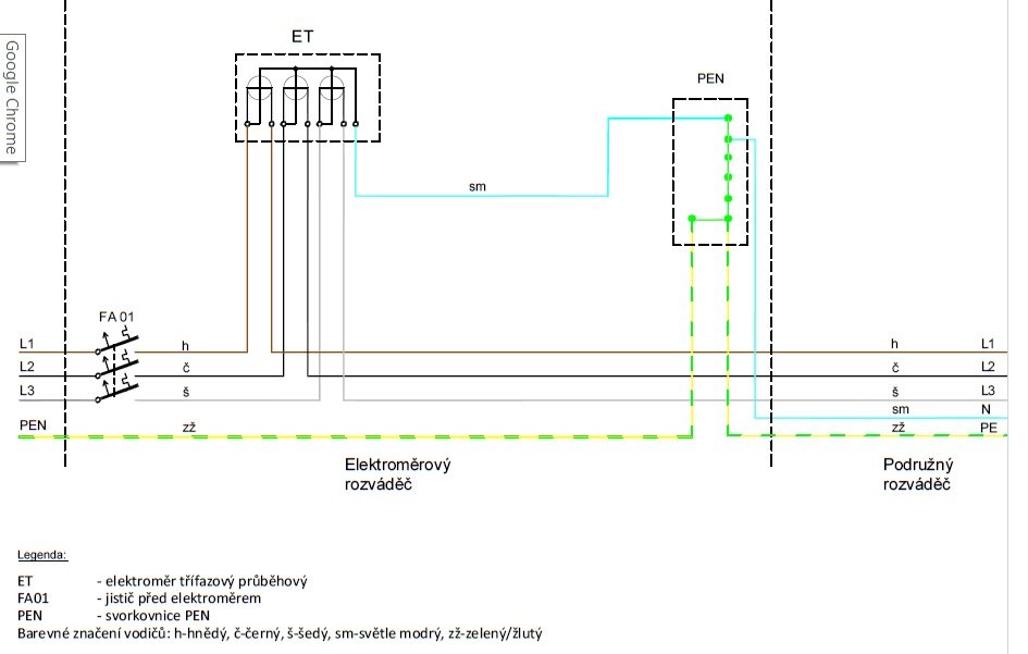
Od DS ti vede do rozvaděče L a PEN v rozvaděči je PEN uzeměné a rozdělené na PE a N.
Takže z toho rozvaděče vemeš L N PE a vedeš k měniči a zapojíš do vstupu, z výstupu vemeš zase L N PE a vedeš zpět a L připojíš na přepínač sítí a N dáš na N a PE dáš na PE v rozvaděči.
Od DS ti vede do rozvaděče L a PEN v rozvaděči je PEN uzeměné a rozdělené na PE a N.
Takže z toho rozvaděče vemeš L N PE a vedeš k měniči a zapojíš do vstupu, z výstupu vemeš zase L N PE a vedeš zpět a L připojíš na přepínač sítí a N dáš na N a PE dáš na PE v rozvaděči.
3,6kWp
| 2x MUST PV18-3024 VHM, 3kW/24V | 16kWh 


-
- Příspěvky: 1642
- Registrován: pon úno 07, 2022 2:43 pm
- Reputace: 120
- Lokalita: Okolí Pardubic
- Systémové napětí: 24V
- Výkon panelů [Wp]: 10120
- Kapacita baterie [kWh]: 28
- Chci prodávat energii: NE
- Chci/Mám dotaci: NE
Re: napětí mezi nulou a zemí.
jj to je za předpokladu že se vrací do toho rozvaděče kde má i DS... Někdo má pro FVE svůj rozvaděč jen na některé okruhy. Samozřejmě je lepší to mít propojené v rozvaděči a ne nějakou propojkou u měničeSoban píše: ned úno 18, 2024 9:18 pmŠpatně......
Od DS ti vede do rozvaděče L a PEN v rozvaděči je PEN uzeměné a rozdělené na PE a N.
Takže z toho rozvaděče vemeš L N PE a vedeš k měniči a zapojíš do vstupu, z výstupu vemeš zase L N PE a vedeš zpět a L připojíš na přepínač sítí a N dáš na N a PE dáš na PE v rozvaděči.
MUST 3KW 80A MPPT 24V/ 3,75kWp stringy 5s3P 200wp + 5s1P 150wp. 2 měnič MUST 3KW 80A MPPT 24V 6370Wp stringy 2S4P 400wp bifacial + 2S1P 410wp + 2S3P 395wp Baterie 28KWh lifepo4 (4X 8S 280Ah EVE), Celek tedy 10120Wp 

-
- Příspěvky: 1421
- Registrován: pon dub 24, 2023 8:47 am
- Reputace: 189
- Lokalita: Lašská brána Beskyd
- Systémové napětí: 48V
- Výkon panelů [Wp]: 8kWp
- Kapacita baterie [kWh]: 20kWh
Re: napětí mezi nulou a zemí.
Ne vždy. Někomu vede do domovního rozvaděče z ER PE a N již rozdělené .... (ER sloupek třeba i někde na hranici pozemku)Soban píše: ned úno 18, 2024 9:18 pmŠpatně......
Od DS ti vede do rozvaděče L a PEN v rozvaděči je PEN uzeměné a rozdělené na PE a N.
PS: Já osobně mám tedy bod rozdělení na PE a N až doma.
SkyFVE 8 kWp (ve výstavbě) na výzkumné "chytré" chatě. 4x MPPT Epever XTRA4415N 4x40A, 1x AC Charger WATE 42V/10A, Li-Ion 3x 12s 156Ah (20 kWh/44V), SkyPowerBox LF 4810 1kVA, Victron Atlas 48/1600, REVO VM II 5.5kW, APC SmartUPS 5kVA + PLC Siemens Logo! + Dell Optiplex 3040 Micro (Proxmox: HA, Node-RED, InfluxDB, Grafana, Mqtt, Zigbee2Mqtt, Samba, Tailscale)
-
- Moderátor
- Příspěvky: 6225
- Registrován: pon srp 16, 2021 9:31 pm
- Reputace: 842
- Lokalita: blízko Brna
- Systémové napětí: 24V
- Výkon panelů [Wp]: 13+ kWp
- Kapacita baterie [kWh]: 40+15
- Chci prodávat energii: NE
- Chci/Mám dotaci: NE
- Bydliště: blízko Brna
Re: napětí mezi nulou a zemí.
No tak si ten jeden modrý drát navíc nezapojí a udělá rozdělení až doma/kde potřebuje.
Také mám jeden kabel od ER 4 žilový a jeden 5 žilový.
Také mám jeden kabel od ER 4 žilový a jeden 5 žilový.
13,38 kWp: 9850 Wp Jih, 2040 Wp Východ, 1490 Wp Západ
Regulátory Epever a Victron
Phoenix 5 kVA + MP 24/5000 (můj byt + wifi/kamery/atd. + máti byt)
MP2 24/5000 vytěžování do akumulačních kamen
Epever 3kW vytěžování do bojlerů + žebříky
1 kW "nabíječka" 24 V
40 680 Wh staré olovo 15 258 Wh Li-Ion
záloha čerpadla ve sklepě MP12/3000/120-16 + 100Ah 12V monbat
Modře píši jako moderátor, černě jako člen.
Regulátory Epever a Victron
Phoenix 5 kVA + MP 24/5000 (můj byt + wifi/kamery/atd. + máti byt)
MP2 24/5000 vytěžování do akumulačních kamen
Epever 3kW vytěžování do bojlerů + žebříky
1 kW "nabíječka" 24 V
40 680 Wh staré olovo 15 258 Wh Li-Ion
záloha čerpadla ve sklepě MP12/3000/120-16 + 100Ah 12V monbat
Modře píši jako moderátor, černě jako člen.
Kdo je online
Uživatelé prohlížející si toto fórum: Claudebot [Bot], Neticle [Bot] a 0 hostů