Návrh poloostrovnej FVE pre začínajúceho nadšenca do FVE
Souhrn tématu
Téma se věnuje návrhu poloostrovní fotovoltaické elektrárny (FVE) pro začínajícího nadšence, který plánuje instalaci na střechu garáže s orientací na východ. Diskutuje se zde o parametrech systému, jako je výkon panelů, typ střídače a kapacita baterie, a klade se velký důraz na bezpečnostní aspekty a správné zapínání a vypínání FVE. Autor hledá rady ohledně zapojení a revize systému s cílem zajistit spolehlivý a bezpečný provoz v domácím prostředí.
- Diablo1st
- Příspěvky: 2306
- Registrován: pon lis 01, 2021 7:41 pm
- Reputace:229
- Lokalita: MY, SR
- Výkon panelů [Wp]: 10200
- Kapacita baterie [kWh]: 28
- Bydliště: SR MY
Re: Návrh poloostrovnej FVE pre začínajúceho nadšenca do FVE
Vieš odcitovať stať, ktorú máš presne na mysli? Lebo toto mi príde ako odporúčanie a pokiaľ viem, v žiadnej norme také niečo nie je. Ale samozrejme môžem sa mýliť.Nortonko píše: pát led 09, 2026 8:13 amdovolím si nesúhlasiť. má sa zabezpečiť aby po vypnutí FVE napätie na paneloch ostalo bezpečné - nie su tam síce pevne dané volty, ale z noriem je jasné aké je bezpečné DC napätie - teda do 120V.
odkaz tu: Protipožiarna bezpečnosť stavieb Stavby s fotovoltickými elektrárňami a úložiskami elektrickej energie
Victron ESS AC Coupling:
2,75kWp on-grid + 3,3kWp RS450/100 + 4,15kWp Fronius Primo 4.0.1 + MP2 5kVA + 2x 17x280Ah + JK BMS
2,75kWp on-grid + 3,3kWp RS450/100 + 4,15kWp Fronius Primo 4.0.1 + MP2 5kVA + 2x 17x280Ah + JK BMS
- Ferda2
- Příspěvky: 90
- Registrován: pát zář 27, 2024 10:07 pm
- Reputace:16
- Lokalita: Pardubice
- Systémové napětí: 48V
- Výkon panelů [Wp]: 6200
- Kapacita baterie [kWh]: 20,8
- Chci prodávat energii: NE
- Chci/Mám dotaci: NE
Re: Návrh poloostrovnej FVE pre začínajúceho nadšenca do FVE
Možná bych doplnil, je to sice práce a peníze navíc ale protože fotovoltaída je (jak tvrdí kolega) nemoc nevyléčitelná tak stejně to bude neustále vylepšovat a předělávat konstrukci a svody ...vladask píše: pát led 09, 2026 7:21 amMísto dvou dlouhých stringů bych každou řadu/sloupec panelů stáhnul na spodní kraj střechy kde máš naznačen kombibox (rozdělit string na tři části) a v něm si pak můžeš nakombinovat zapojení jak ti bude vyhovovat (stíny, měnič,...) a také tam můžeš pohodlně udělat automatické rozpojení HV stringů na bezpečné napětí <120VGhost86 píše: čtv led 08, 2026 10:58 pmNo a tymto by som to rad premostil ku zapojeniu panelov a organizacii na streche. Tu mam nejake otazky aj ohladom uzemnenia, ale zacnime teda rozdelenim.
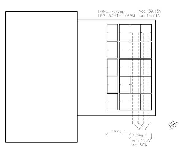
Viem, ze teda idealne je drzat stringy pod 120V (+-). Je to vobec mozne pri pouziti Easun 11Kw (alebo toho Deye) bez nejakej velkej straty vykonu? Tu su PV parametre:
SCR-20260108-tpvl.png
Tu je priklad mojej strechy co som robil vcera. Je to vysokonapatovy string, ale je to len prvy nastrel. Potreboval by som tie stringy mat od pravej strany, aby neboli vsetky panely ovplyvnene tienom z vedlajsej budovy.
navrh_stringov_.pdf
Panely nemam kupene, ale vychadza takato mriezka 6x4 resp zmesti sa aj mriezka 6x5. To je maximum co tam aktualne fyzicky mozem dat aj s rezervou. (a samozrejme, ze nemusim vsetko osadzovat, len si necham pripravu)
Vedeli by ste mi teda prosim poradit nejaky rozumny navrh rozlozenia stringov?
ISolar-SMG-III-11kW-wifi + Epever ET7420NC G3 + Bell MR4316AC NG
- Nortonko
- Příspěvky: 167
- Registrován: pon čer 24, 2024 10:02 am
- Reputace:29
- Lokalita: Horná Nitra
- Systémové napětí: 48V
- Výkon panelů [Wp]: 5330
- Kapacita baterie [kWh]: 6
- Chci prodávat energii: NE
- Chci/Mám dotaci: NE
Re: Návrh poloostrovnej FVE pre začínajúceho nadšenca do FVE
v ATN to je bod 4.5.4 -Diablo1st píše: pát led 09, 2026 9:06 amVieš odcitovať stať, ktorú máš presne na mysli? Lebo toto mi príde ako odporúčanie a pokiaľ viem, v žiadnej norme také niečo nie je. Ale samozrejme môžem sa mýliť.
Kód: Vybrat vše
... zníženie napätia na bezpečnú úroveň ....- kuba47
- Příspěvky: 219
- Registrován: pát dub 18, 2025 10:09 am
- Reputace:48
- Lokalita: Krušné hory
- Systémové napětí: 48V
- Chci prodávat energii: NE
- Chci/Mám dotaci: NE
Re: Návrh poloostrovnej FVE pre začínajúceho nadšenca do FVE
Já to vidím všude, kam kouknu. Třeba tady:
https://www.deyeinverter.com/deyeinvert ... 819_en.pdf
Zajímavá je ta hodnota 300mA. Nevyznám se v normách, ale něco jsem snad slyšel o 30mA. Nejsem si jistý, jestli tady lze vyhovět normě i manuálu výrobce zároveň.Warning:
Inverter has built-in leakage current detection circuit, The type A RCD can be
connected to the inverter for protection according to the local laws and regulations.
If an external leakage current protection device is connected, its operating current
must be equal to 300 mA or higher, otherwise inverter may not work properly.
8.8kWp @ Anern SCI-MAX-10200, LiFePO4 280Ah 16s2p, JK PB2A16S20P, AC nabíječka Easun SMH
3.6kWp @ Siton 210 SMD
3.6kWp @ Siton 210 SMD
- Ferda2
- Příspěvky: 90
- Registrován: pát zář 27, 2024 10:07 pm
- Reputace:16
- Lokalita: Pardubice
- Systémové napětí: 48V
- Výkon panelů [Wp]: 6200
- Kapacita baterie [kWh]: 20,8
- Chci prodávat energii: NE
- Chci/Mám dotaci: NE
Re: Návrh poloostrovnej FVE pre začínajúceho nadšenca do FVE
4.7 Malé zdrojeNortonko píše: pát led 09, 2026 9:35 amv ATN to je bod 4.5.4 -Diablo1st píše: pát led 09, 2026 9:06 amVieš odcitovať stať, ktorú máš presne na mysli? Lebo toto mi príde ako odporúčanie a pokiaľ viem, v žiadnej norme také niečo nie je. Ale samozrejme môžem sa mýliť.áno ATN sú "len" odporúčané technické riešenia dobrovoľné. ďalej sú ostatné bezpečnostné podmienky v STN, konkrétne ohľadom napätia, zásahu el. prúdom atď. hlavne súbor noriem STN 34 2000 xxx, napríklad STN 34 2000-4-41 čo je základná bezpečnostná norma a potom napr. STN EN 61140 Ochrana pred zásahom el. prúdom ....Kód: Vybrat vše
... zníženie napätia na bezpečnú úroveň ....
Malý zdroj je zariadenie, ktoré vyrába elektrickú energiu zo slnečnej energie a je pripojené k vnútornej elektrickej inštalácii nízkeho napätia v budove. Najvyšší menovitý výkon malého zdroja s vlastným napájaním je 10 kWp a nesmie prekročiť príkon uvedený v súhlase s pripojením. Z bezpečnostných dôvodov musí malý zdroj spĺňať ustanovenia nariadenia, ktorým sa upravujú technické požiadavky na bezpečnú a správnu prevádzku malého zdroja.
Malý zdroj musí mať ochranu pred úrazom elektrickým prúdom a preto sa musí dať kedykoľvek odpojiť od distribučnej siete a musí byť schopný udržať nízke napätie (ELV) vo vypnutom stave, t. j. najviac 50 V AC alebo 120 V DC.
ISolar-SMG-III-11kW-wifi + Epever ET7420NC G3 + Bell MR4316AC NG
- sindyk
- Příspěvky: 685
- Registrován: pát kvě 21, 2021 12:53 pm
- Reputace:85
- Lokalita: Semily
- Výkon panelů [Wp]: 3800
- Kapacita baterie [kWh]: 16
- Chci prodávat energii: NE
- Chci/Mám dotaci: NE
Re: Návrh poloostrovnej FVE pre začínajúceho nadšenca do FVE
Tady toto se u nás údajně používá, aby to vyhovovalo. V podstatě tam říkají, že všechny Deye měniče hlídají i únik DC proudu.
- Přílohy
Deye_RCD Declaration.pdf- (192.23 KiB) Staženo 62 x
3800 Wp (10s Elerix 380 Wp) | Deye SUN-8K-SG04LP3-EU | Wattery Premium UP 16 kWh
Domovské vlákno: FVE Pojizeří, povinná četba: Victron Wiring Unlimited
Domovské vlákno: FVE Pojizeří, povinná četba: Victron Wiring Unlimited
- Diablo1st
- Příspěvky: 2306
- Registrován: pon lis 01, 2021 7:41 pm
- Reputace:229
- Lokalita: MY, SR
- Výkon panelů [Wp]: 10200
- Kapacita baterie [kWh]: 28
- Bydliště: SR MY
Re: Návrh poloostrovnej FVE pre začínajúceho nadšenca do FVE
Veľmi nejednoznačne napísané.Ferda2 píše: pát led 09, 2026 9:49 am4.7 Malé zdrojeNortonko píše: pát led 09, 2026 9:35 amv ATN to je bod 4.5.4 -áno ATN sú "len" odporúčané technické riešenia dobrovoľné. ďalej sú ostatné bezpečnostné podmienky v STN, konkrétne ohľadom napätia, zásahu el. prúdom atď. hlavne súbor noriem STN 34 2000 xxx, napríklad STN 34 2000-4-41 čo je základná bezpečnostná norma a potom napr. STN EN 61140 Ochrana pred zásahom el. prúdom ....Kód: Vybrat vše
... zníženie napätia na bezpečnú úroveň ....
Malý zdroj je zariadenie, ktoré vyrába elektrickú energiu zo slnečnej energie a je pripojené k vnútornej elektrickej inštalácii nízkeho napätia v budove. Najvyšší menovitý výkon malého zdroja s vlastným napájaním je 10 kWp a nesmie prekročiť príkon uvedený v súhlase s pripojením. Z bezpečnostných dôvodov musí malý zdroj spĺňať ustanovenia nariadenia, ktorým sa upravujú technické požiadavky na bezpečnú a správnu prevádzku malého zdroja.
Malý zdroj musí mať ochranu pred úrazom elektrickým prúdom a preto sa musí dať kedykoľvek odpojiť od distribučnej siete a musí byť schopný udržať nízke napätie (ELV) vo vypnutom stave, t. j. najviac 50 V AC alebo 120 V DC.
V prvom rade, definícia malého zdroje je definovaná odlišne - súčet výkonov meničov je do 10,8kW, panelov môžeš mať aj viac.
V druhom rade, to nízke napätie má byť kde? Na baterke? na meniči? Na paneloch?
Nechcem tu pleveliť vlákno akademickou debatou
Victron ESS AC Coupling:
2,75kWp on-grid + 3,3kWp RS450/100 + 4,15kWp Fronius Primo 4.0.1 + MP2 5kVA + 2x 17x280Ah + JK BMS
2,75kWp on-grid + 3,3kWp RS450/100 + 4,15kWp Fronius Primo 4.0.1 + MP2 5kVA + 2x 17x280Ah + JK BMS
- Kostěj
- Příspěvky: 927
- Registrován: úte úno 25, 2014 9:33 pm
- Reputace:123
- Lokalita: Dobrovicko
- Systémové napětí: ~60 V
- Výkon panelů [Wp]: 9200
- Kapacita baterie [kWh]: 34
- Chci prodávat energii: NE
- Chci/Mám dotaci: NE
Re: Návrh poloostrovnej FVE pre začínajúceho nadšenca do FVE
Mám na střeše (m.j.) šest panelů, 3s, stažené samostatně dolů a až pojistkama spojené. Na každém stringu je ampérmetr. Asi 30 m od baráku (u souseda) je vysoká bříza, vršek je hodně řídkej. Teď v zimě vrhá stín na panely, okem to vůbec není rozeznatelné, ale ampérmetr ukazuje poloviční proud zasíněné trojice. Jak stín putuje, přesouvá se to z jedné trojice na druhou. Kdybych to měl spojené na 6s, měl bych poloviční výkon. Takhle mi spadne jen ta jedna trojice, pokles o 25 procent. Jestli ti přes panely putuje nějaký stín, tak bych volil buď optimizery, nebo krátké stringy, 2s, 3s. Optimizery hodnotím jako kurvítko. 2s/3S je víc drátů, ale v ceně elektrárny se to ztratí. Zvaž to při návrhu.Ghost86 píše: čtv led 08, 2026 10:58 pmPotreboval by som tie stringy mat od pravej strany, aby neboli vsetky panely ovplyvnene tienom z vedlajsej budovy.
7.8kWp (12x650Wp jih 35°: 2p3s EpeverTracer6420AN, 3p2s AxpertKing), AxpertKing 5kW/150V. LiFePo 34kWh: 18x280Ah (2022)+18x315Ah (2026). 2xJBDBMS-UART->ESP32->grafana+vytěžování 60V/4.8kW do NADO750. 5x280Wp (2013)-> přímotop.
- GHLL
- Příspěvky: 209
- Registrován: úte pro 17, 2024 8:41 am
- Reputace:89
- Lokalita: Kroměříž
- Systémové napětí: 48V
- Výkon panelů [Wp]: 13 300
- Kapacita baterie [kWh]: 14
- Chci prodávat energii: NE
- Chci/Mám dotaci: NE
Re: Návrh poloostrovnej FVE pre začínajúceho nadšenca do FVE
2s nebo 3s je k tomu EASUN 11kW na jeho MPPT nevhodné. Řešením by bylo použít EASUN 11Kw jen jako střídač a panely 2s nebo 3s připojit k samostatným MPPT třeba VICTRON. Pokud teda nechceš pustit korunu a udělat to celé na VICTRONu.
- Victron 150/85-Tr
- Smartshunt - Homeassistant
- Kombiměnič: Voltronic 11kW
- Ghost86
- Příspěvky: 257
- Registrován: úte led 06, 2026 3:38 pm
- Reputace:9
- Lokalita: SK - Kysuce
- Výkon panelů [Wp]: 9kWp
- Kapacita baterie [kWh]: 16Kwh (16s)
- Chci prodávat energii: NE
- Chci/Mám dotaci: NE
Re: Návrh poloostrovnej FVE pre začínajúceho nadšenca do FVE
Ahojte, riadna diskusia sa tu strhla, ale dakujem vsetkym 
No Victron neplanujem (yet), ked uz viac penazi, siel by som skor do Deye a to je tiez HV. Zatial som uplne nevylucil ten Easun 11KW, stale sa mi zda na zaciatok celkom vyhodny.....
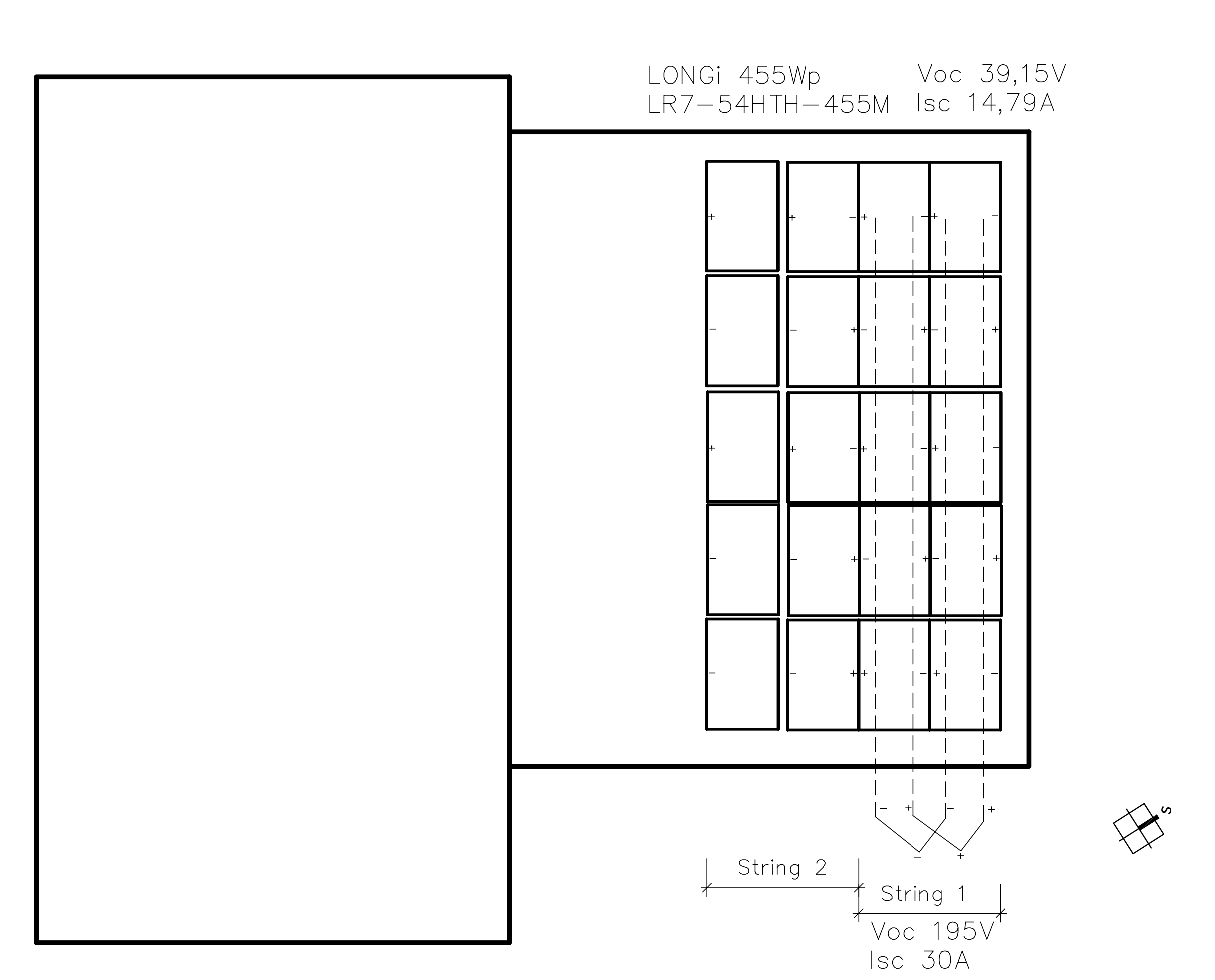
Kazdopadne som urobil dalsi navrh. Co poviete na taketo: Ak to mam spravne (pls hodte očkom) tak jeden string 5s2p by bol cca 190V ale az 30A (max). Bol by to problem pre MMPT?
Fungovalo by to?
No Victron neplanujem (yet), ked uz viac penazi, siel by som skor do Deye a to je tiez HV. Zatial som uplne nevylucil ten Easun 11KW, stale sa mi zda na zaciatok celkom vyhodny.....
Kazdopadne som urobil dalsi navrh. Co poviete na taketo: Ak to mam spravne (pls hodte očkom) tak jeden string 5s2p by bol cca 190V ale az 30A (max). Bol by to problem pre MMPT?
Fungovalo by to?
20x Jinko 460 Wp JKM460N-48HL4M-DV (10s2p) - DEYE hybridný menič SUN-12K-SG05LP3-EU-SM2 - DYI LiFePO4 EVE MB31 16S batéria
- Ferda2
- Příspěvky: 90
- Registrován: pát zář 27, 2024 10:07 pm
- Reputace:16
- Lokalita: Pardubice
- Systémové napětí: 48V
- Výkon panelů [Wp]: 6200
- Kapacita baterie [kWh]: 20,8
- Chci prodávat energii: NE
- Chci/Mám dotaci: NE
Re: Návrh poloostrovnej FVE pre začínajúceho nadšenca do FVE
Max proud je 18A na string
ISolar-SMG-III-11kW-wifi + Epever ET7420NC G3 + Bell MR4316AC NG
- GHLL
- Příspěvky: 209
- Registrován: úte pro 17, 2024 8:41 am
- Reputace:89
- Lokalita: Kroměříž
- Systémové napětí: 48V
- Výkon panelů [Wp]: 13 300
- Kapacita baterie [kWh]: 14
- Chci prodávat energii: NE
- Chci/Mám dotaci: NE
Re: Návrh poloostrovnej FVE pre začínajúceho nadšenca do FVE
O ubírání voltů u toho 11kW kombiměniče vůbec neuvažuj
, mám to zažité, a lituju toho že mám připojeno na každý MPPT 8 x 550Wp : vše do série > 256V (312Voc) 17,3A > 4 400Wp na string. Měl jsem dát těch panelů 10 a 10 aby bylo větší napětí. Na podzim už bylo potřeba každý volt aby se rozjel MPPT a nedržel se na nízkém výkonu (napětí sběrnice).
Musíš se rozhodnout jestli půjdeš cestou HV na střeše, a s tím spojeným dimenzováním vedením vodičů a ochran, nebo cestou více MPPT a 2s - 3s stringů do 120V.
Musíš se rozhodnout jestli půjdeš cestou HV na střeše, a s tím spojeným dimenzováním vedením vodičů a ochran, nebo cestou více MPPT a 2s - 3s stringů do 120V.
- Victron 150/85-Tr
- Smartshunt - Homeassistant
- Kombiměnič: Voltronic 11kW
- Franta2776
- Příspěvky: 6011
- Registrován: pon úno 01, 2021 4:00 pm
- Reputace:622
Re: Návrh poloostrovnej FVE pre začínajúceho nadšenca do FVE
Mppt to na max 18A omezí.Kidně přepanelovat.
32540Wp, 90ks vakuové trubice jihozápad, (Lifepo4 17S 520Ah, trakční gel 800Ah), Axpert Max 7200VA, Easun Isolar 5500VA,Multiplus 2 48/5000,MPPT 150/85, 150/100
Pojízdná FV 200Wp=2x100Wp flexibilní+4x280Ah lifepo4+měnič 1500W
Pojízdná FV 200Wp=2x100Wp flexibilní+4x280Ah lifepo4+měnič 1500W
- Mogul
- Příspěvky: 556
- Registrován: sob srp 20, 2022 9:20 pm
- Reputace:64
- Lokalita: Litoměřice
- Systémové napětí: 48V
- Výkon panelů [Wp]: 19640
- Kapacita baterie [kWh]: 48k
- Chci prodávat energii: NE
- Chci/Mám dotaci: NE
Re: Návrh poloostrovnej FVE pre začínajúceho nadšenca do FVE
U Maxe 8k mě ten proud na moc dlouho neomezil. Chvilku jel na max a pak se prostě vypnul. Bez jakékoli chyby, bez jakéhokoli upozornění. Prostě najednou tma. Takže s tím překračováním omezení na více jak 18A bych moc na 100% nepočítal.
Nicméně, někomu to u nějakého Axperta fungovat může.
Neplést si přepanelování s překračováním max hodnot na vstupu. Ať už u napětí, nebo vstupního proudu.
Nicméně, někomu to u nějakého Axperta fungovat může.
Neplést si přepanelování s překračováním max hodnot na vstupu. Ať už u napětí, nebo vstupního proudu.
- Ghost86
- Příspěvky: 257
- Registrován: úte led 06, 2026 3:38 pm
- Reputace:9
- Lokalita: SK - Kysuce
- Výkon panelů [Wp]: 9kWp
- Kapacita baterie [kWh]: 16Kwh (16s)
- Chci prodávat energii: NE
- Chci/Mám dotaci: NE
Re: Návrh poloostrovnej FVE pre začínajúceho nadšenca do FVE
Ach jo, to som si aj myslel. Ale napr pri Deye by bola podobna situacia....GHLL píše: pát led 09, 2026 1:29 pmO ubírání voltů u toho 11kW kombiměniče vůbec neuvažuj, mám to zažité, a lituju toho že mám připojeno na každý MPPT 8 x 550Wp : vše do série > 256V (312Voc) 17,3A > 4 400Wp na string. Měl jsem dát těch panelů 10 a 10 aby bylo větší napětí. Na podzim už bylo potřeba každý volt aby se rozjel MPPT a nedržel se na nízkém výkonu (napětí sběrnice).
Musíš se rozhodnout jestli půjdeš cestou HV na střeše, a s tím spojeným dimenzováním vedením vodičů a ochran, nebo cestou více MPPT a 2s - 3s stringů do 120V.
Cize bude lepsie nechat cca 10 seriovo co bude cca 390V, resp ake odporucas napatie?
A hlavne to druhe MPPT je parametrovo rovnake, musi byt tento druhy string totozny s prvym?
20x Jinko 460 Wp JKM460N-48HL4M-DV (10s2p) - DEYE hybridný menič SUN-12K-SG05LP3-EU-SM2 - DYI LiFePO4 EVE MB31 16S batéria
- Diablo1st
- Příspěvky: 2306
- Registrován: pon lis 01, 2021 7:41 pm
- Reputace:229
- Lokalita: MY, SR
- Výkon panelů [Wp]: 10200
- Kapacita baterie [kWh]: 28
- Bydliště: SR MY
Re: Návrh poloostrovnej FVE pre začínajúceho nadšenca do FVE
V tvojom prípade áno, 2 stringy 10 panelov v sérii.
Sú to samostatné mppt, takže nemusia mať rovnaký počet panelov, ale pri HV stringoch je lepšie sa držať s napätím vyššie niekde okolo nominálneho napätia daného mppt.
Sú to samostatné mppt, takže nemusia mať rovnaký počet panelov, ale pri HV stringoch je lepšie sa držať s napätím vyššie niekde okolo nominálneho napätia daného mppt.
Victron ESS AC Coupling:
2,75kWp on-grid + 3,3kWp RS450/100 + 4,15kWp Fronius Primo 4.0.1 + MP2 5kVA + 2x 17x280Ah + JK BMS
2,75kWp on-grid + 3,3kWp RS450/100 + 4,15kWp Fronius Primo 4.0.1 + MP2 5kVA + 2x 17x280Ah + JK BMS
- GHLL
- Příspěvky: 209
- Registrován: úte pro 17, 2024 8:41 am
- Reputace:89
- Lokalita: Kroměříž
- Systémové napětí: 48V
- Výkon panelů [Wp]: 13 300
- Kapacita baterie [kWh]: 14
- Chci prodávat energii: NE
- Chci/Mám dotaci: NE
Re: Návrh poloostrovnej FVE pre začínajúceho nadšenca do FVE
Pokud se bavíme o provozu EASUN 11kW tak těch 390V je OK, druhý string nemusí být stejné s prvním.
Jenom poznamenám další věc s kterou je potřeba počítat, a to je jaké se použijí svodiče přepětí, máš plech na střeše takže T1 a T2 a tam už zas narážíš na to aby se max. napětí stringu vlezlo do rozsahu použitých svodičů. Můžeš se podívat třeba na SALTEK tam mi ten web přišel celky pěkný a srozumitelný..
Proto bych se taky přiklonil k tomu aby ty stringy byli skoro stejné.
Jenom poznamenám další věc s kterou je potřeba počítat, a to je jaké se použijí svodiče přepětí, máš plech na střeše takže T1 a T2 a tam už zas narážíš na to aby se max. napětí stringu vlezlo do rozsahu použitých svodičů. Můžeš se podívat třeba na SALTEK tam mi ten web přišel celky pěkný a srozumitelný..
Proto bych se taky přiklonil k tomu aby ty stringy byli skoro stejné.
- Victron 150/85-Tr
- Smartshunt - Homeassistant
- Kombiměnič: Voltronic 11kW
- Ghost86
- Příspěvky: 257
- Registrován: úte led 06, 2026 3:38 pm
- Reputace:9
- Lokalita: SK - Kysuce
- Výkon panelů [Wp]: 9kWp
- Kapacita baterie [kWh]: 16Kwh (16s)
- Chci prodávat energii: NE
- Chci/Mám dotaci: NE
Re: Návrh poloostrovnej FVE pre začínajúceho nadšenca do FVE
Ok co sa tyka tej prepatovky teda, mohol by som pouzit napriklad tuto?
https://eshop.jm-tech.sk/prepatova-ochr ... or-related
Prepodkladam zeby museli byt dve, kazda na jeden string.
Alebo mam hladat nejaku s nizsim napatim, okolo 1000V alebo 600V? Ma to vlastne nejaky efekt, kedze tieto SPD su na blesk a tam su milionove volty?
Dakujem
https://eshop.jm-tech.sk/prepatova-ochr ... or-related
Prepodkladam zeby museli byt dve, kazda na jeden string.
Alebo mam hladat nejaku s nizsim napatim, okolo 1000V alebo 600V? Ma to vlastne nejaky efekt, kedze tieto SPD su na blesk a tam su milionove volty?
Dakujem
20x Jinko 460 Wp JKM460N-48HL4M-DV (10s2p) - DEYE hybridný menič SUN-12K-SG05LP3-EU-SM2 - DYI LiFePO4 EVE MB31 16S batéria
- Franta2776
- Příspěvky: 6011
- Registrován: pon úno 01, 2021 4:00 pm
- Reputace:622
Re: Návrh poloostrovnej FVE pre začínajúceho nadšenca do FVE
Já mám maxe 7,2 a ten to omezí přesně na 4000W a jede tak třeba 3 hodiny.Mogul píše: pát led 09, 2026 1:55 pmU Maxe 8k mě ten proud na moc dlouho neomezil. Chvilku jel na max a pak se prostě vypnul. Bez jakékoli chyby, bez jakéhokoli upozornění. Prostě najednou tma. Takže s tím překračováním omezení na více jak 18A bych moc na 100% nepočítal.
Nicméně, někomu to u nějakého Axperta fungovat může.
Neplést si přepanelování s překračováním max hodnot na vstupu. Ať už u napětí, nebo vstupního proudu.
Mám na tom stringu 9kWp jedním smĕrem.
Nepřehřál se ti náhodou??
32540Wp, 90ks vakuové trubice jihozápad, (Lifepo4 17S 520Ah, trakční gel 800Ah), Axpert Max 7200VA, Easun Isolar 5500VA,Multiplus 2 48/5000,MPPT 150/85, 150/100
Pojízdná FV 200Wp=2x100Wp flexibilní+4x280Ah lifepo4+měnič 1500W
Pojízdná FV 200Wp=2x100Wp flexibilní+4x280Ah lifepo4+měnič 1500W
- GHLL
- Příspěvky: 209
- Registrován: úte pro 17, 2024 8:41 am
- Reputace:89
- Lokalita: Kroměříž
- Systémové napětí: 48V
- Výkon panelů [Wp]: 13 300
- Kapacita baterie [kWh]: 14
- Chci prodávat energii: NE
- Chci/Mám dotaci: NE
Re: Návrh poloostrovnej FVE pre začínajúceho nadšenca do FVE
Nejsem v tom odborník, ale co si vzpomínám tak:Ghost86 píše: pát led 09, 2026 2:48 pmOk co sa tyka tej prepatovky teda, mohol by som pouzit napriklad tuto?
https://eshop.jm-tech.sk/prepatova-ochr ... or-related
Prepodkladam zeby museli byt dve, kazda na jeden string.
Alebo mam hladat nejaku s nizsim napatim, okolo 1000V alebo 600V? Ma to vlastne nejaky efekt, kedze tieto SPD su na blesk a tam su milionove volty?
Dakujem
Svodič T1 by měl být tam kde kabel vstupuje do chráněného objektu. Zapojený do 'Y'. já použil FLP-PV1000/Y
U MPPT ještě T2. Napětí svodiče tak aby bylo vyšší něž VoC. použil jsem: SLP-PV500 V/U
- Victron 150/85-Tr
- Smartshunt - Homeassistant
- Kombiměnič: Voltronic 11kW
Kdo je online
Uživatelé procházející toto fórum: Claudebot [Bot], Google Adsense [Bot], META, OAI-SearchBot
