Vytěžování do akumulačních kamen
Souhrn tématu
Diskuze se věnuje využití starších i nových akumulačních kamen pro vytěžování přebytků energie z fotovoltaických panelů a levného nočního proudu. Popisuje možnosti modulace příkonu, význam ventilátoru pro efektivní šíření tepla a různé způsoby regulace topných spirál. Uživatelé sdílejí zkušenosti s připojením kamen k vytěžovačům a diskutují výhody magneziových cihel a provozu bez termostatu či ventilátoru pro jednoduché a levné řešení vytápění.
- cipis
- Moderátor
- Příspěvky: 6955
- Registrován: pon srp 16, 2021 9:31 pm
- Reputace:979
- Lokalita: blízko Brna
- Systémové napětí: 24V
- Výkon panelů [Wp]: 13+ kWp
- Kapacita baterie [kWh]: 40+26
- Chci prodávat energii: NE
- Chci/Mám dotaci: NE
- Bydliště: blízko Brna
Vytěžování do akumulačních kamen
Pokračování z tématu výběr klimatizace ...
Na bazosu jsem našel inzerát na starší, ale nepoužívaná kamna AEG 1,2 a 2,4 kW (WSP 1210 F a 2410 F). Bylo to za dobrou cenu, tak neber to, když je takový odpor vůči klimě.
Kamna jsou celkem modulárně seskládaná, má to více spirál, tak se bude dát pohrát si s příkonem, navíc řídící elektronika má extra napájení, tak tomu nebude vůbec vadit, když ta silová bude rozsekaná triakem.
Menší mají cca. 50 kg "cihel", větší 100 kg.
Nějaké foto následuje.
Na bazosu jsem našel inzerát na starší, ale nepoužívaná kamna AEG 1,2 a 2,4 kW (WSP 1210 F a 2410 F). Bylo to za dobrou cenu, tak neber to, když je takový odpor vůči klimě.
Kamna jsou celkem modulárně seskládaná, má to více spirál, tak se bude dát pohrát si s příkonem, navíc řídící elektronika má extra napájení, tak tomu nebude vůbec vadit, když ta silová bude rozsekaná triakem.
Menší mají cca. 50 kg "cihel", větší 100 kg.
Nějaké foto následuje.
16+ kWp: 9850 Wp Jih, 2040 Wp Východ, 1490 Wp Západ, 2700 Wp mikroinvertory
Regulátory Epever a Victron
MP 24/5000 + Deye mikroinvertory 1+2,2 kW (můj byt + máti byt)
MP 24/1200 inet, sit, kamery atd.
Phoenix 24/5000 vytěžování do akumulačních kamen
Epever 3kW vytěžování do bojlerů + žebříky
1 kW "nabíječka" 24 V
40+ kWh staré olovo 26+ kWh Li-Ion
několik dalších MP jako záložní zdroje na různých místech
Modře píši jako moderátor, černě jako člen.
Regulátory Epever a Victron
MP 24/5000 + Deye mikroinvertory 1+2,2 kW (můj byt + máti byt)
MP 24/1200 inet, sit, kamery atd.
Phoenix 24/5000 vytěžování do akumulačních kamen
Epever 3kW vytěžování do bojlerů + žebříky
1 kW "nabíječka" 24 V
40+ kWh staré olovo 26+ kWh Li-Ion
několik dalších MP jako záložní zdroje na různých místech
Modře píši jako moderátor, černě jako člen.
- cipis
- Moderátor
- Příspěvky: 6955
- Registrován: pon srp 16, 2021 9:31 pm
- Reputace:979
- Lokalita: blízko Brna
- Systémové napětí: 24V
- Výkon panelů [Wp]: 13+ kWp
- Kapacita baterie [kWh]: 40+26
- Chci prodávat energii: NE
- Chci/Mám dotaci: NE
- Bydliště: blízko Brna
Re: Vytěžování do akumulačních kamen
Foto:
16+ kWp: 9850 Wp Jih, 2040 Wp Východ, 1490 Wp Západ, 2700 Wp mikroinvertory
Regulátory Epever a Victron
MP 24/5000 + Deye mikroinvertory 1+2,2 kW (můj byt + máti byt)
MP 24/1200 inet, sit, kamery atd.
Phoenix 24/5000 vytěžování do akumulačních kamen
Epever 3kW vytěžování do bojlerů + žebříky
1 kW "nabíječka" 24 V
40+ kWh staré olovo 26+ kWh Li-Ion
několik dalších MP jako záložní zdroje na různých místech
Modře píši jako moderátor, černě jako člen.
Regulátory Epever a Victron
MP 24/5000 + Deye mikroinvertory 1+2,2 kW (můj byt + máti byt)
MP 24/1200 inet, sit, kamery atd.
Phoenix 24/5000 vytěžování do akumulačních kamen
Epever 3kW vytěžování do bojlerů + žebříky
1 kW "nabíječka" 24 V
40+ kWh staré olovo 26+ kWh Li-Ion
několik dalších MP jako záložní zdroje na různých místech
Modře píši jako moderátor, černě jako člen.
- cipis
- Moderátor
- Příspěvky: 6955
- Registrován: pon srp 16, 2021 9:31 pm
- Reputace:979
- Lokalita: blízko Brna
- Systémové napětí: 24V
- Výkon panelů [Wp]: 13+ kWp
- Kapacita baterie [kWh]: 40+26
- Chci prodávat energii: NE
- Chci/Mám dotaci: NE
- Bydliště: blízko Brna
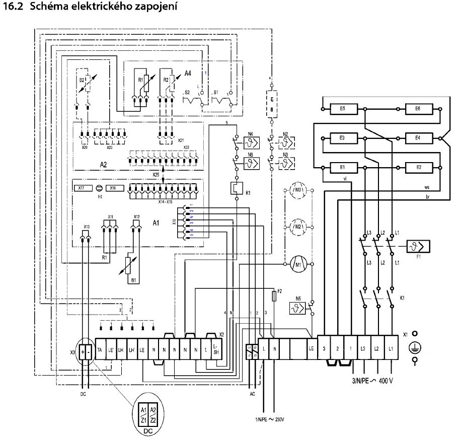
Re: Vytěžování do akumulačních kamen
Schema:
16+ kWp: 9850 Wp Jih, 2040 Wp Východ, 1490 Wp Západ, 2700 Wp mikroinvertory
Regulátory Epever a Victron
MP 24/5000 + Deye mikroinvertory 1+2,2 kW (můj byt + máti byt)
MP 24/1200 inet, sit, kamery atd.
Phoenix 24/5000 vytěžování do akumulačních kamen
Epever 3kW vytěžování do bojlerů + žebříky
1 kW "nabíječka" 24 V
40+ kWh staré olovo 26+ kWh Li-Ion
několik dalších MP jako záložní zdroje na různých místech
Modře píši jako moderátor, černě jako člen.
Regulátory Epever a Victron
MP 24/5000 + Deye mikroinvertory 1+2,2 kW (můj byt + máti byt)
MP 24/1200 inet, sit, kamery atd.
Phoenix 24/5000 vytěžování do akumulačních kamen
Epever 3kW vytěžování do bojlerů + žebříky
1 kW "nabíječka" 24 V
40+ kWh staré olovo 26+ kWh Li-Ion
několik dalších MP jako záložní zdroje na různých místech
Modře píši jako moderátor, černě jako člen.
- unicast
- Příspěvky: 2418
- Registrován: sob bře 30, 2019 10:27 am
- Reputace:453
- Lokalita: JV od pekla :)
- Systémové napětí: 48V
- Výkon panelů [Wp]: 5100
- Kapacita baterie [kWh]: 49
- Chci/Mám dotaci: NE
Re: Vytěžování do akumulačních kamen
Pokud se tam ještě vejdou, tak bych tam nacpal další magnezitové nebo i šamotové cihly. Co nejvíc. Klidně bych je i rozbil na kousky příklepem, aby se vešly. A asi bych se to nebál provozovat na DC, narozdíl od bojleru to nevybuchne, ani tam nemá co začít hořet.
A cokoli jiného než spirály a cihly je tam navíc
A cokoli jiného než spirály a cihly je tam navíc
- cipis
- Moderátor
- Příspěvky: 6955
- Registrován: pon srp 16, 2021 9:31 pm
- Reputace:979
- Lokalita: blízko Brna
- Systémové napětí: 24V
- Výkon panelů [Wp]: 13+ kWp
- Kapacita baterie [kWh]: 40+26
- Chci prodávat energii: NE
- Chci/Mám dotaci: NE
- Bydliště: blízko Brna
Re: Vytěžování do akumulačních kamen
Šamotek mám někde malinkatý ráz, ale do té krabice se nic víc nevleze, je to tam normálně naskládané úplně na doraz, tam je sotva milimetr, aby to člověk vyndal ven.
S tou elektronikou to tak nejspíš dopadne, jen přes relé termostatu spínaný ten ventilátor, plus teda provozním termostatem kamen ovládaný ten stykač K1. To F1 je havarijní.
S tou elektronikou to tak nejspíš dopadne, jen přes relé termostatu spínaný ten ventilátor, plus teda provozním termostatem kamen ovládaný ten stykač K1. To F1 je havarijní.
16+ kWp: 9850 Wp Jih, 2040 Wp Východ, 1490 Wp Západ, 2700 Wp mikroinvertory
Regulátory Epever a Victron
MP 24/5000 + Deye mikroinvertory 1+2,2 kW (můj byt + máti byt)
MP 24/1200 inet, sit, kamery atd.
Phoenix 24/5000 vytěžování do akumulačních kamen
Epever 3kW vytěžování do bojlerů + žebříky
1 kW "nabíječka" 24 V
40+ kWh staré olovo 26+ kWh Li-Ion
několik dalších MP jako záložní zdroje na různých místech
Modře píši jako moderátor, černě jako člen.
Regulátory Epever a Victron
MP 24/5000 + Deye mikroinvertory 1+2,2 kW (můj byt + máti byt)
MP 24/1200 inet, sit, kamery atd.
Phoenix 24/5000 vytěžování do akumulačních kamen
Epever 3kW vytěžování do bojlerů + žebříky
1 kW "nabíječka" 24 V
40+ kWh staré olovo 26+ kWh Li-Ion
několik dalších MP jako záložní zdroje na různých místech
Modře píši jako moderátor, černě jako člen.
- skybor
- Příspěvky: 1520
- Registrován: pon dub 24, 2023 8:47 am
- Reputace:254
- Lokalita: Lašská brána Beskyd
- Systémové napětí: 48V
- Výkon panelů [Wp]: 8kWp
- Kapacita baterie [kWh]: 20kWh
Re: Vytěžování do akumulačních kamen
O něčem podobném taky uvažuju. V zimě asi o ničem, ale na to jarní/podzimní přitopení by to nemuselo být marné.
cipis: Jak to máš v plánu zapojit/provozovat ?
Já bych to asi viděl jako unicast, nechat jen spirály (s cihlama) a nějaké externí řízení ala vytěžovač do bojleru. Když bude svíti, tak nabíjet, když nebude, tak možná nabíjet z DS při NT (dokud mám ještě starý FIX) anebo vůbec. A jen těžit z případných přebytků FVE ...
cipis: Jak to máš v plánu zapojit/provozovat ?
Já bych to asi viděl jako unicast, nechat jen spirály (s cihlama) a nějaké externí řízení ala vytěžovač do bojleru. Když bude svíti, tak nabíjet, když nebude, tak možná nabíjet z DS při NT (dokud mám ještě starý FIX) anebo vůbec. A jen těžit z případných přebytků FVE ...
SkyFVE 8 kWp na výzkumné "chytré" chatě. 4x MPPT Epever XTRA4415N 4x40A, 3x LG Chem Li-Ion 12s 156Ah (cca 20 kWh/44V), SkyPowerBox LF 4810 1kVA, Victron MP 48/3000, REVO VM II 5.5kW , APC SmartUPS 5000 + PLC Siemens Logo! + Dell Optiplex 3040 Micro (Proxmox: HA, Node-RED, InfluxDB, Grafana, Mqtt, Zigbee2Mqtt, Samba, Tailscale)
- rva
- Příspěvky: 4825
- Registrován: úte dub 23, 2013 10:21 am
- Reputace:939
- Lokalita: Kousek od Lysé nad Labem
- Systémové napětí: 48V
- Výkon panelů [Wp]: 46000
- Kapacita baterie [kWh]: 40
- Chci prodávat energii: NE
- Chci/Mám dotaci: NE
- Bydliště: Kousek od Lysé nad Labem
Re: Vytěžování do akumulačních kamen
Alternativně se na to dá myslet už při stavbě/rekonstrukci a zbudovat těžkou akumulační podlahu. Mám betonovou podlahu cca 3 kubické metry, kterou nahřívám z DC 48 V / 1000 W (výpočtem o cca 0.5 st.C/hodinu). V případě potřeby mohu přepojit jednotlivé obvody a pak nahřívat z AC 230 V / 2000W.
_______________________________________________________________________
43 kWp, LiFePO4 62 kWh,
EPSolar 60 A/150 V ET6415N + 3x Isolar SM II (5 kW, 450 V, 80 A) + Axpert PIP 5048MS
43 kWp, LiFePO4 62 kWh,
EPSolar 60 A/150 V ET6415N + 3x Isolar SM II (5 kW, 450 V, 80 A) + Axpert PIP 5048MS
- stano22
- Příspěvky: 650
- Registrován: ned čer 13, 2021 1:43 pm
- Reputace:59
- Lokalita: SK-ZA
- Systémové napětí: 48V
- Výkon panelů [Wp]: 6500
- Kapacita baterie [kWh]: 25
- Chci prodávat energii: NE
- Chci/Mám dotaci: NE
- Bydliště: SK (ZA)
Re: Vytěžování do akumulačních kamen
Klasická teplovodná podlahovka, najkomfortnejší spôsob kúrenia a hocijaký poter. Mám anhydrid cca 5cm a pri 175m2 je to cca 9m3 hmoty. Elektrokotol z bazaru a už sa dá hrať. Reálne o ničom, lebo zateplený dom si drží teplo aj pár dní, keď sa na jeseň rozprší. V prechodnom období je už slnko nízko, aj v krátky deň sú pomerne dobré solarne zisky cez okná. V podstate vyššie, než na paneloch. Podľa mňa to je o ničom, pokiaľ nemá človek brutálne prepanelované.
4x EASUN MPPT 6048, 2x MP2 5kVA paralel, 16x 280Ah + 16x 230Ah LFP, 2x JKBMS, BEL do vody, Junctek shunt
- kyocera
- Příspěvky: 1479
- Registrován: čtv led 15, 2015 1:37 pm
- Reputace:386
Re: Vytěžování do akumulačních kamen
Zdravím,
k tomu co píše cipis, unikast, skybor , myšlenka fotovoltaických kamen je správná. V zimě ne, ale na podzim a na jaře fungují výborně a ještě 8 hodin po západu slunce uvolňují teplo. Zkoušel jsem jednu roční sezonu. A to bez termostatu a bez ventilátoru. Magneziové cihly i spirály snesou až 800°c a nemusíte se bát, že se k takové teplotě bez termostatu
přiblížíte.
Rozhodně lepší levna a jednoduchá akumulační kamna , než jakákoliv rotační klima s kompresorem .
Zatímco na bojlery s termostatem je DC nesmysl, zde pro akumulační kamna je DC přípustné, protože nepotřebujeme žádný provozní ani havarijní termostat. Nabije se to na maximum a i bez ventilátoru jen prouděním vzduchu zespodu uvolňují teplo a příjemně sálají teplo.
A výhodné je použít na vysoké sběrnici z panelů DC 210V až DC 250V , To je tedy 6 nebo 7 panelů a nejlépe 7s2p
Ke spínání pak stačí topologie vysokonapětový komparátr s hysterezí, zakončený spínaným tranzistorem.
Nic víc není třeba. Akmulační DC kamna bez termostatu je jediný spotřebič ve fotovoltaice , který má
smysl na rozdíl od DC bojleru, který se nám jeden prodejce snaží opakovaně tlačit do hlavy a ještě se rozčiluje, že proti němu vedu osobní kampaŇ. Alle není to nic osobního. Jen upozorňuji, že DC bojler s termostatem je moc drahý, nebo se musí klasický AC bojler zbytečně upravovat. Všichni kromě prodejce to zde ví, že trend je moderní
regulátory MPPT s AC výstupem pro levný běžný bojler. Ale to jsem odbočil. DC fotovoltaická kamna smysl mají, podle
mně stačí z kamen použít jen magneziové cihly , bez izolace skelné vaty, bez ventilátoru a bez termostatu
budou fungovat jednoduše a smysl to má . FV panely pak zapojujeme s libovolným MPPT regulátorem s AC výstupem
pro běžný laciný AC bojler a na panely přes jednoduchý laciný tranzistorový spinač s komp. s hysterezí zase připojujeme DC jednoduchá levná akumulační kamna vlastní výroby. Magneziové cihly ze starých akumulačních kamen jsem zakoupil za 500Kč. Stejně tak akumuluje teplo i silnější betonová podlaha jak píše stano 22.
k tomu co píše cipis, unikast, skybor , myšlenka fotovoltaických kamen je správná. V zimě ne, ale na podzim a na jaře fungují výborně a ještě 8 hodin po západu slunce uvolňují teplo. Zkoušel jsem jednu roční sezonu. A to bez termostatu a bez ventilátoru. Magneziové cihly i spirály snesou až 800°c a nemusíte se bát, že se k takové teplotě bez termostatu
přiblížíte.
Rozhodně lepší levna a jednoduchá akumulační kamna , než jakákoliv rotační klima s kompresorem .
Zatímco na bojlery s termostatem je DC nesmysl, zde pro akumulační kamna je DC přípustné, protože nepotřebujeme žádný provozní ani havarijní termostat. Nabije se to na maximum a i bez ventilátoru jen prouděním vzduchu zespodu uvolňují teplo a příjemně sálají teplo.
A výhodné je použít na vysoké sběrnici z panelů DC 210V až DC 250V , To je tedy 6 nebo 7 panelů a nejlépe 7s2p
Ke spínání pak stačí topologie vysokonapětový komparátr s hysterezí, zakončený spínaným tranzistorem.
Nic víc není třeba. Akmulační DC kamna bez termostatu je jediný spotřebič ve fotovoltaice , který má
smysl na rozdíl od DC bojleru, který se nám jeden prodejce snaží opakovaně tlačit do hlavy a ještě se rozčiluje, že proti němu vedu osobní kampaŇ. Alle není to nic osobního. Jen upozorňuji, že DC bojler s termostatem je moc drahý, nebo se musí klasický AC bojler zbytečně upravovat. Všichni kromě prodejce to zde ví, že trend je moderní
regulátory MPPT s AC výstupem pro levný běžný bojler. Ale to jsem odbočil. DC fotovoltaická kamna smysl mají, podle
mně stačí z kamen použít jen magneziové cihly , bez izolace skelné vaty, bez ventilátoru a bez termostatu
budou fungovat jednoduše a smysl to má . FV panely pak zapojujeme s libovolným MPPT regulátorem s AC výstupem
pro běžný laciný AC bojler a na panely přes jednoduchý laciný tranzistorový spinač s komp. s hysterezí zase připojujeme DC jednoduchá levná akumulační kamna vlastní výroby. Magneziové cihly ze starých akumulačních kamen jsem zakoupil za 500Kč. Stejně tak akumuluje teplo i silnější betonová podlaha jak píše stano 22.
-------------------------------------------------------------------------------------------------------------------
Dotace NE, 6,9kWp ,LTO 4kWh odkaz na moje domovské vlákno :
viewtopic.php?t=2309
Dotace NE, 6,9kWp ,LTO 4kWh odkaz na moje domovské vlákno :
viewtopic.php?t=2309
- thomas.007
- Příspěvky: 390
- Registrován: pát říj 28, 2016 2:30 pm
- Reputace:63
Re: Vytěžování do akumulačních kamen
Koukám, že si budu muset pospíšit, než budou levné akumulačky z bazarů pryč 
O akumulačnách uvažuji od tohoto jara, kdy občas byly velké přebytky a nebylo to kam cpát. Levné, jednoduché a spolehlivé. Ale DC o velkém výkonu s vyšším napětím než 48V bych do baráku moc necpal, možná by stálo za úvahu na spínat jedno těleso jedním tranzistorem a druhé těleso na střídačku druhým tranzistorem (střída 50%), takže se odebere vše a přitom na každém tělese bude tepavý proud, který bude mít vždy šanci zhasnout (termostat). Jinak souhlas s příspěvkem Kyocera výše, akumulačka není bojler.
O akumulačnách uvažuji od tohoto jara, kdy občas byly velké přebytky a nebylo to kam cpát. Levné, jednoduché a spolehlivé. Ale DC o velkém výkonu s vyšším napětím než 48V bych do baráku moc necpal, možná by stálo za úvahu na spínat jedno těleso jedním tranzistorem a druhé těleso na střídačku druhým tranzistorem (střída 50%), takže se odebere vše a přitom na každém tělese bude tepavý proud, který bude mít vždy šanci zhasnout (termostat). Jinak souhlas s příspěvkem Kyocera výše, akumulačka není bojler.
- unicast
- Příspěvky: 2418
- Registrován: sob bře 30, 2019 10:27 am
- Reputace:453
- Lokalita: JV od pekla :)
- Systémové napětí: 48V
- Výkon panelů [Wp]: 5100
- Kapacita baterie [kWh]: 49
- Chci/Mám dotaci: NE
Re: Vytěžování do akumulačních kamen
Magnezitové (MgCO3). Magneziové bych do akumulaček fakt nedávalkyocera píše:Magneziové cihly i spirály snesou až 800°c
- cipis
- Moderátor
- Příspěvky: 6955
- Registrován: pon srp 16, 2021 9:31 pm
- Reputace:979
- Lokalita: blízko Brna
- Systémové napětí: 24V
- Výkon panelů [Wp]: 13+ kWp
- Kapacita baterie [kWh]: 40+26
- Chci prodávat energii: NE
- Chci/Mám dotaci: NE
- Bydliště: blízko Brna
Re: Vytěžování do akumulačních kamen
Jj, mám další vytěžovače alá Marek v šuplíku, tak jen vhodnou krabičku a zapojit.
Vzhledem k tomu, kolik to má spirál, tak se i nabízí řízení něčím jako gbo aku či jiné, co umí kaskády.
Já se spokojím s tím fázově řízeným vytěžovačem, uvidí se, jak to bude šlapat.
Účelem je odsunout zapnutí plynového kotle na co nejpozději. Vzhledem k D45d sazbě je i možné, že to budu přikrmovat z DS, než abych natápěl celý barák plynem. Uvidíme, jak to bude i s časem, abych to náhodou nezapojoval až za dlouhých zimních večerů a tedy to chystal až na jaro
Každopádně mě čeká i natahání dalších kabelů u máti v bytě, aby byla aspoň jedna zásuvka s nízkým tarifem a další "vytěžovací" v každém pokoji, aby to nebylo zadrátované jen na jednu místnost.
Vzhledem k tomu, kolik to má spirál, tak se i nabízí řízení něčím jako gbo aku či jiné, co umí kaskády.
Já se spokojím s tím fázově řízeným vytěžovačem, uvidí se, jak to bude šlapat.
Účelem je odsunout zapnutí plynového kotle na co nejpozději. Vzhledem k D45d sazbě je i možné, že to budu přikrmovat z DS, než abych natápěl celý barák plynem. Uvidíme, jak to bude i s časem, abych to náhodou nezapojoval až za dlouhých zimních večerů a tedy to chystal až na jaro
Každopádně mě čeká i natahání dalších kabelů u máti v bytě, aby byla aspoň jedna zásuvka s nízkým tarifem a další "vytěžovací" v každém pokoji, aby to nebylo zadrátované jen na jednu místnost.
skybor píše:O něčem podobném taky uvažuju. V zimě asi o ničem, ale na to jarní/podzimní přitopení by to nemuselo být marné.
cipis: Jak to máš v plánu zapojit/provozovat ?
Já bych to asi viděl jako unicast, nechat jen spirály (s cihlama) a nějaké externí řízení ala vytěžovač do bojleru. Když bude svíti, tak nabíjet, když nebude, tak možná nabíjet z DS při NT (dokud mám ještě starý FIX) anebo vůbec. A jen těžit z případných přebytků FVE ...
16+ kWp: 9850 Wp Jih, 2040 Wp Východ, 1490 Wp Západ, 2700 Wp mikroinvertory
Regulátory Epever a Victron
MP 24/5000 + Deye mikroinvertory 1+2,2 kW (můj byt + máti byt)
MP 24/1200 inet, sit, kamery atd.
Phoenix 24/5000 vytěžování do akumulačních kamen
Epever 3kW vytěžování do bojlerů + žebříky
1 kW "nabíječka" 24 V
40+ kWh staré olovo 26+ kWh Li-Ion
několik dalších MP jako záložní zdroje na různých místech
Modře píši jako moderátor, černě jako člen.
Regulátory Epever a Victron
MP 24/5000 + Deye mikroinvertory 1+2,2 kW (můj byt + máti byt)
MP 24/1200 inet, sit, kamery atd.
Phoenix 24/5000 vytěžování do akumulačních kamen
Epever 3kW vytěžování do bojlerů + žebříky
1 kW "nabíječka" 24 V
40+ kWh staré olovo 26+ kWh Li-Ion
několik dalších MP jako záložní zdroje na různých místech
Modře píši jako moderátor, černě jako člen.
- skybor
- Příspěvky: 1520
- Registrován: pon dub 24, 2023 8:47 am
- Reputace:254
- Lokalita: Lašská brána Beskyd
- Systémové napětí: 48V
- Výkon panelů [Wp]: 8kWp
- Kapacita baterie [kWh]: 20kWh
Re: Vytěžování do akumulačních kamen
Mám možnost levně koupit 2kw a 3kW akumulačky. Pochopil jsem z toho co jsem našel na netu, že tam jsou většinou 3 topné tělesa. Je tak ? Uvažuju tedy celou regulaci odpojit a dvě spirály napojit na vytěžovač z FVE a možná jednu nechat zapojenou přes stykač (řízený LOGEM) na DS na eventuální možnost přitopení, když třeba nebudem doma a nebude svítit.
A ještě jeden dotaz. Musí tam běžet ten ventilátor?
A ještě jeden dotaz. Musí tam běžet ten ventilátor?
SkyFVE 8 kWp na výzkumné "chytré" chatě. 4x MPPT Epever XTRA4415N 4x40A, 3x LG Chem Li-Ion 12s 156Ah (cca 20 kWh/44V), SkyPowerBox LF 4810 1kVA, Victron MP 48/3000, REVO VM II 5.5kW , APC SmartUPS 5000 + PLC Siemens Logo! + Dell Optiplex 3040 Micro (Proxmox: HA, Node-RED, InfluxDB, Grafana, Mqtt, Zigbee2Mqtt, Samba, Tailscale)
- cipis
- Moderátor
- Příspěvky: 6955
- Registrován: pon srp 16, 2021 9:31 pm
- Reputace:979
- Lokalita: blízko Brna
- Systémové napětí: 24V
- Výkon panelů [Wp]: 13+ kWp
- Kapacita baterie [kWh]: 40+26
- Chci prodávat energii: NE
- Chci/Mám dotaci: NE
- Bydliště: blízko Brna
Re: Vytěžování do akumulačních kamen
Tech spiral je tam podstatne vic, aspon na tech, co mam ja.
Ventilator je potreba, ten vzduch se dole nasava, protahne otvorama v cihlach nahoru a dolu, a zase spodem (nad vstupem) fouka ven. V te spodni casti se to promicha s tim vstupnim. Jinak by to totiz hnalo ven hodne horky vzduch.
Bez ventilatoru to hreje jen defacto ztratama, skrz izolaci atd.
Ventilator je potreba, ten vzduch se dole nasava, protahne otvorama v cihlach nahoru a dolu, a zase spodem (nad vstupem) fouka ven. V te spodni casti se to promicha s tim vstupnim. Jinak by to totiz hnalo ven hodne horky vzduch.
Bez ventilatoru to hreje jen defacto ztratama, skrz izolaci atd.
16+ kWp: 9850 Wp Jih, 2040 Wp Východ, 1490 Wp Západ, 2700 Wp mikroinvertory
Regulátory Epever a Victron
MP 24/5000 + Deye mikroinvertory 1+2,2 kW (můj byt + máti byt)
MP 24/1200 inet, sit, kamery atd.
Phoenix 24/5000 vytěžování do akumulačních kamen
Epever 3kW vytěžování do bojlerů + žebříky
1 kW "nabíječka" 24 V
40+ kWh staré olovo 26+ kWh Li-Ion
několik dalších MP jako záložní zdroje na různých místech
Modře píši jako moderátor, černě jako člen.
Regulátory Epever a Victron
MP 24/5000 + Deye mikroinvertory 1+2,2 kW (můj byt + máti byt)
MP 24/1200 inet, sit, kamery atd.
Phoenix 24/5000 vytěžování do akumulačních kamen
Epever 3kW vytěžování do bojlerů + žebříky
1 kW "nabíječka" 24 V
40+ kWh staré olovo 26+ kWh Li-Ion
několik dalších MP jako záložní zdroje na různých místech
Modře píši jako moderátor, černě jako člen.
- unicast
- Příspěvky: 2418
- Registrován: sob bře 30, 2019 10:27 am
- Reputace:453
- Lokalita: JV od pekla :)
- Systémové napětí: 48V
- Výkon panelů [Wp]: 5100
- Kapacita baterie [kWh]: 49
- Chci/Mám dotaci: NE
Re: Vytěžování do akumulačních kamen
Akumulačky jsou taková z nouze ctnost, elektrické kachlovky, stavěné na čtyřiadvacetihodinový cyklus a levný noční proud. Pokud chceš cyklus delší, musíš buď zvýšit akumulační kapacitu (= víc cihel) nebo zpomalit uvolňování tepla do okolí (od toho tam je ten ventilátor).
Kdo je online
Uživatelé procházející toto fórum: Claudebot [Bot]
