Dopojeni bojleru
Souhrn tématu
Diskuze se zaměřuje na dopojení kombinovaného bojleru k topné soustavě pomocí alpex trubek. Uživatelé řeší vhodnost průměru trubek, kompatibilitu s oběhovými čerpadly a správné zapojení čidel teploty. Sdílejí se zkušenosti s různými typy kotlů, zejména Junkers, a řeší se otázky ohřevu vody a možné komplikace při instalaci. Součástí je i diskuze o materiálech a praktických postupech při montáži.
- diablo007
- Příspěvky: 3186
- Registrován: stř lis 28, 2018 7:57 pm
- Reputace: 239
- Bydliště: Vyškov
Re: Dopojeni bojleru
Proto opravdu 99% věci na baráku radši dělám sám. Materiál si dnes sehnat je snadné svářečka na ppr trubky je 1000kc a udělá to celej rodinej barák bez problémů jakékoliv komplikovanější zařízení se dá vždy půjčit což dost často stejně dělají i ti menší topenáři viz lisovací kleště na pex trubky a je dnes na baráku vlastně hromadu hotovo. Už je doba kdy s pexem tahají vodari nejen podlahovku ale rovnou i radiátory už sem viděl i rozvody vody s tím atdbrumlaj píše:Se mnou mají také pořádkumilní fušeři problém. Prostě to uděláte jak říkám, nebo si jděte dohodnout výrobu pořádku jinde. Ale to nebude fungovat. To nechte na mně. Vy se starejte ať to neteče.diablo007 píše:........ se slovy dělám to tak pořád a vždy to funguje. ........
-
brumlaj
- Příspěvky: 2462
- Registrován: ned kvě 12, 2013 2:24 pm
- Reputace: 259
Re: Dopojeni bojleru
jj, já ale ještě kvůli galvaniho článkům dodržoval všude železo a vařit kyslík plynem se už asi učit nebudu. Ale zvážím zda mne nevyjde levněji občas nějaká ta havárie z důlkové koroze ....... holt i fušerů ubývá ......
Moudrost nepřichází vždy s věkem, někdy věk přichází sám.
-
lzahradil
- Site Admin
- Příspěvky: 1056
- Registrován: ned srp 12, 2012 1:18 am
- Reputace: 388
- Lokalita: blízko Plzně
- Systémové napětí: 48V
- Výkon panelů [Wp]: 5840
- Kapacita baterie [kWh]: 28
- Chci prodávat energii: NE
- Chci/Mám dotaci: NE
- Bydliště: CZ
Re: Dopojeni bojleru
Nemá tu někdo zkušenosti s turbo kotlem Junkers?
Je to plynová kombinace pro vytápění a ohřev TUV. Moje idea je taková že bych připojil na vstup pro ohřev TUV výstup z bojleru nahřávaným skrz vytěžovač. Otázka je, zda v případě že kotel zjistí že má dostatečně teplou vodu (z bojleru), tak nezačne topit.
Teoreticky by to fungovat mohlo. Na vstupu sice žádný teplotní čidlo nebude, proč by bylo, když se tam předpokládá se studenou vodou. Ale na výstupu už bude. Takže kotel by pravděpodobně spustil ale jakmile by jim protekla teplá voda tak by zase vypnul s tím že má dostatečně teplou.
Je to reálné nebo v tom bude nějakej háček?
Je to plynová kombinace pro vytápění a ohřev TUV. Moje idea je taková že bych připojil na vstup pro ohřev TUV výstup z bojleru nahřávaným skrz vytěžovač. Otázka je, zda v případě že kotel zjistí že má dostatečně teplou vodu (z bojleru), tak nezačne topit.
Teoreticky by to fungovat mohlo. Na vstupu sice žádný teplotní čidlo nebude, proč by bylo, když se tam předpokládá se studenou vodou. Ale na výstupu už bude. Takže kotel by pravděpodobně spustil ale jakmile by jim protekla teplá voda tak by zase vypnul s tím že má dostatečně teplou.
Je to reálné nebo v tom bude nějakej háček?
FVE 5,84kWp [Axpert 5048MK - LiFePO4 580Ah@48V (zatím) | 3x Axpert MSXE 2400W - NiCd 800Ah@24V]
- diablo007
- Příspěvky: 3186
- Registrován: stř lis 28, 2018 7:57 pm
- Reputace: 239
- Bydliště: Vyškov
Re: Dopojeni bojleru
Je to prutokac nebo nebo má v sobě integrovanou nádrž pro TUV?
-
lzahradil
- Site Admin
- Příspěvky: 1056
- Registrován: ned srp 12, 2012 1:18 am
- Reputace: 388
- Lokalita: blízko Plzně
- Systémové napětí: 48V
- Výkon panelů [Wp]: 5840
- Kapacita baterie [kWh]: 28
- Chci prodávat energii: NE
- Chci/Mám dotaci: NE
- Bydliště: CZ
Re: Dopojeni bojleru
Myslím že průtokáč. O tom že by byla uvnitř nějaká nádoba nevím. Má to jen expanzku na topení.diablo007 píše:Je to prutokac nebo nebo má v sobě integrovanou nádrž pro TUV?
Jedná se o typ Junkers eurostar zwe 24-4 mfa.
FVE 5,84kWp [Axpert 5048MK - LiFePO4 580Ah@48V (zatím) | 3x Axpert MSXE 2400W - NiCd 800Ah@24V]
- diablo007
- Příspěvky: 3186
- Registrován: stř lis 28, 2018 7:57 pm
- Reputace: 239
- Bydliště: Vyškov
Re: Dopojeni bojleru
429 má.bytbzasobnik a 432 jeho čidlo ale v tom schématu není vidět umístění
-
lzahradil
- Site Admin
- Příspěvky: 1056
- Registrován: ned srp 12, 2012 1:18 am
- Reputace: 388
- Lokalita: blízko Plzně
- Systémové napětí: 48V
- Výkon panelů [Wp]: 5840
- Kapacita baterie [kWh]: 28
- Chci prodávat energii: NE
- Chci/Mám dotaci: NE
- Bydliště: CZ
Re: Dopojeni bojleru
Koukám na to. Ono to je popisek pro více schémat.
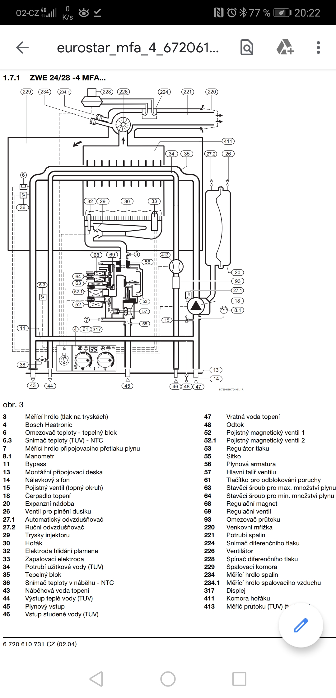
Zde je ten konkrétní model.
Nicméně z připojení souhlasí schéma. Připojení na zásobník to nemá. Proto jsem řešil variantu že bych do něj místo studené posílal teplou z bojleru. Co se týče elektroniky, tak tenhle ale sice nemá trubkama připojení na zásobník ale má konektor na NTC čidlo zásobníku. Podle manuálu by to mělo fungovat tak, že to vyřadí čidlo uvnitř kotle a bude se brát teplota dle zásobníku. To ale není asi úplně to co chci. V tomhle případě se počítá s tím že kotel nahřává zásobník a z toho se odebírá. Já bych to ale zapojil obráceně.
Když bude zásobník (bojler) nahřatej tak NTC v kotli kotel nespustí protože uvidí že má vodu dost teplou. Pokud z bojleru nepoteče dostatečně teplá tak NTC v kotli standardně zareaguje a spustí plynový ohřev.
Zde je ten konkrétní model.
Nicméně z připojení souhlasí schéma. Připojení na zásobník to nemá. Proto jsem řešil variantu že bych do něj místo studené posílal teplou z bojleru. Co se týče elektroniky, tak tenhle ale sice nemá trubkama připojení na zásobník ale má konektor na NTC čidlo zásobníku. Podle manuálu by to mělo fungovat tak, že to vyřadí čidlo uvnitř kotle a bude se brát teplota dle zásobníku. To ale není asi úplně to co chci. V tomhle případě se počítá s tím že kotel nahřává zásobník a z toho se odebírá. Já bych to ale zapojil obráceně.
Když bude zásobník (bojler) nahřatej tak NTC v kotli kotel nespustí protože uvidí že má vodu dost teplou. Pokud z bojleru nepoteče dostatečně teplá tak NTC v kotli standardně zareaguje a spustí plynový ohřev.
FVE 5,84kWp [Axpert 5048MK - LiFePO4 580Ah@48V (zatím) | 3x Axpert MSXE 2400W - NiCd 800Ah@24V]
- beethowen
- Příspěvky: 868
- Registrován: pát čer 23, 2017 7:46 pm
- Reputace: 153
- Bydliště: Brno-venkov
Re: Dopojeni bojleru
Tak jak píšeš, tak by to mělo fungovat. V kotli je jenom průtokový ohřívač. Takže v případě, že na vstupu nebudeš mít dost teplou, tak dohřeje.
Pokud bys chtěl zásobník za kotlem, tak se musí nadefinovat v kotli, že ho tam máš a že má nahřívat na čidlo zásobníku.
Pokud bys chtěl zásobník za kotlem, tak se musí nadefinovat v kotli, že ho tam máš a že má nahřívat na čidlo zásobníku.
10,2kWp poly/mono, XTH6000-48, 2x VT-80A, Li-ion 48kWh
viewtopic.php?t=5358#p103484
viewtopic.php?t=4136#p72550
viewtopic.php?t=5358#p103484
viewtopic.php?t=4136#p72550
Kdo je online
Uživatelé prohlížející si toto fórum: Claudebot [Bot] a 2 hosti
