460 Wp Bratislava
Souhrn tématu
Uživatel sdílí zkušenosti s instalací solárního systému o výkonu 460 Wp v Bratislavě, včetně použitých komponent jako jsou panely RET, olověné baterie Hagen a PWM regulátor Juta. Popisuje problémy s napětím baterií, jejich údržbou a optimalizací nabíjení pomocí vlastního Python skriptu na Raspberry Pi. Diskuze zahrnuje i rady ohledně desulfatizace baterií a dynamického řízení napěťových hranic pro ochranu systému během zimních měsíců.
-
brumlaj
- Příspěvky: 2462
- Registrován: ned kvě 12, 2013 2:24 pm
- Reputace: 259
Re: 460 Wp Bratislava
Pokles výkonu je v obou případech, ale při paralelním spojení není tak výrazný. MPP bod sestavy je při nerovnoměrném zastínění jinde, než u každého z paralelních stringů.
Moudrost nepřichází vždy s věkem, někdy věk přichází sám.
- ixo
- Příspěvky: 489
- Registrován: stř říj 10, 2012 6:11 pm
- Reputace: 23
- Bydliště: Bratislava
Re: 460 Wp Bratislava
Problém je vyriešený, batérie sú opäť v plnej kondícii.ixo píše:Ahojte, celkom výrazne mi klesla kapacita batérií.
1900 Wp, LiFePo 8x200Ah + 123\SmartBMS, Tristar MPPT 60A, Meanwell 1 kW, PowerJack 5kW, Bratislava
Monitoring systému: https://panel.homeinfo.sk/?id_objekt=15 ... elektraren
(Ne)návratnosť systému: https://tinyurl.com/cx74hkv
Zdieľaná databáza meničov: https://tinyurl.com/mx6gvsj
Monitoring systému: https://panel.homeinfo.sk/?id_objekt=15 ... elektraren
(Ne)návratnosť systému: https://tinyurl.com/cx74hkv
Zdieľaná databáza meničov: https://tinyurl.com/mx6gvsj
-
Pavel.Z.
- Příspěvky: 165
- Registrován: ned lis 25, 2012 10:06 am
- Reputace: 5
Re: 460 Wp Bratislava
zdravím, chcem sa spýtať na koľko sa vám vyšplhala hodnota kyseliny, keď pred tým ste písali že mala okolo 1,15 ? Mám dva akumulátory jeden má hodnotu 1,27 čo si myslím je dobré, len druhý má 1,24 snáď je to v norme alebo nie?
- ixo
- Příspěvky: 489
- Registrován: stř říj 10, 2012 6:11 pm
- Reputace: 23
- Bydliště: Bratislava
Re: 460 Wp Bratislava
Neviem veľmi posúdiť, lebo mám veľmi sťažené meranie hustoty - kvôli obmedzenému priestoru neviem dať hustomer kolmo nad batérie. Merať sa mi dá len na prvom článku, tak stav batérií nakoniec odhadujem podľa poklesu napätia voči odobratej a aktuálnej záťaži.
1900 Wp, LiFePo 8x200Ah + 123\SmartBMS, Tristar MPPT 60A, Meanwell 1 kW, PowerJack 5kW, Bratislava
Monitoring systému: https://panel.homeinfo.sk/?id_objekt=15 ... elektraren
(Ne)návratnosť systému: https://tinyurl.com/cx74hkv
Zdieľaná databáza meničov: https://tinyurl.com/mx6gvsj
Monitoring systému: https://panel.homeinfo.sk/?id_objekt=15 ... elektraren
(Ne)návratnosť systému: https://tinyurl.com/cx74hkv
Zdieľaná databáza meničov: https://tinyurl.com/mx6gvsj
- ixo
- Příspěvky: 489
- Registrován: stř říj 10, 2012 6:11 pm
- Reputace: 23
- Bydliště: Bratislava
Re: 460 Wp Bratislava
Tak a je to tu - pridal som na strechu ďalšie dva panely.
Celkovo teda už na streche mám 940 Wp. V tristare som obmedzil maximálny nabíjací prúd z teoretických 32 A - 44 A na 14 A. Dôvodom je požiadavka dobíjať batérie desatinou ich odhadovanej kapacity (cca 14 A). Tieto nové dva panely však dodajú energiu najmä vtedy, keď je slnka málo (ráno, večer, jeseň, zima, jar), čiže prídem akurát o výkonové špičky, najmä v lete, čo mi neprekáža.
Montáž panelov na plochú strechu bola (pre mňa) náročná tak ako aj minule - konzoly s uzlom 35 stupňov poskladať zo 16 metrov hliníkového profilu. Na streche je pod lepenkou 100 mm polystyrén, takže konštrukcia je položená na narezaných 150 mm rúrkach, ktoré idú skrz polystyrén až na betónový podklad a cez rúrky idú kotvy do betónu. Všetko poctivo zaizolované a konštrukcia zaplechovaná proti vetru.
Čo mi prekáža je, že novšie panely sú o čosi nižšie ako staršie panely, pri predstave vysunúť panely o 10 cm vyššie voči oplechovaniu chytil svokor paniku kvôli vetru (je to jeho dom, takže buďjiž), takže možno skôr znížim staršie panely. Nižšie položené majú nevýhodu, že ak nasneží 10-15 cm, sneh začne prekrývať spodok panelov.
No a tu sú súvisiace fotky: https://picasaweb.google.com/hevesi/Sol ... 5545378882
Montáž panelov na plochú strechu bola (pre mňa) náročná tak ako aj minule - konzoly s uzlom 35 stupňov poskladať zo 16 metrov hliníkového profilu. Na streche je pod lepenkou 100 mm polystyrén, takže konštrukcia je položená na narezaných 150 mm rúrkach, ktoré idú skrz polystyrén až na betónový podklad a cez rúrky idú kotvy do betónu. Všetko poctivo zaizolované a konštrukcia zaplechovaná proti vetru.
Čo mi prekáža je, že novšie panely sú o čosi nižšie ako staršie panely, pri predstave vysunúť panely o 10 cm vyššie voči oplechovaniu chytil svokor paniku kvôli vetru (je to jeho dom, takže buďjiž), takže možno skôr znížim staršie panely. Nižšie položené majú nevýhodu, že ak nasneží 10-15 cm, sneh začne prekrývať spodok panelov.
No a tu sú súvisiace fotky: https://picasaweb.google.com/hevesi/Sol ... 5545378882
1900 Wp, LiFePo 8x200Ah + 123\SmartBMS, Tristar MPPT 60A, Meanwell 1 kW, PowerJack 5kW, Bratislava
Monitoring systému: https://panel.homeinfo.sk/?id_objekt=15 ... elektraren
(Ne)návratnosť systému: https://tinyurl.com/cx74hkv
Zdieľaná databáza meničov: https://tinyurl.com/mx6gvsj
Monitoring systému: https://panel.homeinfo.sk/?id_objekt=15 ... elektraren
(Ne)návratnosť systému: https://tinyurl.com/cx74hkv
Zdieľaná databáza meničov: https://tinyurl.com/mx6gvsj
-
mobilik
- Příspěvky: 2677
- Registrován: úte úno 04, 2014 9:06 am
- Reputace: 266
- Bydliště: Neďaleko Košic (SR)
Re: 460 Wp Bratislava
Pekne rozsirujes, drzim prsty. 
Najprv sa učíme chodiť a hovoriť, neskôr sa učíme sedieť a držať hubu... :stupidme:
Hybridná FVE dom: 6,3kWp, Victron Energy, 12kWh Pylontech+GB-Aku
On-Grid FVE dom: 3,6kWp, FRONIUS AC Coupling+VB
OFF-Grid FVE chata: 1,5kWp, Axpert, PCM, 200Ah/24V 18650
Hybridná FVE dom: 6,3kWp, Victron Energy, 12kWh Pylontech+GB-Aku
On-Grid FVE dom: 3,6kWp, FRONIUS AC Coupling+VB
OFF-Grid FVE chata: 1,5kWp, Axpert, PCM, 200Ah/24V 18650
- ixo
- Příspěvky: 489
- Registrován: stř říj 10, 2012 6:11 pm
- Reputace: 23
- Bydliště: Bratislava
Re: 460 Wp Bratislava
Po čase prichádzam z vytvorením podružného solárneho systému na dvore, pretože v zime som musel raz za pár týždňov dotiahnuť do skleníka predložvačku a tak udržiavať batériu v motorke nabitú (jej vymontovávanie mi je proti srsti). Už to mám vyriešené solárnym systémom. Systém mimo motorkárskej sezóny udržiava nabitú štartovaciu batériu odparkovanej motorky, v letnej sezóne zasa poskytuje osvetlenie v skleníku.
Komponenty:
- panel 30W;
- vyradená štartovacia batéria z auta a regulátor za 6 Eur;
- solárne vysokosvietivé LED pásiky 2m;
- ostatná elektrobižutéria (káble, poistka, vypínače...).
Komponenty:
- panel 30W;
- vyradená štartovacia batéria z auta a regulátor za 6 Eur;
- solárne vysokosvietivé LED pásiky 2m;
- ostatná elektrobižutéria (káble, poistka, vypínače...).
1900 Wp, LiFePo 8x200Ah + 123\SmartBMS, Tristar MPPT 60A, Meanwell 1 kW, PowerJack 5kW, Bratislava
Monitoring systému: https://panel.homeinfo.sk/?id_objekt=15 ... elektraren
(Ne)návratnosť systému: https://tinyurl.com/cx74hkv
Zdieľaná databáza meničov: https://tinyurl.com/mx6gvsj
Monitoring systému: https://panel.homeinfo.sk/?id_objekt=15 ... elektraren
(Ne)návratnosť systému: https://tinyurl.com/cx74hkv
Zdieľaná databáza meničov: https://tinyurl.com/mx6gvsj
- ixo
- Příspěvky: 489
- Registrován: stř říj 10, 2012 6:11 pm
- Reputace: 23
- Bydliště: Bratislava
Re: 460 Wp Bratislava
Po čase som sa opäť nevyhol rozšíreniu systému, pre našu oblasť tak častému...
Doplnil som do rozvodu prúdový chránič a tiež vypínač, ktorým môžem odpojiť napájanie 24V do skrinky.
Využijem ho pri balancovaní článkov, vtedy stúpa napätie batérií na viac ako 30V a nechcem cievky stykačov zvýšeným napätím zbytočne prehrievať.
Samotné doplnenie komponentov bola samozrejme malina, ale za zmienku stojí nevyhnutná výmena skrinky za väčšiu, bez toho, aby som musel všetky komponenty poodpájať a popripájať (to by bola práca za trest).
Využijem ho pri balancovaní článkov, vtedy stúpa napätie batérií na viac ako 30V a nechcem cievky stykačov zvýšeným napätím zbytočne prehrievať.
Samotné doplnenie komponentov bola samozrejme malina, ale za zmienku stojí nevyhnutná výmena skrinky za väčšiu, bez toho, aby som musel všetky komponenty poodpájať a popripájať (to by bola práca za trest).
1900 Wp, LiFePo 8x200Ah + 123\SmartBMS, Tristar MPPT 60A, Meanwell 1 kW, PowerJack 5kW, Bratislava
Monitoring systému: https://panel.homeinfo.sk/?id_objekt=15 ... elektraren
(Ne)návratnosť systému: https://tinyurl.com/cx74hkv
Zdieľaná databáza meničov: https://tinyurl.com/mx6gvsj
Monitoring systému: https://panel.homeinfo.sk/?id_objekt=15 ... elektraren
(Ne)návratnosť systému: https://tinyurl.com/cx74hkv
Zdieľaná databáza meničov: https://tinyurl.com/mx6gvsj
-
mobilik
- Příspěvky: 2677
- Registrován: úte úno 04, 2014 9:06 am
- Reputace: 266
- Bydliště: Neďaleko Košic (SR)
Re: 460 Wp Bratislava
Hehe, pekna prerabka pocas jazdy. 
Toto je najhorise, cloveku sa nechce vsetko rozoberat a tak hlada moznosti ako to spravit bez rozobernia.
Toto je najhorise, cloveku sa nechce vsetko rozoberat a tak hlada moznosti ako to spravit bez rozobernia.
Najprv sa učíme chodiť a hovoriť, neskôr sa učíme sedieť a držať hubu... :stupidme:
Hybridná FVE dom: 6,3kWp, Victron Energy, 12kWh Pylontech+GB-Aku
On-Grid FVE dom: 3,6kWp, FRONIUS AC Coupling+VB
OFF-Grid FVE chata: 1,5kWp, Axpert, PCM, 200Ah/24V 18650
Hybridná FVE dom: 6,3kWp, Victron Energy, 12kWh Pylontech+GB-Aku
On-Grid FVE dom: 3,6kWp, FRONIUS AC Coupling+VB
OFF-Grid FVE chata: 1,5kWp, Axpert, PCM, 200Ah/24V 18650
- ixo
- Příspěvky: 489
- Registrován: stř říj 10, 2012 6:11 pm
- Reputace: 23
- Bydliště: Bratislava
Re: 460 Wp Bratislava
Updatujem popis môjho systému o nový prvok, a to detektor horľavých plynov (vodíka) v "akumulátorovni" - šatníku. Šatník je malý, má horľavý obsah, malé okienko a batérie sú veľké... Potrebujem vedieť, či niekedy nedosahuje koncentrácia vodíka nebezpečnú úroveň. Detektor spúšťa dve úrovne poplachov, v závislosti od koncentrácie. Má integrované relé, ktorým sa dá čokoľvek ovládať. Link: http://www.jablotron.com/sk/katalog-pro ... s-130.aspx
Naposledy upravil(a) ixo dne sob kvě 23, 2015 7:09 pm, celkem upraveno 1 x.
1900 Wp, LiFePo 8x200Ah + 123\SmartBMS, Tristar MPPT 60A, Meanwell 1 kW, PowerJack 5kW, Bratislava
Monitoring systému: https://panel.homeinfo.sk/?id_objekt=15 ... elektraren
(Ne)návratnosť systému: https://tinyurl.com/cx74hkv
Zdieľaná databáza meničov: https://tinyurl.com/mx6gvsj
Monitoring systému: https://panel.homeinfo.sk/?id_objekt=15 ... elektraren
(Ne)návratnosť systému: https://tinyurl.com/cx74hkv
Zdieľaná databáza meničov: https://tinyurl.com/mx6gvsj
-
vla
- Příspěvky: 1236
- Registrován: čtv bře 12, 2015 10:18 pm
- Reputace: 131
- Lokalita: Praha 6
- Kapacita baterie [kWh]: cca.10
- Chci prodávat energii: NE
- Chci/Mám dotaci: NE
- Bydliště: Praha 6
Re: 460 Wp Bratislava
Dobrý, jen v manuálu o vodíku nepíší nic, je ho to schopno identifikovat?
Nemám rád tenhle stát.
- ixo
- Příspěvky: 489
- Registrován: stř říj 10, 2012 6:11 pm
- Reputace: 23
- Bydliště: Bratislava
Re: 460 Wp Bratislava
Pravdupovediac trochu ma to tiež zneisťovalo, ale píšu, že VŠETKY horľavé plyny a zoznam vymenovaných plynov končí troma bodkami a keď som prehľadával web, tak presne pri tomto type inde vodík explicitne spomínali. Dá sa samozrejme zavolať priamo do Jablotronu, ak si budem znova viac neistý, kľudne tam zavolám, ale zatiaľ som s tým OK.
Edit: vygooglil som detekciu vodíka priamo na stránke výrobcu: http://www.jabloshop.cz/gs-130-detektor-horlavych-plynu , takže detektor môžem všetkým odporúčať
Edit: vygooglil som detekciu vodíka priamo na stránke výrobcu: http://www.jabloshop.cz/gs-130-detektor-horlavych-plynu , takže detektor môžem všetkým odporúčať
1900 Wp, LiFePo 8x200Ah + 123\SmartBMS, Tristar MPPT 60A, Meanwell 1 kW, PowerJack 5kW, Bratislava
Monitoring systému: https://panel.homeinfo.sk/?id_objekt=15 ... elektraren
(Ne)návratnosť systému: https://tinyurl.com/cx74hkv
Zdieľaná databáza meničov: https://tinyurl.com/mx6gvsj
Monitoring systému: https://panel.homeinfo.sk/?id_objekt=15 ... elektraren
(Ne)návratnosť systému: https://tinyurl.com/cx74hkv
Zdieľaná databáza meničov: https://tinyurl.com/mx6gvsj
- ixo
- Příspěvky: 489
- Registrován: stř říj 10, 2012 6:11 pm
- Reputace: 23
- Bydliště: Bratislava
Re: 460 Wp Bratislava
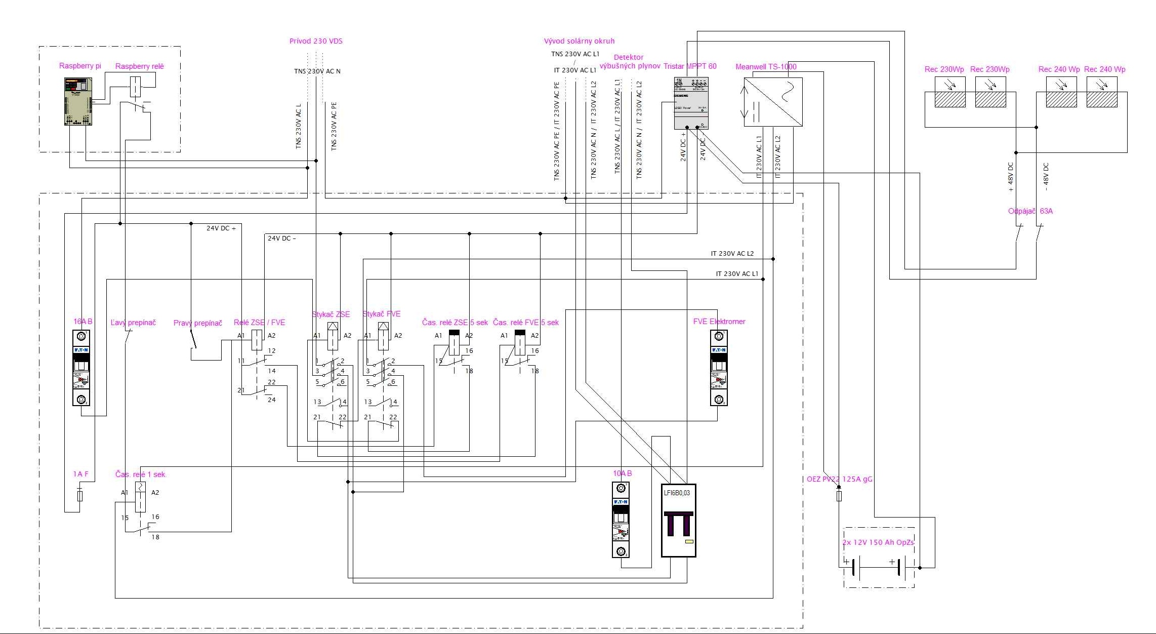
Spravil som si cvičenie kreslenia elektrotechnických schém a rovno na tému mojej elektrárne, tak rovno aj publikujem.
Je to prvá verzia, ak nájdete nejaký bug alebo máte pripomienku, dajte vedieť.
Schému môžete voľne používať, logika prepínania zvláda toto:
- Automatické prepínanie cez Raspberry, Arduino, resp. čokoľvek, čo vie prepínať relé;
- Zároveň ovládanie cez internet cez Raspberry, Arduino alebo čokoľvek, čo vie zároveň byť pripojené na internet;
- Ručné ovládanie prepínania cez "Ľavý prepínač" a "Pravý prepínač" v rozvodnej skrinke - majú vyššiu prioritu ako automatika;
- Časovými relé nastaviteľné oneskorenie prepnutia stykačov (nechávam 5 sekúnd);
- Automatické prepnutie na distribučnú sieť v prípade vypnutia/preťaženia/poruchy meniča.
V podstate je tam zakreslené všetko od panelov až po 230V výstup do zásuvkového okruhu.
Schému môžete voľne používať, logika prepínania zvláda toto:
- Automatické prepínanie cez Raspberry, Arduino, resp. čokoľvek, čo vie prepínať relé;
- Zároveň ovládanie cez internet cez Raspberry, Arduino alebo čokoľvek, čo vie zároveň byť pripojené na internet;
- Ručné ovládanie prepínania cez "Ľavý prepínač" a "Pravý prepínač" v rozvodnej skrinke - majú vyššiu prioritu ako automatika;
- Časovými relé nastaviteľné oneskorenie prepnutia stykačov (nechávam 5 sekúnd);
- Automatické prepnutie na distribučnú sieť v prípade vypnutia/preťaženia/poruchy meniča.
V podstate je tam zakreslené všetko od panelov až po 230V výstup do zásuvkového okruhu.
1900 Wp, LiFePo 8x200Ah + 123\SmartBMS, Tristar MPPT 60A, Meanwell 1 kW, PowerJack 5kW, Bratislava
Monitoring systému: https://panel.homeinfo.sk/?id_objekt=15 ... elektraren
(Ne)návratnosť systému: https://tinyurl.com/cx74hkv
Zdieľaná databáza meničov: https://tinyurl.com/mx6gvsj
Monitoring systému: https://panel.homeinfo.sk/?id_objekt=15 ... elektraren
(Ne)návratnosť systému: https://tinyurl.com/cx74hkv
Zdieľaná databáza meničov: https://tinyurl.com/mx6gvsj
-
mopadzi
- Příspěvky: 1133
- Registrován: úte led 24, 2012 8:55 am
- Reputace: 58
- Lokalita: Okolí Uherského Brodu
- Chci prodávat energii: NE
- Chci/Mám dotaci: NE
Re: 460 Wp Bratislava
hezké..čím je to kreslené?
kdo si hraje nezlobí
9xRenesola 240Wp+9x Benq 265Wp, 6xTrina 410Wp, 14x Leapton 450Wp, 2xStuder VT65 1xVT 80, 2x XTM4000-48, 40kW Lifepo4..vše ve výstavbě, hotovo 99%. BMW i3 BEV
9xRenesola 240Wp+9x Benq 265Wp, 6xTrina 410Wp, 14x Leapton 450Wp, 2xStuder VT65 1xVT 80, 2x XTM4000-48, 40kW Lifepo4..vše ve výstavbě, hotovo 99%. BMW i3 BEV
- ixo
- Příspěvky: 489
- Registrován: stř říj 10, 2012 6:11 pm
- Reputace: 23
- Bydliště: Bratislava
Re: 460 Wp Bratislava
ProfiCad, free verzia.
1900 Wp, LiFePo 8x200Ah + 123\SmartBMS, Tristar MPPT 60A, Meanwell 1 kW, PowerJack 5kW, Bratislava
Monitoring systému: https://panel.homeinfo.sk/?id_objekt=15 ... elektraren
(Ne)návratnosť systému: https://tinyurl.com/cx74hkv
Zdieľaná databáza meničov: https://tinyurl.com/mx6gvsj
Monitoring systému: https://panel.homeinfo.sk/?id_objekt=15 ... elektraren
(Ne)návratnosť systému: https://tinyurl.com/cx74hkv
Zdieľaná databáza meničov: https://tinyurl.com/mx6gvsj
- vlkazajac
- R.I.P.
- Příspěvky: 3478
- Registrován: úte čer 11, 2013 10:40 pm
- Reputace: 528
Re: 460 Wp Bratislava
Tá schéma má obsah aj formu, vďaka za taký príspevok !
750 Wp, LS3024B, 18650 - 198P8S 30,4 V, Multiplus C 800 nonstop / všetky slabé spotrebiče
1950 Wp, 2 x LS3024B, VS2024N, olovo - 330 Ah / 24 V, Carspa 3000 sin deň / silné spotrebiče a ohrev TUV
5995 kWh za meničmi za posledné 2 roky.
1950 Wp, 2 x LS3024B, VS2024N, olovo - 330 Ah / 24 V, Carspa 3000 sin deň / silné spotrebiče a ohrev TUV
5995 kWh za meničmi za posledné 2 roky.
-
kodl69
- Příspěvky: 8143
- Registrován: sob črc 19, 2014 8:56 pm
- Reputace: 1022
- Lokalita: severně od Brna
- Systémové napětí: 48V
- Výkon panelů [Wp]: 8kWp
- Kapacita baterie [kWh]: 12kWh
- Chci prodávat energii: NE
- Chci/Mám dotaci: NE
Re: 460 Wp Bratislava
zbytečně složité, hlavně přepínání sítí.
1.) Jestli se něco nezměnilo, tak baterka má + dycky to delší, ne kratší (mnemotechnická pomůcka -když to + "rozděláš", je delší než -
2.) když vypadne měnič (přetížení...), a bude sepnutý pravý přepínač, nic to nepřepne zpátky.
3.) každej sepnutej stykač (relé) žere elektriku
4.) dle normy musí být stykače vzájemně mechanicky blokovány.
5.) Pokud neuzemníš jeden vývod měniče, vzniká síť IT kde proudový chránič jaksi nefunguje stejně jako v síti TN-C-S, protže poruchový proud nemá kam protékat v případě jedné poruchy. Tam by musel být hlídač izolačního stavu.
6.) není důvod přepínat N, může to být klidně spojeno ještě v místě sítě TNC, a bude to uzel PEN, stejný pro DS i FV, tady asi polemika o galvanickém oddělení končí, zeměkoule má prý 0,1 Ohmu celá napříč, takže není co řešit.
Mrkni na přepínání co kdysi vymyslela VATA a třeba na moji modifikaci se stykači se západkami (žádný odběr v klidovém stavu, jenom impuls na přepnutí, dlouhodobě je sepnuto jenom 0,5W relé.
7.) Čidlo vodíku bych si odpustil, raděj větrat nebo jiný baterky, jestli to není možný. Možná trochu pomůže norma pro akumulátorovny, tj olovo v jedné místnosti jako je kotel, komín, plyn. sporák a pod je celkem risk, stejně jako pod obytnými místnostmi (prostupy na potrubí a kabely asi těsnit nebudou).
1.) Jestli se něco nezměnilo, tak baterka má + dycky to delší, ne kratší (mnemotechnická pomůcka -když to + "rozděláš", je delší než -
2.) když vypadne měnič (přetížení...), a bude sepnutý pravý přepínač, nic to nepřepne zpátky.
3.) každej sepnutej stykač (relé) žere elektriku
4.) dle normy musí být stykače vzájemně mechanicky blokovány.
5.) Pokud neuzemníš jeden vývod měniče, vzniká síť IT kde proudový chránič jaksi nefunguje stejně jako v síti TN-C-S, protže poruchový proud nemá kam protékat v případě jedné poruchy. Tam by musel být hlídač izolačního stavu.
6.) není důvod přepínat N, může to být klidně spojeno ještě v místě sítě TNC, a bude to uzel PEN, stejný pro DS i FV, tady asi polemika o galvanickém oddělení končí, zeměkoule má prý 0,1 Ohmu celá napříč, takže není co řešit.
Mrkni na přepínání co kdysi vymyslela VATA a třeba na moji modifikaci se stykači se západkami (žádný odběr v klidovém stavu, jenom impuls na přepnutí, dlouhodobě je sepnuto jenom 0,5W relé.
7.) Čidlo vodíku bych si odpustil, raděj větrat nebo jiný baterky, jestli to není možný. Možná trochu pomůže norma pro akumulátorovny, tj olovo v jedné místnosti jako je kotel, komín, plyn. sporák a pod je celkem risk, stejně jako pod obytnými místnostmi (prostupy na potrubí a kabely asi těsnit nebudou).
ostrov skoro 8kWp neustále ve stádiu zrodu: smartshunt(ex WBJR), MPPT150/45, MPPT 250/100(ex midnitesolar 150 clasic lite), 16S a různě P cca 340Ah Winston, MP II 5000,( ex Powerjack 8kW, ex samodomo cca 4kW). 48V DC rozvody a spotřebiče.
- ixo
- Příspěvky: 489
- Registrován: stř říj 10, 2012 6:11 pm
- Reputace: 23
- Bydliště: Bratislava
Re: 460 Wp Bratislava
Dakujem za pripomienky, si mozno prvy clovek, ktore sa do tej schemy hlbokovo pozrel na jej obsah a som rad, ze aj ked je to provtina, da sa citat.
Zakreslena Logika vznikla postupnou prerabkou z jednoducheho rucneho prepinania sieti, teraz by som uz mozno niektore funcionality riesil inac.
Moje commenty / otazky:
1.) Rozumiem, diky, pomocka je super;
2.) To je pozadovany stav, rucny bypass moze preklenut rele automatiku;
3.) Veru zerie, nie vsak vyznamne vela, ale ak by som to riesil znova od zaciatku, pozrel by som sa po inych rieseniach;
4.) Ano, su mechanicky blokovane;
5.) Ano, vystupom menica je IT sustava, kedze ta nema potencial voci zemi, chranic je zbytocny az do chvile, kym sa nestane nieco, co by ten potencial vytvorilo a siet by zacala byt voci dotyku nebezpecna - spravne uvazujem? Kazdopadne svoju ulohu si plni pri prepnuti na verejnu TC-S siet;
6.) Na neprepinanie N som sa pozeral inac: vystupom menica je L1 a L2 IT sustavy. Ak by som mal L2 spojeny s N v PEN bode, tak by som vlastne L2 prizenil a z IT sustavy za menicom by sa stala TNC sustava, ktorej spatny dopad na menic som vzhladom na jeho neznamu konstrukciu nevedel posudit.
7.) Senzor vybusnych plynov nestal vela a konecne viem, ake koncentracie vybusnej zmesi doma mame (su bezpecne). Ked baterie odidu do oloveneho neba, dalsie pojdu na balkon, alebo investujem do LiFePo.
Moje commenty / otazky:
1.) Rozumiem, diky, pomocka je super;
2.) To je pozadovany stav, rucny bypass moze preklenut rele automatiku;
3.) Veru zerie, nie vsak vyznamne vela, ale ak by som to riesil znova od zaciatku, pozrel by som sa po inych rieseniach;
4.) Ano, su mechanicky blokovane;
5.) Ano, vystupom menica je IT sustava, kedze ta nema potencial voci zemi, chranic je zbytocny az do chvile, kym sa nestane nieco, co by ten potencial vytvorilo a siet by zacala byt voci dotyku nebezpecna - spravne uvazujem? Kazdopadne svoju ulohu si plni pri prepnuti na verejnu TC-S siet;
6.) Na neprepinanie N som sa pozeral inac: vystupom menica je L1 a L2 IT sustavy. Ak by som mal L2 spojeny s N v PEN bode, tak by som vlastne L2 prizenil a z IT sustavy za menicom by sa stala TNC sustava, ktorej spatny dopad na menic som vzhladom na jeho neznamu konstrukciu nevedel posudit.
7.) Senzor vybusnych plynov nestal vela a konecne viem, ake koncentracie vybusnej zmesi doma mame (su bezpecne). Ked baterie odidu do oloveneho neba, dalsie pojdu na balkon, alebo investujem do LiFePo.
1900 Wp, LiFePo 8x200Ah + 123\SmartBMS, Tristar MPPT 60A, Meanwell 1 kW, PowerJack 5kW, Bratislava
Monitoring systému: https://panel.homeinfo.sk/?id_objekt=15 ... elektraren
(Ne)návratnosť systému: https://tinyurl.com/cx74hkv
Zdieľaná databáza meničov: https://tinyurl.com/mx6gvsj
Monitoring systému: https://panel.homeinfo.sk/?id_objekt=15 ... elektraren
(Ne)návratnosť systému: https://tinyurl.com/cx74hkv
Zdieľaná databáza meničov: https://tinyurl.com/mx6gvsj
- ixo
- Příspěvky: 489
- Registrován: stř říj 10, 2012 6:11 pm
- Reputace: 23
- Bydliště: Bratislava
Re: 460 Wp Bratislava
Dávam do pľacu zaujímavé pozorovanie - sediment v mojich zaplavených batériách:
Minimálny sediment v roku 2013: Sediment dnes - rok 2015: Kamarát má tie isté batérie, prevádzkuje ich ešte o rok dlhšie a sediment má minimálny. Dáva im pritom viac zabrať - záťaž odpája až pri 21V (ja pri 23.7). Absorption napätie máme nastavené zhruba rovnako, ja mám navyše teplotnú kompenzáciu (preto mi absorption dosahuje v zime aj 29.5).
Je možné, že aj keď ich síce nevybíjam tak hlboko, častejšie ich cyklujem (ťahám z nich polovicu domácnosti).
Any other ideas? Nevidí niekto niekde nejakú chybu?
Minimálny sediment v roku 2013: Sediment dnes - rok 2015: Kamarát má tie isté batérie, prevádzkuje ich ešte o rok dlhšie a sediment má minimálny. Dáva im pritom viac zabrať - záťaž odpája až pri 21V (ja pri 23.7). Absorption napätie máme nastavené zhruba rovnako, ja mám navyše teplotnú kompenzáciu (preto mi absorption dosahuje v zime aj 29.5).
Je možné, že aj keď ich síce nevybíjam tak hlboko, častejšie ich cyklujem (ťahám z nich polovicu domácnosti).
Any other ideas? Nevidí niekto niekde nejakú chybu?
1900 Wp, LiFePo 8x200Ah + 123\SmartBMS, Tristar MPPT 60A, Meanwell 1 kW, PowerJack 5kW, Bratislava
Monitoring systému: https://panel.homeinfo.sk/?id_objekt=15 ... elektraren
(Ne)návratnosť systému: https://tinyurl.com/cx74hkv
Zdieľaná databáza meničov: https://tinyurl.com/mx6gvsj
Monitoring systému: https://panel.homeinfo.sk/?id_objekt=15 ... elektraren
(Ne)návratnosť systému: https://tinyurl.com/cx74hkv
Zdieľaná databáza meničov: https://tinyurl.com/mx6gvsj
- vlkazajac
- R.I.P.
- Příspěvky: 3478
- Registrován: úte čer 11, 2013 10:40 pm
- Reputace: 528
Re: 460 Wp Bratislava
Tie usadeniny sa mi zdajú pri stene viac nahromadené, smerom dnu ich je menej. Ak to môžete aj Vy pozorovať zblízka ( in natura ) typicky takto, tak by to tak hrozné nebolo ( je to príspevok plochy elektród na kraji ).
Bolo by dobré skontrolovať popri napätí aj dĺžku absorpcie, možno sú obidva parametre nastavené vysoko. Tu by som bol vždy radšej umiernený.
Má kamarát rovnaký regulátor a má kratšiu dobu absorpcie ? - to by bolo dobré vedieť.
Bolo by dobré skontrolovať popri napätí aj dĺžku absorpcie, možno sú obidva parametre nastavené vysoko. Tu by som bol vždy radšej umiernený.
Má kamarát rovnaký regulátor a má kratšiu dobu absorpcie ? - to by bolo dobré vedieť.
750 Wp, LS3024B, 18650 - 198P8S 30,4 V, Multiplus C 800 nonstop / všetky slabé spotrebiče
1950 Wp, 2 x LS3024B, VS2024N, olovo - 330 Ah / 24 V, Carspa 3000 sin deň / silné spotrebiče a ohrev TUV
5995 kWh za meničmi za posledné 2 roky.
1950 Wp, 2 x LS3024B, VS2024N, olovo - 330 Ah / 24 V, Carspa 3000 sin deň / silné spotrebiče a ohrev TUV
5995 kWh za meničmi za posledné 2 roky.
Kdo je online
Uživatelé prohlížející si toto fórum: Claudebot [Bot], Google [Bot], Seznam [Bot] a 0 hostů