zapojení hybridního střídače
Souhrn tématu
Diskuze se zaměřuje na správné zapojení hybridního střídače v domácích fotovoltaických systémech, včetně přifázování na třífázový rozvod a propojení s bateriovým úložištěm. Uživatelé řeší technické detaily, jako je umístění střídače v rozvodu, uzemnění nulového vodiče a možnosti automatického či manuálního přepínání mezi sítí a baterií. Důraz je kladen na bezpečnost, kompatibilitu s existujícími rozvody a prevenci zpětného toku energie do distribuční sítě.
- honzaL
- Příspěvky: 414
- Registrován: pon kvě 21, 2012 11:33 am
- Reputace:18
- Bydliště: Hradec Kráové
Re: zapojení hybridního střídače
Je třeba zahájit jednání s distributorem. Může se vám stát i to co se stalo před několika lety mě a to je, že distributor mi oznámil, že nemá volnou kapacitu a mám smůlu. Mě to moc nevadilo, ale mám další zkušenost. Výměnu elektroměru si automaticky zařizuje distributor, protože mu patří.Lucano88 píše:Tak možná se vyplatí prodávat zbytky např. přes nano energies - otázka je, co vše je potřeba k tomu, aby čez vyměnil elektroměr za oboustranný? Má někdo nějaké informace? Na internetu jsem toho moc nenašel
18x 550Wp, 16xLiFePO 780Ah (stáří 1, 1, 4, 13, 15 let), STUDER: 3x MPPT VT65; 4x Xtender 4000-48. PLC TECO2091
(v minulosti = CEEG 15x230 Wp, 16xLiFePO 500 Ah, MS TS60A, Studer 4000-48, PLC Siemens,)
(v minulosti = CEEG 15x230 Wp, 16xLiFePO 500 Ah, MS TS60A, Studer 4000-48, PLC Siemens,)
- xmasin
- Příspěvky: 1773
- Registrován: čtv čer 28, 2012 9:45 pm
- Reputace:102
Re: zapojení hybridního střídače
To byla daň z elektřiny jako takové, na faktuře od distributora to je 28,30 Kč/MWh, to o čem píšu je daň z příjmu. Pokud prodám obchodníkovi s elektřinou byť jen 1 kWh tak částku, kterou za ni obdržím musím přiznat a zdanit.tomas píše:ta daň byla u elektráren do 10kW zrušena
http://oenergetice.cz/energeticka-legis ... tsi-chybu/
- tomas
- Příspěvky: 2579
- Registrován: pon bře 07, 2011 11:05 am
- Reputace:243
- Bydliště: Třinec
Re: zapojení hybridního střídače
A co toto:
"příjmy do 30 000 korun ročně budou osvobozeny od daně"
http://www.solarninovinky.cz/?zpravy/20 ... 70hk_pHUlk
Těchto elektráren (s prodejem přebytků bez licence) jsme tento rok postavili několik a daň zatím nikdo neřešil, tak mne to překvapuje.
"příjmy do 30 000 korun ročně budou osvobozeny od daně"
http://www.solarninovinky.cz/?zpravy/20 ... 70hk_pHUlk
Těchto elektráren (s prodejem přebytků bez licence) jsme tento rok postavili několik a daň zatím nikdo neřešil, tak mne to překvapuje.
Chci elektrárnu s licencí a s prodejem přebytků nebo komunitní výměnou energie: ANO
- Nicholas
- Příspěvky: 253
- Registrován: stř dub 06, 2016 8:00 pm
- Reputace:21
- Bydliště: HK
Re: zapojení hybridního střídače
30000/400 = max 75 MWh, kdo to ročně dodá do sítě s FVE do 10 kWp? 
4,6 kWp s 30 kWh teplovodní baterií
- Lubos999
- Příspěvky: 9
- Registrován: ned kvě 19, 2024 11:56 am
- Reputace:0
- Lokalita: Znojmo
- Výkon panelů [Wp]: 1600
- Kapacita baterie [kWh]: 2*280AH
- Chci prodávat energii: NE
- Chci/Mám dotaci: NE
Re: zapojení hybridního střídače
Dobrý den.
Potřeboval bych prosím poradit se zapojením střídače 3-4KW na jednu fázi u třífázového rozvodu v chatě. Nejde mi o přisosávání spíš o přepínání sítí, kdy FV a baterky už nebudou stíhat.
Nemám žádný třífázový spotřebič. Roční spotřeba cca 5MWH. Malý bojler lednice mrazák pračka keramická deska nějaký ten malý přímotop.Mohu přepojit v rozvaděči vše na jednu fázi a používat jen tu. V tom případě co na to distributor, že na dvou fázích nebude žádný odběr.
Mohu samozřejmě u distributora požádat o jenofázové připojení, ale to obnáší elektrikáře, revizora a ještě platit za změnu. Velmi děkuji.
Potřeboval bych prosím poradit se zapojením střídače 3-4KW na jednu fázi u třífázového rozvodu v chatě. Nejde mi o přisosávání spíš o přepínání sítí, kdy FV a baterky už nebudou stíhat.
Nemám žádný třífázový spotřebič. Roční spotřeba cca 5MWH. Malý bojler lednice mrazák pračka keramická deska nějaký ten malý přímotop.Mohu přepojit v rozvaděči vše na jednu fázi a používat jen tu. V tom případě co na to distributor, že na dvou fázích nebude žádný odběr.
Mohu samozřejmě u distributora požádat o jenofázové připojení, ale to obnáší elektrikáře, revizora a ještě platit za změnu. Velmi děkuji.
- pibi
- Příspěvky: 1713
- Registrován: ned led 01, 2023 6:17 pm
- Reputace:395
- Lokalita: Východně od 3nce
- Systémové napětí: 48V
- Výkon panelů [Wp]: 16kWp
- Kapacita baterie [kWh]: 44kWh
- Chci prodávat energii: NE
- Chci/Mám dotaci: NE
Re: zapojení hybridního střídače
Použiješ 3f přepínač sítí, pokud pojedeš ze střídače, bude celý rozvod 1f, když přepneš na síť, bude rozvod 3f.
9,2kWp JV 45°, 4,6kWp JZ 45°, 2,3kWp JV 90°, 2 x Victron MP II 5kVA, 3 x SmartSolar 150/70, Smartshunt, Cerbo, 16x280Ah + 16X300Ah + 16x300Ah LiFePO4 + 3xJK BMS.
K levné elektřině se dostaneme jen vytrvalou prací a svým kapitálem. Vladimír List, Elektrisace Československa 1934
K levné elektřině se dostaneme jen vytrvalou prací a svým kapitálem. Vladimír List, Elektrisace Československa 1934
- Lubos999
- Příspěvky: 9
- Registrován: ned kvě 19, 2024 11:56 am
- Reputace:0
- Lokalita: Znojmo
- Výkon panelů [Wp]: 1600
- Kapacita baterie [kWh]: 2*280AH
- Chci prodávat energii: NE
- Chci/Mám dotaci: NE
Re: zapojení hybridního střídače
Děkuji, a ještě se zeptám je možné pro takové zapojení použít místo čínských hybridů pro moje slabé odběrné místo použít třeba Axpert VM 24V 3000W, aby automaticky až dojde slunce a baterky přepl na DS? Nebo když nestíhá slunce a baterky taky rovnou přepl na DS? Děkujipibi píše: pát kvě 24, 2024 7:30 pmPoužiješ 3f přepínač sítí, pokud pojedeš ze střídače, bude celý rozvod 1f, když přepneš na síť, bude rozvod 3f.
https://www.ostrovni-elektrarny.cz/?kom ... f1-p570005
- Lubos999
- Příspěvky: 9
- Registrován: ned kvě 19, 2024 11:56 am
- Reputace:0
- Lokalita: Znojmo
- Výkon panelů [Wp]: 1600
- Kapacita baterie [kWh]: 2*280AH
- Chci prodávat energii: NE
- Chci/Mám dotaci: NE
Re: zapojení hybridního střídače
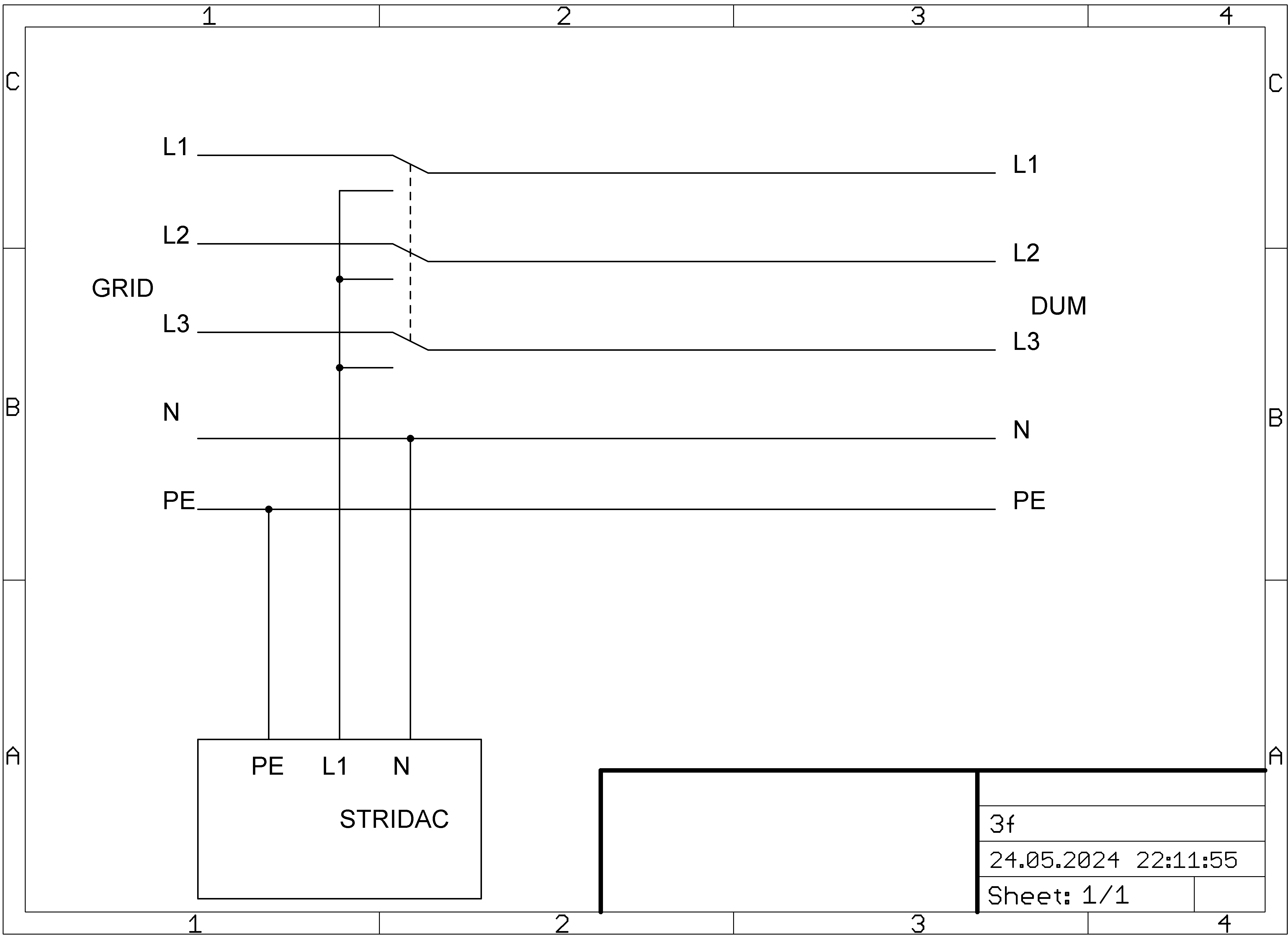
Přemýšlel jsem nad tím, ale 3F přepínač sítí to nevyřeší, nebo když si to maluji tak nevím jak by to fungovalo. Podle třech prodejců čínských klonů nesmí být společný spojený nulák pro vstup a výstup střídače. Musí přes přístroj jen procházet. Tím padá varianta číslo I na obrázku. Myslel jsem že bych udělal variantu číslo 2 ale nevím jestli mohu potom v rozvaděči spojit tři fáze do jedné při zachování jednoho nuláku procházejícího pouze přes střídač.pibi píše: pát kvě 24, 2024 7:30 pmPoužiješ 3f přepínač sítí, pokud pojedeš ze střídače, bude celý rozvod 1f, když přepneš na síť, bude rozvod 3f.
- pibi
- Příspěvky: 1713
- Registrován: ned led 01, 2023 6:17 pm
- Reputace:395
- Lokalita: Východně od 3nce
- Systémové napětí: 48V
- Výkon panelů [Wp]: 16kWp
- Kapacita baterie [kWh]: 44kWh
- Chci prodávat energii: NE
- Chci/Mám dotaci: NE
Re: zapojení hybridního střídače
9,2kWp JV 45°, 4,6kWp JZ 45°, 2,3kWp JV 90°, 2 x Victron MP II 5kVA, 3 x SmartSolar 150/70, Smartshunt, Cerbo, 16x280Ah + 16X300Ah + 16x300Ah LiFePO4 + 3xJK BMS.
K levné elektřině se dostaneme jen vytrvalou prací a svým kapitálem. Vladimír List, Elektrisace Československa 1934
K levné elektřině se dostaneme jen vytrvalou prací a svým kapitálem. Vladimír List, Elektrisace Československa 1934
- Lubos999
- Příspěvky: 9
- Registrován: ned kvě 19, 2024 11:56 am
- Reputace:0
- Lokalita: Znojmo
- Výkon panelů [Wp]: 1600
- Kapacita baterie [kWh]: 2*280AH
- Chci prodávat energii: NE
- Chci/Mám dotaci: NE
Re: zapojení hybridního střídače
Děkuji. Ale dle schematu bude ke střídači připojena pouze baterie a fv panely. Nebude ke střídači přiveden DS. Pokud by se tak učinilo opět dojde k propojení nuláku mezi vstupem a výstupem. Nebo tedy myšleno tak že přepínač sítě přepíná třeba když dojde k vybití baterie na určenou nejnižší mez?
Vím ptám se jak tupoun, ale jsem vděčný za každou radu.
- cipis
- Moderátor
- Příspěvky: 6955
- Registrován: pon srp 16, 2021 9:31 pm
- Reputace:979
- Lokalita: blízko Brna
- Systémové napětí: 24V
- Výkon panelů [Wp]: 13+ kWp
- Kapacita baterie [kWh]: 40+26
- Chci prodávat energii: NE
- Chci/Mám dotaci: NE
- Bydliště: blízko Brna
Re: zapojení hybridního střídače
Nulák na vstupu a nulák na výstupu musí být spojený, navíc propojený na zem.
Vyber si pořádný měnič, o kterém prodejci nekecají voloviny.
Vyber si pořádný měnič, o kterém prodejci nekecají voloviny.
16+ kWp: 9850 Wp Jih, 2040 Wp Východ, 1490 Wp Západ, 2700 Wp mikroinvertory
Regulátory Epever a Victron
MP 24/5000 + Deye mikroinvertory 1+2,2 kW (můj byt + máti byt)
MP 24/1200 inet, sit, kamery atd.
Phoenix 24/5000 vytěžování do akumulačních kamen
Epever 3kW vytěžování do bojlerů + žebříky
1 kW "nabíječka" 24 V
40+ kWh staré olovo 26+ kWh Li-Ion
několik dalších MP jako záložní zdroje na různých místech
Modře píši jako moderátor, černě jako člen.
Regulátory Epever a Victron
MP 24/5000 + Deye mikroinvertory 1+2,2 kW (můj byt + máti byt)
MP 24/1200 inet, sit, kamery atd.
Phoenix 24/5000 vytěžování do akumulačních kamen
Epever 3kW vytěžování do bojlerů + žebříky
1 kW "nabíječka" 24 V
40+ kWh staré olovo 26+ kWh Li-Ion
několik dalších MP jako záložní zdroje na různých místech
Modře píši jako moderátor, černě jako člen.
- pibi
- Příspěvky: 1713
- Registrován: ned led 01, 2023 6:17 pm
- Reputace:395
- Lokalita: Východně od 3nce
- Systémové napětí: 48V
- Výkon panelů [Wp]: 16kWp
- Kapacita baterie [kWh]: 44kWh
- Chci prodávat energii: NE
- Chci/Mám dotaci: NE
Re: zapojení hybridního střídače
Tohle je schéma zapojení pro ostrov, střídač není spojen se sítí distributora.
Pro manuální přepínání použiješ 3pólový přepínač sítí 1-0-2, dělají se v provedení na DIN lištu, od různých výrobců, za různou cenu, např:
https://cz.traconelectric.com/product/S ... ac-3P--63A
Pokud chceš automatické přepínání, použiješ buď přepínač se servopohonem, ta cena bude výživná, nebo vzájemně mechanicky a elektricky blokovaný pár stykačů, případně reverzační stykač, což je mechanicky blokovaný pár v jedné krabici. Cena bude trochu méně výživná, než předchozí varianta.
Případně použiješ levný čínský přepínač, a pak si budeš stěžovat, že vyhořel.
https://allegro.cz/nabidka/automaticky- ... rgQAvD_BwE
Pro manuální přepínání použiješ 3pólový přepínač sítí 1-0-2, dělají se v provedení na DIN lištu, od různých výrobců, za různou cenu, např:
https://cz.traconelectric.com/product/S ... ac-3P--63A
Pokud chceš automatické přepínání, použiješ buď přepínač se servopohonem, ta cena bude výživná, nebo vzájemně mechanicky a elektricky blokovaný pár stykačů, případně reverzační stykač, což je mechanicky blokovaný pár v jedné krabici. Cena bude trochu méně výživná, než předchozí varianta.
Případně použiješ levný čínský přepínač, a pak si budeš stěžovat, že vyhořel.
https://allegro.cz/nabidka/automaticky- ... rgQAvD_BwE
9,2kWp JV 45°, 4,6kWp JZ 45°, 2,3kWp JV 90°, 2 x Victron MP II 5kVA, 3 x SmartSolar 150/70, Smartshunt, Cerbo, 16x280Ah + 16X300Ah + 16x300Ah LiFePO4 + 3xJK BMS.
K levné elektřině se dostaneme jen vytrvalou prací a svým kapitálem. Vladimír List, Elektrisace Československa 1934
K levné elektřině se dostaneme jen vytrvalou prací a svým kapitálem. Vladimír List, Elektrisace Československa 1934
- Lubos999
- Příspěvky: 9
- Registrován: ned kvě 19, 2024 11:56 am
- Reputace:0
- Lokalita: Znojmo
- Výkon panelů [Wp]: 1600
- Kapacita baterie [kWh]: 2*280AH
- Chci prodávat energii: NE
- Chci/Mám dotaci: NE
Re: zapojení hybridního střídače
Velmi děkuji, už jsem to pochopil. To že nulák bude spojený taky chápu. Jen ještě mě není jasná věta "nulák navíc propojený na zem". To jako mám spojit nulák se zemí?cipis píše: pát kvě 24, 2024 11:39 pmNulák na vstupu a nulák na výstupu musí být spojený, navíc propojený na zem.
Vyber si pořádný měnič, o kterém prodejci nekecají voloviny.
- pibi
- Příspěvky: 1713
- Registrován: ned led 01, 2023 6:17 pm
- Reputace:395
- Lokalita: Východně od 3nce
- Systémové napětí: 48V
- Výkon panelů [Wp]: 16kWp
- Kapacita baterie [kWh]: 44kWh
- Chci prodávat energii: NE
- Chci/Mám dotaci: NE
Re: zapojení hybridního střídače
V síti TN musí být spojen nulák se zemí. Od distributora Ti domů jde společný PEN, který je spojen s domovním uzeměním (MET nebo HOP).
V síti TN-S se rozdělí na vodiče PE a N, které pokračují samostatně dále. Pokud odpojíš síť distibutora, musíš zajistit, aby N zůstal propojený s PE.
V síti TN-S se rozdělí na vodiče PE a N, které pokračují samostatně dále. Pokud odpojíš síť distibutora, musíš zajistit, aby N zůstal propojený s PE.
9,2kWp JV 45°, 4,6kWp JZ 45°, 2,3kWp JV 90°, 2 x Victron MP II 5kVA, 3 x SmartSolar 150/70, Smartshunt, Cerbo, 16x280Ah + 16X300Ah + 16x300Ah LiFePO4 + 3xJK BMS.
K levné elektřině se dostaneme jen vytrvalou prací a svým kapitálem. Vladimír List, Elektrisace Československa 1934
K levné elektřině se dostaneme jen vytrvalou prací a svým kapitálem. Vladimír List, Elektrisace Československa 1934
- Lubos999
- Příspěvky: 9
- Registrován: ned kvě 19, 2024 11:56 am
- Reputace:0
- Lokalita: Znojmo
- Výkon panelů [Wp]: 1600
- Kapacita baterie [kWh]: 2*280AH
- Chci prodávat energii: NE
- Chci/Mám dotaci: NE
Re: zapojení hybridního střídače
To mě bohužel nějak tedy uniká. Myslel jsem že dle výše uvedeného zapojení na obrázku dojde pouze k odpojení od DS tři fáze a N + PE zůstanou zachovány. Poprosím tedy ještě o zapojení čínského přepínače, jak by to mělo vlastně celé vypadat. Děkujipibi píše: sob kvě 25, 2024 10:29 pmV síti TN musí být spojen nulák se zemí. Od distributora Ti domů jde společný PEN, který je spojen s domovním uzeměním (MET nebo HOP).
V síti TN-S se rozdělí na vodiče PE a N, které pokračují samostatně dále. Pokud odpojíš síť distibutora, musíš zajistit, aby N zůstal propojený s PE.
- cipis
- Moderátor
- Příspěvky: 6955
- Registrován: pon srp 16, 2021 9:31 pm
- Reputace:979
- Lokalita: blízko Brna
- Systémové napětí: 24V
- Výkon panelů [Wp]: 13+ kWp
- Kapacita baterie [kWh]: 40+26
- Chci prodávat energii: NE
- Chci/Mám dotaci: NE
- Bydliště: blízko Brna
Re: zapojení hybridního střídače
pibi: Jj, přesně tak. Měnič je další zdroj, stejně jak elektrárna někde venku. A aby se ze zdroje IT stal TN, tak se musí jeden z fázových vodičů uzemnit.
Victron má třeba v Multiplusu relé, které to uzemnění udělá za tebe. Nicméně je "správnější" si to uzemnit sám (třeba bude pak jiný měnič, jiná značka, porucha, cokoliv).
Lubos999: u toho krámu se přepíná i N, což je blbost, obzvláště u téhle čínské sračky.
Victron má třeba v Multiplusu relé, které to uzemnění udělá za tebe. Nicméně je "správnější" si to uzemnit sám (třeba bude pak jiný měnič, jiná značka, porucha, cokoliv).
Lubos999: u toho krámu se přepíná i N, což je blbost, obzvláště u téhle čínské sračky.
16+ kWp: 9850 Wp Jih, 2040 Wp Východ, 1490 Wp Západ, 2700 Wp mikroinvertory
Regulátory Epever a Victron
MP 24/5000 + Deye mikroinvertory 1+2,2 kW (můj byt + máti byt)
MP 24/1200 inet, sit, kamery atd.
Phoenix 24/5000 vytěžování do akumulačních kamen
Epever 3kW vytěžování do bojlerů + žebříky
1 kW "nabíječka" 24 V
40+ kWh staré olovo 26+ kWh Li-Ion
několik dalších MP jako záložní zdroje na různých místech
Modře píši jako moderátor, černě jako člen.
Regulátory Epever a Victron
MP 24/5000 + Deye mikroinvertory 1+2,2 kW (můj byt + máti byt)
MP 24/1200 inet, sit, kamery atd.
Phoenix 24/5000 vytěžování do akumulačních kamen
Epever 3kW vytěžování do bojlerů + žebříky
1 kW "nabíječka" 24 V
40+ kWh staré olovo 26+ kWh Li-Ion
několik dalších MP jako záložní zdroje na různých místech
Modře píši jako moderátor, černě jako člen.
Kdo je online
Uživatelé procházející toto fórum: Bing [Bot], Claudebot [Bot], Pawel
