Ohřev TUV
Souhrn tématu
Diskuze se zaměřuje na ohřev teplé užitkové vody (TUV) pomocí fotovoltaických panelů a řešení technických otázek spojených s instalací a provozem. Uživatelé sdílejí zkušenosti s bojlerem Dražice, umístěním panelů, výkonem a potřebou komponentů jako MTPP či trojcestných ventilů. Cílem je snížit spotřebu elektřiny a efektivně využít solární energii pro ohřev vody v domácnosti.
- jelen12345
- Příspěvky: 9
- Registrován: pon lis 18, 2013 9:09 pm
- Reputace:0
Ohřev TUV
Zdravím všechny solární "barony",
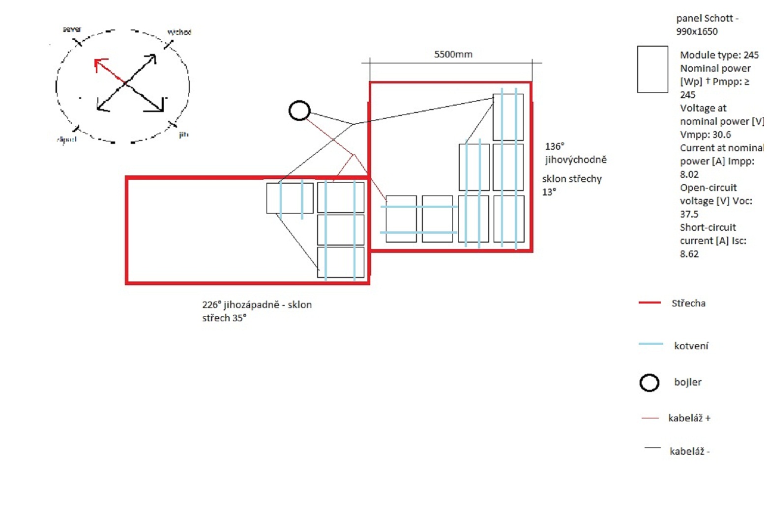
po přečtení mnoha a mnoha stránek tohoto fóra a zárveň po mnoha a mnoha hodinách strávených přemýšlením, jsem dospěl k názoru, že zkusím použít pár korun a investuji je do ohřevu TÚV pomocí FVE. Nechci rozebírat proč zrovna FVE, tažke ve stručnosti, protože je málo místa na fototermiku. Tak a teď k tomu co mě trápí a jaká je situace. V dnešní době mám u sebe v garáži bojler Dražice OKFE 160, který má dle štítku 2kW AC spirálu a 2kW DC spirálu, z čehož jsem bral, že panely nemohou dát nikdy víc než 2kW, ale po proštudování štítku jsem zjistil, že je tam i omezení na 240V DC. Zároveň jsme se jako správný hejl rozhodl koupit poškozené panely firmy Schott Solar, které jsou opraveny, takže něco dávají a rád bych je nyní umístil na střechu. K tomu jsem udělal obrázek, protože popis by asi nebyl úplně to pravý. Tak a teď k mým dotazům:
1. úmístění panelů tímto způsobem je z důvodu, že při letních měsících by panely na garáži (kde jich je na obrázku 7) byly asi od 1600 ve stínu, resp. ty které by byly blíže ke steně domu. Jak by se v tomto případě počítal výkon? Je to tak, že ty, na které by dopadalo slunce by stále jeli "naplno" a zbytek by byl přes diodu v panelu odpojen nebo by panely šly na hodnotu nejmenšího napětí panelu v soustavě?
2. je potřeba do takovéhle soustavy dokupovat MTPP, když vím, že to teď všechno jde do bojleru? Neřeším momentálně přebytky, i když už nyní je mi jasné, že mě to začne hlodat (pokud panely opravdu pojedou, jak očekávám - v pátek 27.12. jsem si dal zkušebně 3 panely na střechu a dávaly 107V a 1.65A, přičemž jsme to měřil po dobu 10mins a bylo to stabilní. Když jsem je dal kolmo, tak jsem se dostal na 4.3A)
3. na celou sestavu jsem počítal 30ks kotvících komponent - kus po metru (mám na střeše bramac břidlicovou krytinu, takže počítám s takovýma těma jakože U), pak 7x5m hliníkových solárních nosníků - ale vůbec netuším jakých a pak k tomu potřebuji i bižuterii (šrouby, matky apod) a to jsem taky nepochopil, jak mám počítat
, takže pokud by byl někdo schopen mi to sesumarizovat, tak bych mu byl moc vděčný, i když chápu, že to nemám jak dotyčnému kompenzovat (pokud to nebude frenky
).
Pokud by měl někdo podobnou zkušenost s ohřevem TÚV a napsal odkdy jede jenom na FVE, tak bych mu byl taky moc vděčný, i když to spíš beru jako jednu z možností, jak se pokusit snížit spotřebu el. energie u nás v domácnosti. A když se mi podaří takhle "ušetřit" aspoň 1MWh za rok, tak to budu brát jako velké vítězství.
Díky moc za reakce, ať už negativní či pozitivní, rozhodně mě už nic neodradí od instalace
a snad se stanu i plnohodnotným členem mypower,
díky honza
po přečtení mnoha a mnoha stránek tohoto fóra a zárveň po mnoha a mnoha hodinách strávených přemýšlením, jsem dospěl k názoru, že zkusím použít pár korun a investuji je do ohřevu TÚV pomocí FVE. Nechci rozebírat proč zrovna FVE, tažke ve stručnosti, protože je málo místa na fototermiku. Tak a teď k tomu co mě trápí a jaká je situace. V dnešní době mám u sebe v garáži bojler Dražice OKFE 160, který má dle štítku 2kW AC spirálu a 2kW DC spirálu, z čehož jsem bral, že panely nemohou dát nikdy víc než 2kW, ale po proštudování štítku jsem zjistil, že je tam i omezení na 240V DC. Zároveň jsme se jako správný hejl rozhodl koupit poškozené panely firmy Schott Solar, které jsou opraveny, takže něco dávají a rád bych je nyní umístil na střechu. K tomu jsem udělal obrázek, protože popis by asi nebyl úplně to pravý. Tak a teď k mým dotazům:
1. úmístění panelů tímto způsobem je z důvodu, že při letních měsících by panely na garáži (kde jich je na obrázku 7) byly asi od 1600 ve stínu, resp. ty které by byly blíže ke steně domu. Jak by se v tomto případě počítal výkon? Je to tak, že ty, na které by dopadalo slunce by stále jeli "naplno" a zbytek by byl přes diodu v panelu odpojen nebo by panely šly na hodnotu nejmenšího napětí panelu v soustavě?
2. je potřeba do takovéhle soustavy dokupovat MTPP, když vím, že to teď všechno jde do bojleru? Neřeším momentálně přebytky, i když už nyní je mi jasné, že mě to začne hlodat (pokud panely opravdu pojedou, jak očekávám - v pátek 27.12. jsem si dal zkušebně 3 panely na střechu a dávaly 107V a 1.65A, přičemž jsme to měřil po dobu 10mins a bylo to stabilní. Když jsem je dal kolmo, tak jsem se dostal na 4.3A)
3. na celou sestavu jsem počítal 30ks kotvících komponent - kus po metru (mám na střeše bramac břidlicovou krytinu, takže počítám s takovýma těma jakože U), pak 7x5m hliníkových solárních nosníků - ale vůbec netuším jakých a pak k tomu potřebuji i bižuterii (šrouby, matky apod) a to jsem taky nepochopil, jak mám počítat
Pokud by měl někdo podobnou zkušenost s ohřevem TÚV a napsal odkdy jede jenom na FVE, tak bych mu byl taky moc vděčný, i když to spíš beru jako jednu z možností, jak se pokusit snížit spotřebu el. energie u nás v domácnosti. A když se mi podaří takhle "ušetřit" aspoň 1MWh za rok, tak to budu brát jako velké vítězství.
Díky moc za reakce, ať už negativní či pozitivní, rozhodně mě už nic neodradí od instalace
díky honza
- goodbie
- Příspěvky: 1464
- Registrován: pát bře 08, 2013 7:19 pm
- Reputace:73
- Bydliště: Aš
Re: Ohřev TUV
solární baroni
ježiš to tady fakt nejsme
- Frenky
- Příspěvky: 878
- Registrován: pon led 21, 2013 6:36 pm
- Reputace:155
- Lokalita: Doubravička
- Systémové napětí: 48V
- Výkon panelů [Wp]: 8700
- Kapacita baterie [kWh]: 25
- Chci prodávat energii: NE
- Chci/Mám dotaci: NE
- Bydliště: Doubravička
Re: Ohřev TUV
Ahoj Honzo, vítej v klubu, koukám, že si se do toho vrhnul. Těším se, až to uvidím v akci. S ukotvením ti moc nepomohu, s tím zkušenosti nemám. (vymyšlení jak na to). Ale pokud budeš potřebovat pomoci s fyzickou stránkou věci, tak se ozvi.
24x Solární panel JINKO SOLAR 225 Pmpp=225W, 2x Regulátor STUDER VT-80, 2x Střídač Studer XTM 4000-48, BSP, RCC, 1x AKU 48V LFP200Ah 1x AKU 48 V LFP280Ah. Řizení a dohled, SDS, vlastní vyčítání arduinem DUE v krabičce (ARMOSY), export dat do RPi s databází a html stránkou.
http://95.85.214.80, viewtopic.php?t=4809
http://95.85.214.80, viewtopic.php?t=4809
- vata
- Příspěvky: 1407
- Registrován: pon zář 12, 2011 11:32 am
- Reputace:93
Re: Ohřev TUV
Zdravím, vítejte mezi námi!
Podle mě je fotovoltaiky škoda na ohřev, tedy pokud se nebavíme o spotřebě přebytků, pak je samozřejmě voda dobrý nápad. Málo místa? Tolik co tyhle panely by Vám ohřál jediný fototermický panel 2m2 (někdo to tady určitě spočítá docela přesně
). Ovšem velmi dobře chápu, že tahat kabely je jednodušší než tahat trubky.
Podle mě je fotovoltaiky škoda na ohřev, tedy pokud se nebavíme o spotřebě přebytků, pak je samozřejmě voda dobrý nápad. Málo místa? Tolik co tyhle panely by Vám ohřál jediný fototermický panel 2m2 (někdo to tady určitě spočítá docela přesně
Inteligentní ostrov - www.vati.cz
- Mikel
- Příspěvky: 970
- Registrován: pát lis 01, 2013 11:41 pm
- Reputace:215
Re: Ohřev TUV
Temika na ohrev TUV je super, na bojler 200L staci dva kolektory s 12ti trubicema. Usetri to hodne mista.
Z vlastni zkusenosti po 5 letech mohu rict, ze za alespon trochu slunecneho pocasi je celkem dobre pouzitelna termika od cca druhe poloviny unora do konce rijna. V techto okrajovych mesicich mame vodu kolem 45-50C, pres leto pak 70-75C.
Za dobu co mame nainstalovanou termiku, zatim nebylo potreba zapojit jeste spiralu na dohrev. Pres zimu mame ohrev TUV propojen s vymenikem v krbu, ktery se stara do TUV v zime.
Z vlastni zkusenosti po 5 letech mohu rict, ze za alespon trochu slunecneho pocasi je celkem dobre pouzitelna termika od cca druhe poloviny unora do konce rijna. V techto okrajovych mesicich mame vodu kolem 45-50C, pres leto pak 70-75C.
Za dobu co mame nainstalovanou termiku, zatim nebylo potreba zapojit jeste spiralu na dohrev. Pres zimu mame ohrev TUV propojen s vymenikem v krbu, ktery se stara do TUV v zime.
Pohodlný nákup značkových baterií a příslušenství na https://mivvy.mypower.cz/
- bert
- Příspěvky: 365
- Registrován: stř zář 07, 2011 10:09 pm
- Reputace:11
Re: Ohřev TUV
Zdravím!
Na primárne použitie FV na ohrev vody, mám podobný názor ako vata. No každý má iný pohľad na vec a nemienim nikomu vnucovať ten svoj.
Paralerné spájanie stringov s rôznym počtom panelov nie je šťastné riešenie (7ks+4ks). Obmedzenie max. výkonu nie je nutné. Špirála si zoberie len to, čo potrebuje. Treba len vyskladať panely na vhodné napätie pre špirálu.
Prajem všetkým veľa slnka.
Na primárne použitie FV na ohrev vody, mám podobný názor ako vata. No každý má iný pohľad na vec a nemienim nikomu vnucovať ten svoj.
Paralerné spájanie stringov s rôznym počtom panelov nie je šťastné riešenie (7ks+4ks). Obmedzenie max. výkonu nie je nutné. Špirála si zoberie len to, čo potrebuje. Treba len vyskladať panely na vhodné napätie pre špirálu.
Prajem všetkým veľa slnka.
- jelen12345
- Příspěvky: 9
- Registrován: pon lis 18, 2013 9:09 pm
- Reputace:0
Re: Ohřev TUV
goodbie Právě proto jsem tam dal "", protože vím, že tady je to samý koumák, což samozřejmě kvituji. Zároveň sem to taky bral, že forum je plné rozumných lidí, takže moje popíchnutí vezmou z nadhledem a vtipem, tak jak to bylo i myšleno. Nicméně právě od Vás jsem očekával více, než jen poznámku na solární barony
.
Frenky Ahoj Járo, tak já jsem zatím pouze v teoretické poloze, ostatní tady už to jedou pěkně v reálnu včetně tebe
. Díky za nabídku fyzické pomoci, až to tady "vymyslíme", tak pak se bude hodit každá ruka
.
vata a Mikel Pánové, právě, že jsem nechtěl vůbec řešit proč jsem se rozhodl pro FVE, ale když to musí být
, tak věřte, že nejde o místo na střeše, ale o místo uvnitř domečku. Nemáme ždánou haciendu, spíše takový byt na pozemku (domeček má 97m2) a tak na bojler je prostor o velikosti 70x140cm, kam samozřejmě nenacpu 200l resp. 300l (200l by se moc přehříval) bojler a k němu čerpadlo, elektrika, trubky ..., proto jsem se rozhodl jít cestou FVE, protože mi stačí vyměnit bojler na AC za bojler za AC/DC a natáhnout k němu kabely z FVE panelů. Prostor na střeše neřeším, toho je tam dost, protože střecha na gsráži má 25m2 a na baráku (orientovaná dle obrázku) 60m2, ale na tu panely nechci dát z toho důvodu, že tím směrem máme už 6 vzrostlích stromů (ořechů a třešní) a takže v létě od 1600 už máme doma stín a střecha je víceméně taky částečně ve stínu. Takže prosím odprostěte se od myšlenek fototermiky, já prostě fototermiku nechci.
bert Super, takže když je poskládám jinak, což připadá v úvahu takhle: a zapojím je 6+6, tak by to mělo být ok? Takhle jsem to původně i vymyšlený, ale říkal jsem si, že bych možná rád využil slunce od 1500+, ikdyž ono to už asi nebude úplně potřeba, bo tou dobou budou bojler snad na max
. A pak mě právě začne štvát, proč nevyužít energii třeba na napájení NASu a wifi routeru, případně dreamboxu ..., mno našlo by se tu dost věciček
, přes UPSku. Ale to už bych určitě potřeboval MPPT a další věcičky, na druhou stranu, jak říkám, ohřev TÚV je odrazový můstek 
Díky za reakce, honza
Frenky Ahoj Járo, tak já jsem zatím pouze v teoretické poloze, ostatní tady už to jedou pěkně v reálnu včetně tebe
vata a Mikel Pánové, právě, že jsem nechtěl vůbec řešit proč jsem se rozhodl pro FVE, ale když to musí být
bert Super, takže když je poskládám jinak, což připadá v úvahu takhle: a zapojím je 6+6, tak by to mělo být ok? Takhle jsem to původně i vymyšlený, ale říkal jsem si, že bych možná rád využil slunce od 1500+, ikdyž ono to už asi nebude úplně potřeba, bo tou dobou budou bojler snad na max
Díky za reakce, honza
- antilop
- Příspěvky: 76
- Registrován: ned úno 17, 2013 8:47 pm
- Reputace:1
Re: Ohřev TUV
Zapojení 6+6 nedává moc smysl. Ono vlastně ani 12ks 30.6V/8A na bojler 2kW nedává smysl. První co je třeba udělat je změřit odpor spirály (té co půjde do FVE). Odhaduji kolem 20-25ohm. Prosím změřit přesně, nejlepší by bylo v teplém stavu (alespoň s teplou vodou uvnitř - ohřát pomocí té druhé nebo jinak). Pak uvidíme co by s tím šlo. Každopádně jako jeden string (dva paralelně by daly 16A což nedává smysl nejde v daném tělese bez překročení mezí užít). Osobně se domnívám že konfigurace povede na 8ks v jednom stringu. Zbylé panely se využijí jinak. Ty co půjdou k sobě do stringu orientovat stejně a pokud možno vyřešit jaké stíny na ně půjdou. články panelem procházejí postupně sem a tam a vždy když dojdou ke kraji překlenou se diodou. Soudím že v panelu jsou tři. Pokud se panel zorientuje správně na stín aby celý stín sáhl jen přes jednu diodu v jednu chvíli, poběží 2/3 daného panelu a 1/3 bude v bypassu. Pokud se ale panel dál přesně obráceně aby stím sáhl sice jen na tři články ale každý z jiné sekce půjdou do bypassu všecky tři třetiny, tj. panel chcípne celej. Poučka - mám-li vodorovný stoupající stín (např hřeben sousedovic domu), mají panely ležet na dlouho, mám-li postupující svislý stín (např. telegrafní sloup), je vhodnější když panely stojí. Každopádně všechny ve strignu orientovat shodně (úhel, poloha, azimut atd.). Při napájení tělesa bojleru nebude platit že panely ve stínu se vyřadí a zbytek pojede dál, jakékoli zastínění to rozhodí víc. Ty panely na slunci totiž zas nebudou mít kam dávat proud protože odpor tělesa bude příliš velký na nové menší napětí které po výpadku panelů ve stínu na systému zbyde.
- jelen12345
- Příspěvky: 9
- Registrován: pon lis 18, 2013 9:09 pm
- Reputace:0
Re: Ohřev TUV
Já jsem si říkal, že těch panelů je celkem dost, takže to asi opravdu snížím na 8, na který je ta spirála dělaná a zbylé 4 použiju na něco jiného
, případně budu mít připravené v záloze, kdyby se náhodou nějaký ten co bude na střeše pokazil. Co se týče stínu, tak se jedná o štít ze střechy, viz fotografie:
barák - garáž - Takže jestli jsem to pochopil je pro mě lepší je umístit podélně, tj, jak je mám nakraslené. Jenom jich tam dám 8, tj. budou do takového L, jakože kopírovat obvod střechy na vnější straně.
barák - garáž - Takže jestli jsem to pochopil je pro mě lepší je umístit podélně, tj, jak je mám nakraslené. Jenom jich tam dám 8, tj. budou do takového L, jakože kopírovat obvod střechy na vnější straně.
- antilop
- Příspěvky: 76
- Registrován: ned úno 17, 2013 8:47 pm
- Reputace:1
Re: Ohřev TUV
Ja nerikal 8 panelu. Ja rikal zmerit odpor spiraly at muzeme spocitat kolik panelu na to vychazi. A ze se domnivam ze asi 8ks. Ta fotka je ze dneska? Tech stinu je tam silene moc navic tam vidim nejakej komin (a z nej kour - i kour je stin) ten komin bude kreslit stiny pres celou strechu. Pokud je to z prosince tak v lete ok jinak ale spatny... panely bych daval nahoru na hreben. Nejsou tam nejaky listnaty stromy? Naroste listi a bude dalsi stin...
- jelen12345
- Příspěvky: 9
- Registrován: pon lis 18, 2013 9:09 pm
- Reputace:0
Re: Ohřev TUV
Proto jsem říkal, že ty panely nakonec nebudu umisťovat na střechu domu, ale na střechu garáže (jak je tam opřený kolo o dřevo
. Ta fotka je z 2.12. asi kolem 16:00. Střecha na baráku je právě blbá v tom, že je tam za 1. komín, ale hlavně je po té 1600 hodine spíše ve stínu našich ořechů a třešní
(takže hodně listí
). Spirálu můžu změřit, ale nejdřív až bude bojler na místě, tj. po novém roce, bo dřív instalatér nepřijde. Ale jak jsem psal primárně, nějak moc neřeším přebytky, když budou, tak budou, spiš mi jde o to, aby to to něco vyprodukovalo a aspoň trošku pomohlo
.
- antilop
- Příspěvky: 76
- Registrován: ned úno 17, 2013 8:47 pm
- Reputace:1
Re: Ohřev TUV
Jo to chapu. Orechu a tresni by byla skoda... Ja OKFE bojler nemam takze proto se ptam ale soudim ze to bude kolem 25ohm. Pokud ho mate doma (bojler) tak je v krabici hlavou dolu tj jde merit i kdyz nevisi na zdi. Pochopitelne zatim studeny
Kazdopadne to bude chtit bojler regulovat - na to je tu povicero vlaken.
- jelen12345
- Příspěvky: 9
- Registrován: pon lis 18, 2013 9:09 pm
- Reputace:0
Re: Ohřev TUV
Tak jsem naměřil 29 a regulace už je asi jasná, místní člen fóra mi přes SZ poslal nabídku na regulátor pana Oulického za dobrou cenu
.
- luge
- Příspěvky: 770
- Registrován: ned lis 13, 2011 5:52 pm
- Reputace:40
- Bydliště: SK
- antilop
- Příspěvky: 76
- Registrován: ned úno 17, 2013 8:47 pm
- Reputace:1
Re: Ohřev TUV
Pokud to hodlate zregulovat pouzijte 8 panelu v serii. Ty pri nominalnim osvetleni budou davat cca 8A a jejich pracovni napeti bude 245V. Optimalni zatezovaci odpor seriove osmice v plnem svetle je cca 30.5ohm. Vy mate 29ohm + moznost regulatoru odpor zvysovat. Prizpusobit v teto konfiguraci to tedy pujde. Naopak kdybyste regulaci nemel pouzijte panelu jen 7ks. Ten osmy by se tam totiz uz nevyplatil. Napeti na spirale by pro vetsinu provoznich stavu bylo takove ze prinos osmeho panelu by byl mizivy. Ten byste vyhodneji pouzil na neco jineho. Pokud tam date regulator pak se vam jeho prinos projevi. Ale i se sedmi by to s regulatorem slo provozovat. Osm ale vyrobi vic.
- jelen12345
- Příspěvky: 9
- Registrován: pon lis 18, 2013 9:09 pm
- Reputace:0
Re: Ohřev TUV
Díky moc vše za rady, takže je rozhodnuto, na střechu půjde 8 panelů a k nim regulátor, asi ten od pana Oulického, protože jsem na něj četl samou chválu
. Zbylé panely se pokusím využít na něco jiného případně si je nechám do zálohy, kdyby se nějaký ten opravený panel šel do kopru.
Tak a teď mi prosím zkuste vysvětlit, co budu potřebovat k tomu, abych to mohl dát na střechu, kotvy jsou jasný, ale nosníky, vruty, jak se to přidělává na ten nosník a pod, to jsem nějak nepochopil. Ale to je asi tím, že si to prostě na obrázku neumím předstvit. Koukal jsem, že kousek ode mě (v Mochově) snad prodávájí nějaký program pro solární panely, ale musí se tam napsat co přesně potřebuji :/. Kabely a koncovky zvládnu sám
.
díky
Tak a teď mi prosím zkuste vysvětlit, co budu potřebovat k tomu, abych to mohl dát na střechu, kotvy jsou jasný, ale nosníky, vruty, jak se to přidělává na ten nosník a pod, to jsem nějak nepochopil. Ale to je asi tím, že si to prostě na obrázku neumím předstvit. Koukal jsem, že kousek ode mě (v Mochově) snad prodávájí nějaký program pro solární panely, ale musí se tam napsat co přesně potřebuji :/. Kabely a koncovky zvládnu sám
díky
- tomas
- Příspěvky: 2579
- Registrován: pon bře 07, 2011 11:05 am
- Reputace:243
- Bydliště: Třinec
Re: Ohřev TUV
Toto je konstrukce na tašky:
http://www.wintech.cz/cs/wintech-solar/ ... strechy-59

Háky se vruty připevňují na krovy, dle obrázku na straně 6 v tomto katalogu:
http://www.gbc-montaze.cz/file.php?nid=6348&oid=3211383
http://www.wintech.cz/cs/wintech-solar/ ... strechy-59

Háky se vruty připevňují na krovy, dle obrázku na straně 6 v tomto katalogu:
http://www.gbc-montaze.cz/file.php?nid=6348&oid=3211383
Chci elektrárnu s licencí a s prodejem přebytků nebo komunitní výměnou energie: ANO
- mypower.cz
- R.I.P.
- Příspěvky: 4895
- Registrován: pát bře 04, 2011 11:36 am
- Reputace:522
Re: Ohřev TUV
Maji ty haky nakreslene obracene - hlavou dolu. Takhle tam ty tasky nikdo zpet nenasklada. V realite je to takto:tomas píše:Toto je konstrukce na tašky:
http://www.wintech.cz/cs/wintech-solar/ ... strechy-59
Háky se vruty připevňují na krovy, dle obrázku na straně 6 v tomto katalogu:
http://www.gbc-montaze.cz/file.php?nid=6348&oid=3211383

Uz nekolik let tahle kresbicka lita po netu a zatim to nikdo nespravil
- tomas
- Příspěvky: 2579
- Registrován: pon bře 07, 2011 11:05 am
- Reputace:243
- Bydliště: Třinec
Re: Ohřev TUV
jj, pravda, toho jsem si ani nevšiml.
Chci elektrárnu s licencí a s prodejem přebytků nebo komunitní výměnou energie: ANO
- TomasB
- Příspěvky: 1
- Registrován: pon bře 03, 2014 4:53 pm
- Reputace:0
Re: Ohřev TUV
Zdravím, jsem tady nový a rád bych se zeptal na zkušenosti s ohřevem TUV. Stavíme novostavbu a mám v plánu využití přesně tohoto systému, jako je popsán v úvodu. S tím, že v budoucnu bude třeba nabíjet elektroskútr apod. Nyní bych však primárně chtěl panely využívat pro ohřev TUV. Mohu se zeptat na zkušenosti, jaký kabel jste například použil pro propojení FP s bojlerem? V mém případě se bude jednat o vzdálenost cca. 10-11m. Děkuji
Kdo je online
Uživatelé procházející toto fórum: Claudebot [Bot], Migel, OAI-SearchBot, pibi, romanf, rva, SiteExplorer [Bot]
