HENSEL rozvaděč Mi 0400 - FVE -24V/230V včetně výbavy
Souhrn tématu
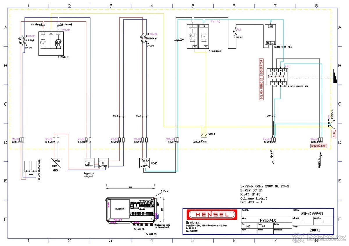
Nabízíme na zakázku vyrobený rozvaděč Hensel Mi 0400 o rozměrech 600 x 300 mm, určený pro fotovoltaické elektrárny s baterií 24V a měničem na 230V. Rozvaděč obsahuje DC zapojení od regulátorů, ochranu proti blesku, pojistkové propojení, AC přepínače pro solární a generátorový provoz, jistič a elektroměr. Je připravený na další rozšíření a je dodáván s detailní dokumentací. Cena 4800 Kč plus doprava, možnost převzetí v Praze 6 nebo přes Zásilkovnu.
- Ivo12s
- Příspěvky: 680
- Registrován: ned kvě 06, 2012 3:47 pm
- Reputace:55
- Lokalita: Kolínsko
- Systémové napětí: 48V
- Výkon panelů [Wp]: 4880
- Kapacita baterie [kWh]: 35
- Chci prodávat energii: NE
- Chci/Mám dotaci: NE
HENSEL rozvaděč Mi 0400 - FVE -24V/230V včetně výbavy
Prodám na zakázku vyrobený kompletní rozvaděč Hensel Mi 0400 600 x 300.
DC/AC pro FVE s baterií 24V a měničem na 230V. Rozvaděč obsahuje DC část zapojení od regulátorů, ochranu proti blesku, pojistkové propojení s bateriemi a s externím měničem 24/230V plus samostatně vyvedenou zásuvku 230V a AC přepínač "Solar/Měnič" a "Generátor" (který může být přiveden externě). Dále AC jistič a elektroměr - vše viz výkresová dokumentace. V rozvaděči je dost místa na další případnou instalaci, já jsem tam měl umístěno řízení balancování LiFePo4. Spodní kryt je osazen spoustou kabelových průchodek, pojistková pouzdra obsahují pojistky, ale některé "opravované"
... Detailní popis prvků i kabeláže v přiložené dokumentaci.
Cena samostatných prvků plus skříň rozvaděče HENSEL Mi 0400 celkem cca. 18500 Kč
Převzetí Praha 6 nebo Zásilkovna.
Cena 4.800 Kč plus doprava.
DC/AC pro FVE s baterií 24V a měničem na 230V. Rozvaděč obsahuje DC část zapojení od regulátorů, ochranu proti blesku, pojistkové propojení s bateriemi a s externím měničem 24/230V plus samostatně vyvedenou zásuvku 230V a AC přepínač "Solar/Měnič" a "Generátor" (který může být přiveden externě). Dále AC jistič a elektroměr - vše viz výkresová dokumentace. V rozvaděči je dost místa na další případnou instalaci, já jsem tam měl umístěno řízení balancování LiFePo4. Spodní kryt je osazen spoustou kabelových průchodek, pojistková pouzdra obsahují pojistky, ale některé "opravované"
Cena samostatných prvků plus skříň rozvaděče HENSEL Mi 0400 celkem cca. 18500 Kč
Převzetí Praha 6 nebo Zásilkovna.
Cena 4.800 Kč plus doprava.
100% OSTROV SČ KRAJ = 16 panelů Canadian Solar CS3K-305; 2 větve 2S4P; 2x Regulátor Victron BlueSolar Charger MPPT 150/60; Měnič 1F Smart Phoenix Inverter 48V 5000VA 230V; Monitoring Victron BMV700 + Raspberry Pi 4B; Energy Meter ET112 a spousta kabelů.
Baterie LiFePo4 =2P x 48V/120Ah +16S x 120Ah + 1P/311Ah= cca 35,2 kWh, skládaná z článků Winston WB-LYP60AHA a EVE LF304 ✔ Zlepšení pozice u vyhledávačů; Aktuální stav FVE instalace.
Baterie LiFePo4 =2P x 48V/120Ah +16S x 120Ah + 1P/311Ah= cca 35,2 kWh, skládaná z článků Winston WB-LYP60AHA a EVE LF304 ✔ Zlepšení pozice u vyhledávačů; Aktuální stav FVE instalace.
Kdo je online
Uživatelé procházející toto fórum: Claudebot [Bot]
