Malá 1f FVE s Victron Multiplus II
-
- Příspěvky: 160
- Registrován: sob bře 18, 2023 12:50 pm
- Reputace: 17
- Lokalita: Jihlava
- Systémové napětí: 48V
- Výkon panelů [Wp]: 9840
- Kapacita baterie [kWh]: 13,6
Re: Malá 1f FVE s Victron Multiplus II
Tak, uteklo 10 dní od založení tématu a ve srážce s realitou padlo finální (snad) rozhodnutí:
- bude legální FVE - 3f - 3x MPII 5000VA - teď to chce přejmenovat téma
Doobjednal jsem dalších 12ks panelů úplně stejných jako už čekají v garáži tj. Canadian Solar 410Wp
Vzhledem k tomuto budoucímu panelovému výkonu je potřeba přehodnotit rozložení panelů do MPPT. Vymyslel jsem to takto:
- 1x MPPT 150/100 - 9 panelů - 3S3P - střecha JJV
- 1x MPPT 150/70 - 6 panelů - 3S2P - střecha JJV (stejná)
- 1x MPPT 150/100 - 9 panelů - 3S3P - střecha ZJZ
Měl bych otázku - je vhodnější použít zrovna MPPT 450/200 (- při plným výkonu a -25°C - vychází proud 205A, takže by ořez reálně vlastně nenastal, ale hnal bych to celý léto hodně natvrdo) nebo to rozdělit na samostatné 3x MPPT (vytvoří se rezerva na každém cca 20%. Navíc, kdyby se pokazilo velké MPPT neměl bych nic, v malých MPPT by vypadla jen část)?
Cena v této konfiguraci už nehraje roli.
- bude legální FVE - 3f - 3x MPII 5000VA - teď to chce přejmenovat téma

Doobjednal jsem dalších 12ks panelů úplně stejných jako už čekají v garáži tj. Canadian Solar 410Wp
Vzhledem k tomuto budoucímu panelovému výkonu je potřeba přehodnotit rozložení panelů do MPPT. Vymyslel jsem to takto:
- 1x MPPT 150/100 - 9 panelů - 3S3P - střecha JJV
- 1x MPPT 150/70 - 6 panelů - 3S2P - střecha JJV (stejná)
- 1x MPPT 150/100 - 9 panelů - 3S3P - střecha ZJZ
Měl bych otázku - je vhodnější použít zrovna MPPT 450/200 (- při plným výkonu a -25°C - vychází proud 205A, takže by ořez reálně vlastně nenastal, ale hnal bych to celý léto hodně natvrdo) nebo to rozdělit na samostatné 3x MPPT (vytvoří se rezerva na každém cca 20%. Navíc, kdyby se pokazilo velké MPPT neměl bych nic, v malých MPPT by vypadla jen část)?
Cena v této konfiguraci už nehraje roli.
9,8kWp, 2x MPPT 150/100, MPPT 150/70, 3x MultiPlus-II 5kVA, Cerbo GX, 13,6kWh LiFePO4
+ Fronius Symo Hybrid 5.0-3-S, Battery Box 12kWh Li-ion, AC-coupling
ESS v síti E.On
+ Fronius Symo Hybrid 5.0-3-S, Battery Box 12kWh Li-ion, AC-coupling
ESS v síti E.On
-
- Příspěvky: 4398
- Registrován: pon úno 07, 2022 10:11 pm
- Reputace: 289
- Lokalita: Zlaté Hory / Olomouc
- Systémové napětí: 24V
- Výkon panelů [Wp]: 3600
- Kapacita baterie [kWh]: 16
- Chci prodávat energii: NE
- Chci/Mám dotaci: NE
- Bydliště: Zlaté Hory
Re: Malá 1f FVE s Victron Multiplus II
Osobně bych to měl rozdělené než jeden velký mppt u victronu je jde stejně propojit že se chovají jako jeden.
3,6kWp
| 2x MUST PV18-3024 VHM, 3kW/24V | 16kWh 


-
- Příspěvky: 160
- Registrován: sob bře 18, 2023 12:50 pm
- Reputace: 17
- Lokalita: Jihlava
- Systémové napětí: 48V
- Výkon panelů [Wp]: 9840
- Kapacita baterie [kWh]: 13,6
Re: Malá 1f FVE s Victron Multiplus II
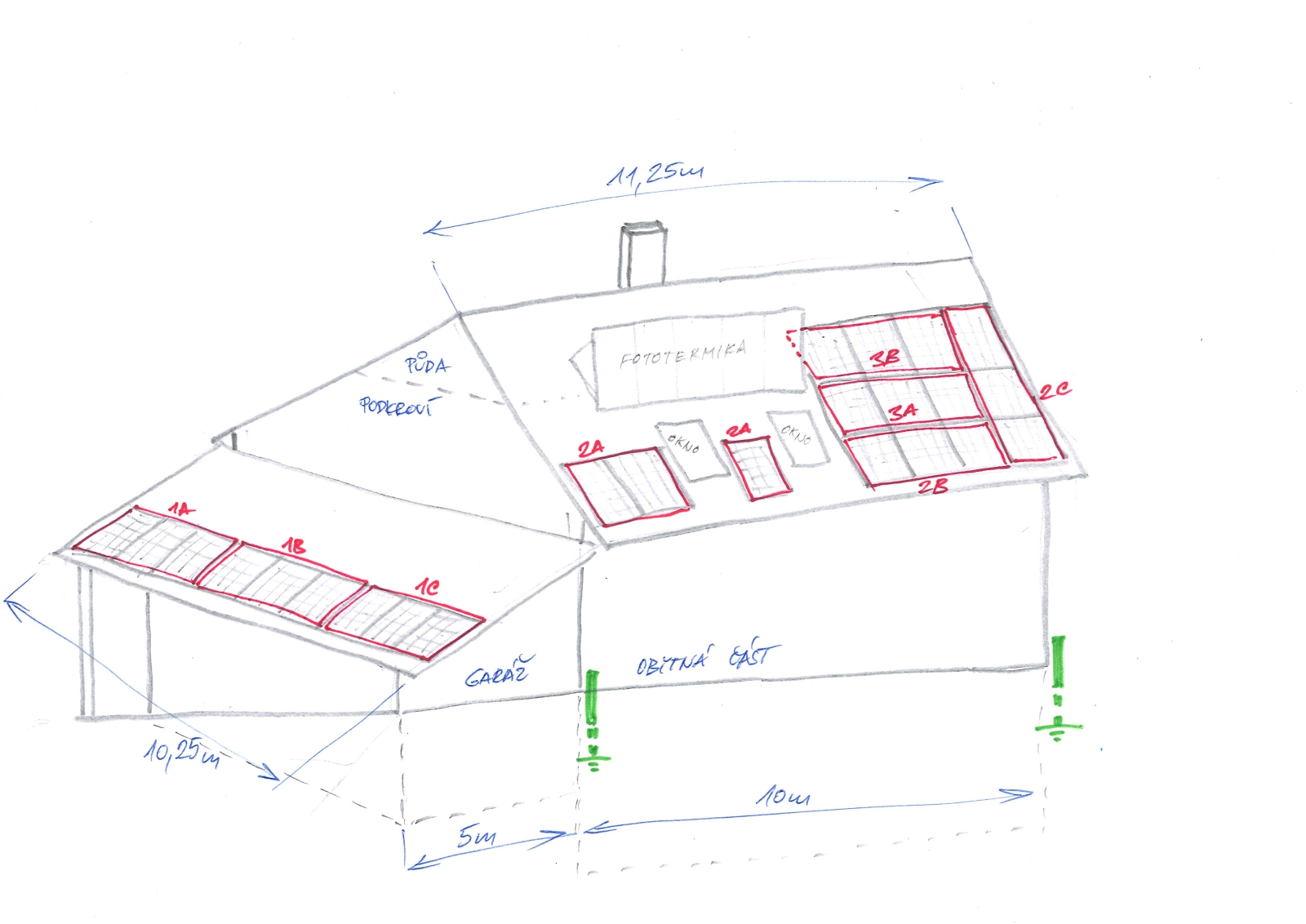
Zdravíčko, opět bych rád požádal o konzultaci. Tentokrát s realizací rozvodů od panelů k MPPT.
Na střeše budou osazeny panely dle první čmáranice: Jedná se tedy o samostatně stojící RD, bez bleskosvodu. Na střeše je roky fototermický panel a dvě střešní okna. Nic není uzemněno. Nově se realizuje osazení střešní konstrukce pro FVE panely. Konstrukce bude mezi sebou pospojena a uzemněna Cu 16mm2. Pospojení dovnitř domu vůbec nepůjde.
Otázka 1: uzemnit na jeden zemní pás nebo udělat udělat uzemnění na oba pásy?
Otázka 2: pospojovat i každý panel ke konstrukci? Nebo stačí konstrukční prvky k dostatečnému pospojení?
Otázka 3: pospojit i doposud neuzemněné Cu rámy oken a fototermický panel?
A druhá čmáranice je zamýšlené zapojení DC rozvodů panelů: Uvažuji vést solárním kabelem bez přerušení, vždy od trojice do série zapojených panelů, až do kovové rozvodnice v garáži. Zde by každá trojice měla svůj odpojovač s pojistkami 16A (max. zkratový proud panelu je 14A). Za odpojovači by každý string měl přepěťovku Saltek SLP-PV170 V/U (MPPT budu 2x 150/100 a 150/70).
Trasy na panely prvního stringu jsou do 10m, tam pochyby nemám. Ale stringy 2 a 3, jsou již delší než 10m (cca 12 a 16m).
A zde vyvstává otázka 4: je vhodné/nutné instalovat přepěťovky i na půdě? Moje úvaha je, že chráním vnitřní zařízení a pokud panel dostane zásah, tak už není co chránit. Nebo dát přepěťovky "na půl trasy", tím ji rozdělit na 6m a zbytek...
Na střeše budou osazeny panely dle první čmáranice: Jedná se tedy o samostatně stojící RD, bez bleskosvodu. Na střeše je roky fototermický panel a dvě střešní okna. Nic není uzemněno. Nově se realizuje osazení střešní konstrukce pro FVE panely. Konstrukce bude mezi sebou pospojena a uzemněna Cu 16mm2. Pospojení dovnitř domu vůbec nepůjde.
Otázka 1: uzemnit na jeden zemní pás nebo udělat udělat uzemnění na oba pásy?
Otázka 2: pospojovat i každý panel ke konstrukci? Nebo stačí konstrukční prvky k dostatečnému pospojení?
Otázka 3: pospojit i doposud neuzemněné Cu rámy oken a fototermický panel?
A druhá čmáranice je zamýšlené zapojení DC rozvodů panelů: Uvažuji vést solárním kabelem bez přerušení, vždy od trojice do série zapojených panelů, až do kovové rozvodnice v garáži. Zde by každá trojice měla svůj odpojovač s pojistkami 16A (max. zkratový proud panelu je 14A). Za odpojovači by každý string měl přepěťovku Saltek SLP-PV170 V/U (MPPT budu 2x 150/100 a 150/70).
Trasy na panely prvního stringu jsou do 10m, tam pochyby nemám. Ale stringy 2 a 3, jsou již delší než 10m (cca 12 a 16m).
A zde vyvstává otázka 4: je vhodné/nutné instalovat přepěťovky i na půdě? Moje úvaha je, že chráním vnitřní zařízení a pokud panel dostane zásah, tak už není co chránit. Nebo dát přepěťovky "na půl trasy", tím ji rozdělit na 6m a zbytek...

9,8kWp, 2x MPPT 150/100, MPPT 150/70, 3x MultiPlus-II 5kVA, Cerbo GX, 13,6kWh LiFePO4
+ Fronius Symo Hybrid 5.0-3-S, Battery Box 12kWh Li-ion, AC-coupling
ESS v síti E.On
+ Fronius Symo Hybrid 5.0-3-S, Battery Box 12kWh Li-ion, AC-coupling
ESS v síti E.On
-
- Příspěvky: 471
- Registrován: ned čer 28, 2015 7:31 pm
- Reputace: 55
Re: Malá 1f FVE s Victron Multiplus II
"zkratový proud panelu je 14A", ale to je při STC. Některé dny to může dávat větší proud. Bál bych se, že při jarním slunci ti to 16A pojistku přepálí.
Jestli to datasheet panelu dovoluje, dal bych větší pojistky, třeba u mě výrobce panelu dovoluje 20A.
Jestli to datasheet panelu dovoluje, dal bych větší pojistky, třeba u mě výrobce panelu dovoluje 20A.
-
- Příspěvky: 160
- Registrován: sob bře 18, 2023 12:50 pm
- Reputace: 17
- Lokalita: Jihlava
- Systémové napětí: 48V
- Výkon panelů [Wp]: 9840
- Kapacita baterie [kWh]: 13,6
Re: Malá 1f FVE s Victron Multiplus II
jj, díky za upozornění, toto jsem přehlídnul. Bude 25A, to je detail.
9,8kWp, 2x MPPT 150/100, MPPT 150/70, 3x MultiPlus-II 5kVA, Cerbo GX, 13,6kWh LiFePO4
+ Fronius Symo Hybrid 5.0-3-S, Battery Box 12kWh Li-ion, AC-coupling
ESS v síti E.On
+ Fronius Symo Hybrid 5.0-3-S, Battery Box 12kWh Li-ion, AC-coupling
ESS v síti E.On
-
- Příspěvky: 2320
- Registrován: stř zář 21, 2022 10:03 am
- Reputace: 71
- Lokalita: okolí Teplic
- Systémové napětí: 48V
- Výkon panelů [Wp]: 8340
- Kapacita baterie [kWh]: 14,4
- Chci prodávat energii: NE
- Chci/Mám dotaci: NE
Re: Malá 1f FVE s Victron Multiplus II
Ahoj taky řeším teď uzemnění a svodiče u rodičů akorát tam mám 3 stringy a délka trasy každý string 30m a nevím zda dát přepěťovky i k panelům nebo jen do rozvaděče. Ty nemají na domě hromosvod ani MET tak do výkopu pro kabely od panelů budu dávat zemní tyče a FeZn drát abych mohl udělat MET a přizemnit i PEN. Jinak na ty Saltek jsem koukal taky ale MPPT je 150V a Saltek 170V což už je moc tak budou Citel DS240S-110DC ta má maximální napětí 150VDC. U sebe mám udělanou druhou MET na půdě pro FVE a připojenou na hlavní MET CYA50 ale jdu po půdě a pak stropem do šatny kde je MET domu. Nejsem teda nadšený že to táhám barákem ale jinak to nešlo.
1: JZ 5460 Wp Ja Solar, JV 960 Wp Leapton, SV 1920 Wp Leapton, MPPT 250/100, MPPT 150/35, MPPT 150/45, 2x parallel Multiplus 2 5000VA, Cerbo GX + touch LCD, 16 x EVE 280Ah LiFePO4 + JK BMS 200A + SmartShunt 500A
2: JZ 3600 Wp Canadian Solar, V 1800 Wp Canadian Solar, MPPT 150/70, MPPT 150/35, Multiplus 2 5000VA, Cerbo GX + touch LCD, 16 x EVE 280Ah LiFePO4 + JK BMS 200A + BMV700
2: JZ 3600 Wp Canadian Solar, V 1800 Wp Canadian Solar, MPPT 150/70, MPPT 150/35, Multiplus 2 5000VA, Cerbo GX + touch LCD, 16 x EVE 280Ah LiFePO4 + JK BMS 200A + BMV700
-
- Příspěvky: 1451
- Registrován: ned led 01, 2023 6:17 pm
- Reputace: 289
- Lokalita: Východně od 3nce
- Systémové napětí: 48V
- Výkon panelů [Wp]: 16kWp
- Kapacita baterie [kWh]: 44kWh
- Chci prodávat energii: NE
- Chci/Mám dotaci: NE
Re: Malá 1f FVE s Victron Multiplus II
Myslím, že nad 10m by měla být přepěťovka na obou koncích kabelu. U sebe plánuji kabely od stringů (3s4p) stáhnout dolů po fasádě, na venkovní zdi kombibox s přepěťovkou, pak CYKY 4x10 (2 žíly paralelně = 2x20mm2) do sklepa, tam opět přepěťovka, jistič s napěťovou vypínací cívkou a do MPPT, to celé 2x na domě JV a 1x na stodole JZ.
9,2kWp JV 45°, 4,6kWp JZ 45°, 2,3kWp JV 90°, 2 x Victron MP II 5kVA, 3 x SmartSolar 150/70, Smartshunt, Cerbo, 16x280Ah + 16X300Ah + 16x300Ah LiFePO4 + 3xJK BMS.
K levné elektřině se dostaneme jen vytrvalou prací a svým kapitálem. Vladimír List, Elektrisace Československa 1934
K levné elektřině se dostaneme jen vytrvalou prací a svým kapitálem. Vladimír List, Elektrisace Československa 1934
-
- Příspěvky: 2320
- Registrován: stř zář 21, 2022 10:03 am
- Reputace: 71
- Lokalita: okolí Teplic
- Systémové napětí: 48V
- Výkon panelů [Wp]: 8340
- Kapacita baterie [kWh]: 14,4
- Chci prodávat energii: NE
- Chci/Mám dotaci: NE
Re: Malá 1f FVE s Victron Multiplus II
Já chci co nejmíň spojů venku takže se tomu kombiboxu venku trošku bráním. Líbí se mi varianta hned u vstupu do domu pojistky přepěťovky a jističe s vyrážecí cívkou. Pokud spojím stringy v kombiboxu budu mít venku i pojistky.
pibi píše:Myslím, že nad 10m by měla být přepěťovka na obou koncích kabelu. U sebe plánuji kabely od stringů (3s4p) stáhnout dolů po fasádě, na venkovní zdi kombibox s přepěťovkou, pak CYKY 4x10 (2 žíly paralelně = 2x20mm2) do sklepa, tam opět přepěťovka, jistič s napěťovou vypínací cívkou a do MPPT, to celé 2x na domě JV a 1x na stodole JZ.
1: JZ 5460 Wp Ja Solar, JV 960 Wp Leapton, SV 1920 Wp Leapton, MPPT 250/100, MPPT 150/35, MPPT 150/45, 2x parallel Multiplus 2 5000VA, Cerbo GX + touch LCD, 16 x EVE 280Ah LiFePO4 + JK BMS 200A + SmartShunt 500A
2: JZ 3600 Wp Canadian Solar, V 1800 Wp Canadian Solar, MPPT 150/70, MPPT 150/35, Multiplus 2 5000VA, Cerbo GX + touch LCD, 16 x EVE 280Ah LiFePO4 + JK BMS 200A + BMV700
2: JZ 3600 Wp Canadian Solar, V 1800 Wp Canadian Solar, MPPT 150/70, MPPT 150/35, Multiplus 2 5000VA, Cerbo GX + touch LCD, 16 x EVE 280Ah LiFePO4 + JK BMS 200A + BMV700
-
- Příspěvky: 160
- Registrován: sob bře 18, 2023 12:50 pm
- Reputace: 17
- Lokalita: Jihlava
- Systémové napětí: 48V
- Výkon panelů [Wp]: 9840
- Kapacita baterie [kWh]: 13,6
Re: Malá 1f FVE s Victron Multiplus II
Tak mám na střeše naházenou konstrukci panelů. Bude následovat pospojení.
Přesným změřením to bohužel jednoznačně vychází, že dva stringy co jsou na střeše domu, musí mít na půdě přepěťové ochrany. Takže tam zrovna osadím i dvoupólové DC pojistky OPV10 pro každý "substring", takže 5 kusů. Pak to spojím do dvou stringů na který dám DC jističe s vyrážecí cívkou a dvě přepěťovky. A pojedu do garáže do dalšího plechovýho boxu, kde budou znovu přepěťovky + dvoupólové vypínače. A taky sem bude přiveden třetí string z garáže, který je krátký a bude mít jen jedny přepěťovky, DC jistič s vyrážecí cívkou a DC pojistky OPV10 pro každý substring.
Ještě se jednou (možná blbě) zeptám - děláte pospojení i každého panelu ke konstrukci (příp. panely mezi sebou a ke konstrukci)
Rám je eloxovaný = nevodivý, takže by to asi mělo být, ale když se snažím něco dohledat - třeba videa z montáží na youtube, tak to nikdo nedělá. Prošel jsem fyzicky 3 instalace FVE (firemní) a taky nikde panely nebyly pospojeny. Měřil jsem si to a vodivý to mezi sebou nikde nebylo
Jak tedy?
Přesným změřením to bohužel jednoznačně vychází, že dva stringy co jsou na střeše domu, musí mít na půdě přepěťové ochrany. Takže tam zrovna osadím i dvoupólové DC pojistky OPV10 pro každý "substring", takže 5 kusů. Pak to spojím do dvou stringů na který dám DC jističe s vyrážecí cívkou a dvě přepěťovky. A pojedu do garáže do dalšího plechovýho boxu, kde budou znovu přepěťovky + dvoupólové vypínače. A taky sem bude přiveden třetí string z garáže, který je krátký a bude mít jen jedny přepěťovky, DC jistič s vyrážecí cívkou a DC pojistky OPV10 pro každý substring.
Ještě se jednou (možná blbě) zeptám - děláte pospojení i každého panelu ke konstrukci (příp. panely mezi sebou a ke konstrukci)

Rám je eloxovaný = nevodivý, takže by to asi mělo být, ale když se snažím něco dohledat - třeba videa z montáží na youtube, tak to nikdo nedělá. Prošel jsem fyzicky 3 instalace FVE (firemní) a taky nikde panely nebyly pospojeny. Měřil jsem si to a vodivý to mezi sebou nikde nebylo

Jak tedy?
9,8kWp, 2x MPPT 150/100, MPPT 150/70, 3x MultiPlus-II 5kVA, Cerbo GX, 13,6kWh LiFePO4
+ Fronius Symo Hybrid 5.0-3-S, Battery Box 12kWh Li-ion, AC-coupling
ESS v síti E.On
+ Fronius Symo Hybrid 5.0-3-S, Battery Box 12kWh Li-ion, AC-coupling
ESS v síti E.On
-
- Příspěvky: 2320
- Registrován: stř zář 21, 2022 10:03 am
- Reputace: 71
- Lokalita: okolí Teplic
- Systémové napětí: 48V
- Výkon panelů [Wp]: 8340
- Kapacita baterie [kWh]: 14,4
- Chci prodávat energii: NE
- Chci/Mám dotaci: NE
Re: Malá 1f FVE s Victron Multiplus II
Ja jsem u sebe z kazdeho stringu uzemnil jeden panel na profil a v danem stringu pak CYA16 mezi sebou panely. Profily take propojene mezi sebou CYA16. Vse pres nerez vjejirove podlozky
1: JZ 5460 Wp Ja Solar, JV 960 Wp Leapton, SV 1920 Wp Leapton, MPPT 250/100, MPPT 150/35, MPPT 150/45, 2x parallel Multiplus 2 5000VA, Cerbo GX + touch LCD, 16 x EVE 280Ah LiFePO4 + JK BMS 200A + SmartShunt 500A
2: JZ 3600 Wp Canadian Solar, V 1800 Wp Canadian Solar, MPPT 150/70, MPPT 150/35, Multiplus 2 5000VA, Cerbo GX + touch LCD, 16 x EVE 280Ah LiFePO4 + JK BMS 200A + BMV700
2: JZ 3600 Wp Canadian Solar, V 1800 Wp Canadian Solar, MPPT 150/70, MPPT 150/35, Multiplus 2 5000VA, Cerbo GX + touch LCD, 16 x EVE 280Ah LiFePO4 + JK BMS 200A + BMV700
Kdo je online
Uživatelé prohlížející si toto fórum: Claudebot [Bot] a 0 hostů