Kotvení solarních panelů
-
- Příspěvky: 9
- Registrován: sob říj 07, 2023 7:46 pm
- Reputace: 0
- Lokalita: Teplice
- Systémové napětí: 48V
- Výkon panelů [Wp]: 2500
- Kapacita baterie [kWh]: 5
- Chci prodávat energii: NE
- Chci/Mám dotaci: NE
Kotvení solarních panelů
Stavím novou solární elektrárnu a zakoupil jsem solární panely které nemají ze zadní strany žádné kotvící otvory ( mimo otvor pro zemnící svorku ). Panely budou uchyceny na dva šestimetrové horizontální profily pomocí originálních upínek. Celkem 5ks panelů tesně vedle sebe....čili středové upínky a dvě a dvě krajní upínky.
Problém je s tím že není žádné zajištění proti sjetí panelu směrem dolů...a to jak během montáže tak v případě uvolnění upínek. Na původních panelech byly otvory do kterých jsem zašrouboval šrouby které se opřeli o spodní profil a panel tak nemohl sjet z profilů dolů. Řešil někdo tento problém ?
Vrtání otvorů do solárního panelu výrobce zakazuje ( ztráta záruky ).
Problém je s tím že není žádné zajištění proti sjetí panelu směrem dolů...a to jak během montáže tak v případě uvolnění upínek. Na původních panelech byly otvory do kterých jsem zašrouboval šrouby které se opřeli o spodní profil a panel tak nemohl sjet z profilů dolů. Řešil někdo tento problém ?
Vrtání otvorů do solárního panelu výrobce zakazuje ( ztráta záruky ).
-
- Příspěvky: 3155
- Registrován: stř úno 02, 2022 10:30 am
- Reputace: 386
- Lokalita: okolí Mělníka
- Systémové napětí: 48V
- Výkon panelů [Wp]: 13000
- Kapacita baterie [kWh]: 15
Re: Kotvení solarních panelů
Nikdy jsem nevidel, ze by to nekdo delal (ale ja nevidel jeste veci
). Neumim si ani predstavit, ze se uvolni omega. A pri montazi to jde resit jinak.

-
- Příspěvky: 430
- Registrován: ned čer 20, 2021 10:09 am
- Reputace: 47
- Lokalita: Śenkvice
- Systémové napětí: 48V
- Výkon panelů [Wp]: 16100
- Kapacita baterie [kWh]: 28
- Chci prodávat energii: NE
- Chci/Mám dotaci: NE
- Bydliště: Šenkvice - Slovensko
Re: Kotvení solarních panelů
Zrovna počas montáže - sám na streche, som to robil presne tak, do otvorov skrutky aby mi to neutieklo, položil na nosný profi, zahákol za skrutky, dal omegy na jemno, povytiahol panel nahor aby som skrutky odstránil, nastavil presnú polohu a omegy dotiahol. Po dotiahnutí omegy nie je možnosť posunutia panela, tam riziko nie je žiadne, len pri montáži svojpomocne tie otvory pomôžu.
Ovšen podľa rôznych info z tlače sa na záruku môžeš vykašľať, málokomu sa niečo podarilo neskôr po montáži vyreklamovať.
Ovšen podľa rôznych info z tlače sa na záruku môžeš vykašľať, málokomu sa niečo podarilo neskôr po montáži vyreklamovať.
spolu 16,1kWp - JVV 2,2kWp sklon 45°, JJZ 4,9kWp sklon 55°, JJZ 4,4kWp sklon 24°, bifaciálna pergola 4,6 kWp 9°
Victron Easysolar 5000/48V + Epever Ipower plus 5000/48V iba na vyťažovanie TUV, ÚK, bazén + ďalší 5kW Ipower záloha a príprava na nabíjanie elektromobilu.
Victron Bluesolar MPPT 150/35, 2x Smartsolar 250/85. Lifepo4 48V/560Ah cca 28kWh -16x 320Ah LiitoKala ( reálna kapacita 283 - 294Ah) + 16x 280Ah Eve spolu na Victron Smartshunte.
Victron Easysolar 5000/48V + Epever Ipower plus 5000/48V iba na vyťažovanie TUV, ÚK, bazén + ďalší 5kW Ipower záloha a príprava na nabíjanie elektromobilu.
Victron Bluesolar MPPT 150/35, 2x Smartsolar 250/85. Lifepo4 48V/560Ah cca 28kWh -16x 320Ah LiitoKala ( reálna kapacita 283 - 294Ah) + 16x 280Ah Eve spolu na Victron Smartshunte.
-
- Příspěvky: 774
- Registrován: úte úno 25, 2014 9:33 pm
- Reputace: 95
- Lokalita: Dobrovicko
- Systémové napětí: 48V
- Výkon panelů [Wp]: 9200
- Kapacita baterie [kWh]: 16
- Chci prodávat energii: NE
- Chci/Mám dotaci: NE
Re: Kotvení solarních panelů
První panely 1x2m jsem dával sám, sklon 38°. Použil jsem u prvního panelu dvě truhlářské svěrky, zahákl na horním profilu, přichytil obě koncové zetka, sundal svěrky, připravil dvě omegy, nasadil druhý panel už s jen s jednou svěrkou, přitáhl omegy a tak dále. Loni jsem přidával panely 650W a to jsme dělali ve třech a bez ničeho.zdenekul píše: ned říj 15, 2023 3:34 pm... jsem zašrouboval šrouby které se opřeli o spodní profil a panel tak nemohl sjet z profilů dolů. Řešil někdo tento problém ?
-
- Příspěvky: 9
- Registrován: sob říj 07, 2023 7:46 pm
- Reputace: 0
- Lokalita: Teplice
- Systémové napětí: 48V
- Výkon panelů [Wp]: 2500
- Kapacita baterie [kWh]: 5
- Chci prodávat energii: NE
- Chci/Mám dotaci: NE
Re: Kotvení solarních panelů
Díky moc za info, díval jsem se na několik foto z montáží panelů na netu a je fakt že to tam taky nikdo neřešil....asi se na to dá opravdu spolehnout. Uvažoval jsem že si alespoň pro montáž vyrobím takové drobné svorky...něco jako je příchytka zemnícího drátu na plech, ale menší a lehčí. A nebo ještě lépe to chce fakt více lidí....

-
- Příspěvky: 1409
- Registrován: pát zář 29, 2023 4:12 am
- Reputace: 252
- Lokalita: Brno
- Systémové napětí: >48V
Re: Kotvení solarních panelů
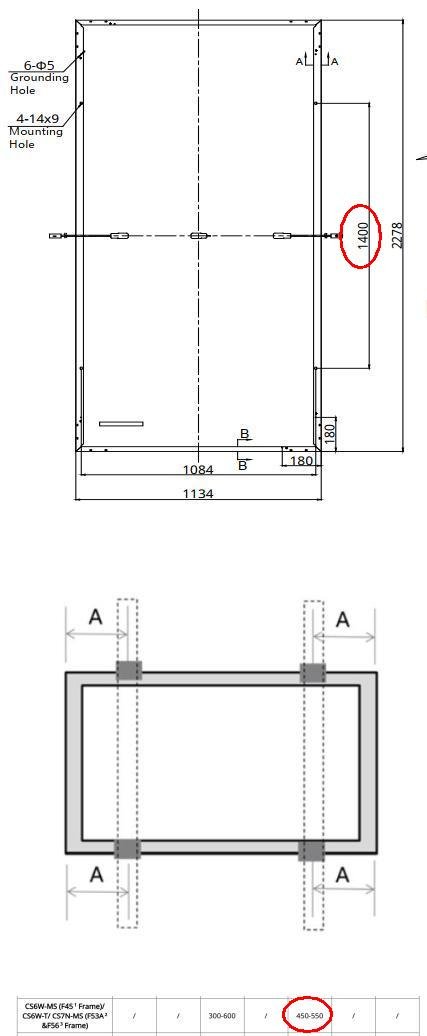
Ať zbytečně nezakládám nové téma, tak se napojím sem. Má to příhodný název.
Nejsou mi jasné zásady volby ideální pozice nosného profilu pod panelem.
Příklad: klasické uspořádání, panel na výšku, pod ním 2 profily vodorovně. Tedy umístěné zhruba v 1/4 a 3/4 výšky.
To by dávalo smysl. Panel je podepřený v těžištích polovin panelu.
Ale v instalačních manuálech různých výrobců panelů je to různě.
Někteří udávají ideální polohu jako 1/4 délky +50..-50mm. To zní rozumně.
Ale jiní zase třeba 1/4 délky +0..-200mm.
A třeba u mých panelů Canadian Solar je to 1/4 délky -20..-120mm.
Proč je to sakra u různých výrobců různě? Přece mechanika funguje stejně. Váha sněhu, tlak/tah větru.
Hmotnost připojovacích junction boxů snad roli hrát nemůže. Navíc u všech panelů jsou stejně uprostřed.
A další záhada je, že tam výrobce udělá montážní otvory pro montáž pomocí šroubů.
Ale polohy pro ty šrouby jsou zase jinde, dokonce mimo doporučený rozsah pozic pro svorky pro daný panel.
Sice šroub to drží za spodní část profilu a svorka přitlačuje horní, ale to by snad nemělo hrát roli.
Co mi tady sakra nedochází?
Díky za případné tipy nebo ještě lépe informace.
Nejsou mi jasné zásady volby ideální pozice nosného profilu pod panelem.
Příklad: klasické uspořádání, panel na výšku, pod ním 2 profily vodorovně. Tedy umístěné zhruba v 1/4 a 3/4 výšky.
To by dávalo smysl. Panel je podepřený v těžištích polovin panelu.
Ale v instalačních manuálech různých výrobců panelů je to různě.
Někteří udávají ideální polohu jako 1/4 délky +50..-50mm. To zní rozumně.
Ale jiní zase třeba 1/4 délky +0..-200mm.
A třeba u mých panelů Canadian Solar je to 1/4 délky -20..-120mm.
Proč je to sakra u různých výrobců různě? Přece mechanika funguje stejně. Váha sněhu, tlak/tah větru.
Hmotnost připojovacích junction boxů snad roli hrát nemůže. Navíc u všech panelů jsou stejně uprostřed.
A další záhada je, že tam výrobce udělá montážní otvory pro montáž pomocí šroubů.
Ale polohy pro ty šrouby jsou zase jinde, dokonce mimo doporučený rozsah pozic pro svorky pro daný panel.
Sice šroub to drží za spodní část profilu a svorka přitlačuje horní, ale to by snad nemělo hrát roli.
Co mi tady sakra nedochází?
Díky za případné tipy nebo ještě lépe informace.
Kdo je online
Uživatelé prohlížející si toto fórum: Bing [Bot], Claudebot [Bot] a 0 hostů